م.عبدالرحمن التركي
م.عبدالرحمن التركي

@ArchPlaces

6 تغريدة 11 قراءة Jul 19, 2024
اهلا وسهلا بكم ,,,
هل ترى هذه الكتلة المصمته ؟
هل تعتقد أنها تمتلك تجربة مبهرة بخصوصية مطلقة وانشراح كبير وبيئة داخلية مميزة ؟
الأهم ان الواجهة بجمال دائم من كتل بتشطيب من الدهان !!!
رحلة في منزل بالمكسيك (الصحراوية) تؤكد أن التصميم المعماري يصنع الفارق ويحسن جودة الحياة ,,,
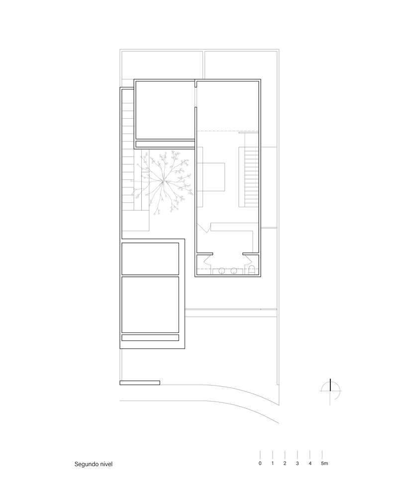
لاحظ توزيع الفراغات لصناعة تجربة مختلفة
المجلس مفصول وبارتفاع مضاعف
والمطبخ بشكل طولي واطلالات على الفاء والحديقة الخلفية
والدرج خارجي بالكامل !!!
المنزل في المكسيك في بيئة صحراوية مثل بيئة خليجنا العربي ,,,
التصميم المعماري يحقق الجمال دون تعارض مع المحددات بأنواعها ,,,
وهنا الفناء الداخلي برغم صغر مساحته إلا انه أوجد انشراح كبير ,,,
لاحظ أن التشطيب من الدهان , ويتكامل معه توزيع الأشجار لتجعل المكان ينبض بالحياة ويجملها ,,,
الجودة تكمن في التفاصيل ,,,
وهنا ترى
الفناء الأمامي والمؤدي إلى المجلس مع وجود الخصوصية عن الفناء الداخلي
المطبخ وتوظيف دواليب التخزين لتكون مكملاً للجمال البصري
المجلس المفصول بالارتفاع المضاعف
استثمر في التصميم تستمتع بالنتائج ,,,
وهنا مخططات المنزل
بساطة مطلقة وجمال متكامل ,,,
وختاماً صور متفرقة للمشروع ,,,
دمتم بود 🌹

جاري تحميل الاقتراحات...