م.عبدالرحمن التركي
م.عبدالرحمن التركي

@ArchPlaces

9 تغريدة 12 قراءة Jan 12, 2024
اهلا وسهلا بكم ,,,
حديثنا اليوم عن منزل في اندونيسيا , وكل ما ستراه من تجربة مستخدم نهائي عظيمة تقع في مسطح بناء 300 م2 فقط !!!!!!!!!!!!
هذه اللوحة الفنية التي تراها في ما يستقبلك عند نزول الدرج في يوم فكيف بباقي الفراغات ؟!!!!!!
نصف المال نظرة ,,,
بداية من الواجهة
مع انها بعرض لا يتجاوز 10م إلا أنها بجمال فاتن
واضاءة صناعية مدورسة ترفع من قيمة ذلك الجمال
وتشطيب يغلب عليه الدهان
الجمال لا يعني التكلف إطلاقا ,,,
وهنا المدخل الذي يستقبلك كل يوم
بمنطقة خارجية مظللة
ثم موزع يرحب بحواز كاسرة
لتنتقل إلى فراغ المعيشة وتنتقل إلى عالمك الخاص
التجربة المعمارية رواية انت بطلها ,,,
وهذه هي صالة الجلوس اليومية
إن الصمت في حضرة الجمال , جمال ,,,
لكن التساؤل لماذا لا تكون صالة منزلك بمثل هذا الجمال ؟!!!
وما بين الليل والنهار جمال يتحدث وروح تتجدد
استثمر في التصميم تستمتع بالنتائج ,,,
وهنا الدرج تحول إلى تحفة فنية
وبعد ذلك ترى الممر الرئيسي في الدور الأول باتصال لا ينقطع عن صالة المعيشة والفناء الخلفي
لتنتهي رحلتك بحديقة مختصرة ومسبح خاص
العمارة هي صناعة التجربة للمستخدم النهائي ,,,
وهنا صالة الجلوس في الدور الأول
وأحد اجنحة النوم ,
ليست اتساع المساحات بل بتصميم الفراغات ,,,
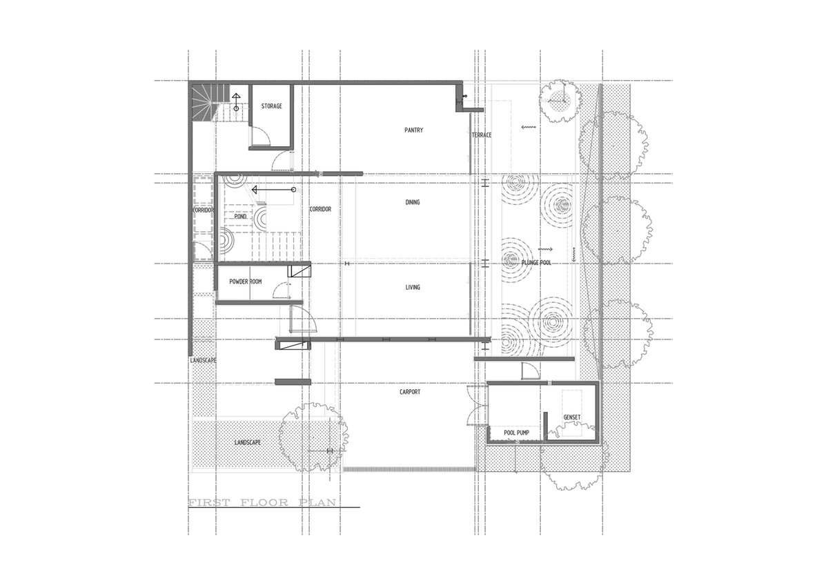
وهنا مخططات المنزل كاملة ,,,
وختاماً صور متفرقة للمشروع ,,,
دمتم بود 🌹

جاري تحميل الاقتراحات...