في هذه المرحلة يحتاج #المالك التعاقد مع #مكتب_هندسي لعمل أول أربعة بنود :-
١- المخططات المعمارية
٢-مخطط الواجهات للمبنى
٣-المخططات الانشائية بشكل مفصل
٤-التراخيص الحكومية
٥-العقود
يتبع ٢
١- المخططات المعمارية
٢-مخطط الواجهات للمبنى
٣-المخططات الانشائية بشكل مفصل
٤-التراخيص الحكومية
٥-العقود
يتبع ٢
المخططات المعمارية : هو مخطط تصميمي للمبنى يقوم فيه #المكتب_الهندسي حيث يرى فيه #المالك تفاصيل الغرف وأحجامها والمداخل والمخارج وأبعادها بشكل مرئي واضح كما هو موضح بالصورة
يتبع ٣
يتبع ٣
#مخطط_الواجهات_للمبنى : هو تصميم للشكل الخارجي للمبنى من جميع الجهات حيث يقوم بتصميمه #المكتب_الهندسي كنوع من المراجع التي تسهل للمقاول رؤيته أثناء عمله للوصول للشكل النهائي للمبنى
يتبع ٤
يتبع ٤
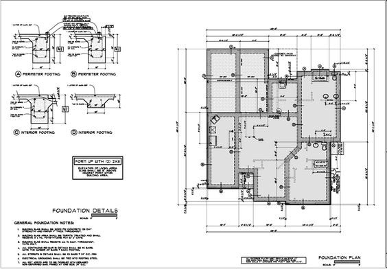
#المخططات_الإنشائية: هي مخططات تحتوي على التفاصيل الفنية الهندسية للمبنى من كمية أسياخ الحديد اللازمة وقوة الخرسانة وتفاصيل الأعمدة والجسور والبلاطات والأسقف
ملاحظة: عمل فحص للتربة قبل رسم المخطط مهم حتى يفهم #المهندس_الإنشائي مدى قوة التربة ويحسب أحجام القواعد والأعمدة
يتبع ٥
ملاحظة: عمل فحص للتربة قبل رسم المخطط مهم حتى يفهم #المهندس_الإنشائي مدى قوة التربة ويحسب أحجام القواعد والأعمدة
يتبع ٥
#التراخيص_الحكومية: وهي تراخيص يجب الحصول عليها قبل البدء وأثناء وبعد البناء
قبل : رخصة هدام + رخصة بناء -البلدية
أثناء : تعهد إشراف - المكتب الهندسي
رخصة أمن وسلامة - البلدية
استلام حدود الأرض - بلدية
بعد : توصيل الماء + الكهرباء - البلدية ووزارة الكهرباء والماء
يتبع ٦
قبل : رخصة هدام + رخصة بناء -البلدية
أثناء : تعهد إشراف - المكتب الهندسي
رخصة أمن وسلامة - البلدية
استلام حدود الأرض - بلدية
بعد : توصيل الماء + الكهرباء - البلدية ووزارة الكهرباء والماء
يتبع ٦
يجب أيضا ذكر #بند للنظافة بشكل أسبوعي حتى يتسنى للمالك رؤية الموقع ومتابعة أعمال المقاول
بند القيمة الاجمالية للعقد
بند الدفعات المستحقة مع المدة الزمنية
بند المدة الزمنية للمشروع
بند المخالفات التي يعملها المقاول
ملاحظة : اجعل دفعاتك صغيرة حتى تكون لك اليد العليا في المفاوضات
بند القيمة الاجمالية للعقد
بند الدفعات المستحقة مع المدة الزمنية
بند المدة الزمنية للمشروع
بند المخالفات التي يعملها المقاول
ملاحظة : اجعل دفعاتك صغيرة حتى تكون لك اليد العليا في المفاوضات
جاري تحميل الاقتراحات...