المعماري/ هشام القاسم
المعماري/ هشام القاسم

@ArchHesham

5 تغريدة 5 قراءة Sep 25, 2021
#قصة_منزل
حديثنا اليوم عن منزل يقع في ڨيتنام.
على مساحة 75متر مربع فقط.
بني هذا العام.
استمتع بحلول #العمارة_الخضراء التي تم تطبيقها.
يقع البيت في منطقة تراثية الهوية لذا التزم البناء بإرشادات التخطيط والهندسة المعمارية، وكثافة البناء التي تحددها الأنظمة.
وكان للبيت سماته المحلية المميزة.
أحد أفراد الأسرة يعاني من صعوبة المشي لذلك يوفر البيت مكانا هادئا ملائما لنشاطاته اليومية ويخلق جوا من التفاؤل.
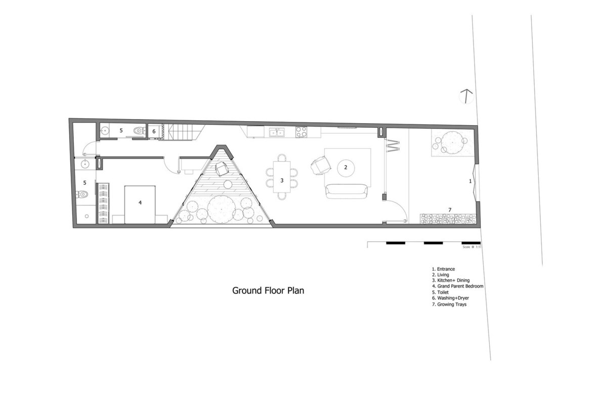
ويقع المكان المشترك الرئيسي للأسرة في الطابق الأرضي.
ويتصل المطبخ اتصالا مباشرا بغرفة نوم الوالد.
يُعتبر الفناء الأوسط من المعالم المميزة للبيت.
وتحتوي الساحة الوسطى على الكثير من الأشجار، كما يدخل الهواء والضوء المتدفق إلى المنزل عبر الفناء، مما يضمن له أقصى قدر من التهوية.
والتهوية هي السمة الرئيسية لهذا البيت لأنها تساعد البيت على تجنب الرطوبة .
ولزيادة الضوء والهواء الطبيعيين إلى أقصى حد، توجد لغرفتي النوم نوافذ زجاجية كبيرة تطل على الفناء.
بهذه الطريقة سيكون هناك هواء نقي في غرف النوم وفي الطابق العلوي.

جاري تحميل الاقتراحات...