م.عبدالرحمن التركي
م.عبدالرحمن التركي

@ArchPlaces

9 تغريدة 377 قراءة Apr 19, 2021
اهلا وسهلا بكم ,,,
حديثنا اليوم عن منزل تايلند , بإجمالي مسطح بناء 250 م2 فقط !!!
هذا المنزل في من الإتساع الشئ الكثير ويبين أن المفهوم الأهم في الفراغات الداخلية هي دراسة الإمتداد البصري وليس زيادة ابعاد المساحات ,,,
تقليل تكاليف وتحسين تجربة المستخدم هي جوهر هذا المنزل ,,,
بداية من الواجهة
لا جديد يذكر تراها من الدهان الأبيض فقط !!
وبعض النوافذ الزجاجية وشجرة معمرة تحيي المكان ,,,
تثبت لك هذه الواجهات تبين أن الجمال لا يرتبط بالتكلفة ولا بالمواد ولكنها بالتصميم ودراسة المخرج النهائي ,,,
استثمر بالتصميم تستمتع بالنتائج و توفر بالتكاليف ,,,
فناء أمامي صغير بحجمه كبير بنتائجه
مساحة هذا الفناء أصغر من بعض الإرتدادات في بعض منازلنا التي تكون غير مدروسة ولذلك تكون هدر ماليا على التكاليف!!
انظر كيف تتصل الصالة وطاولة الطعام وغرفة النوم بالفناء وكيف صنعت الشجرة المعمرة خصوصية لغرفة النوم (تكون الحلول طبيعية أحيانا !)
شيئاً من الجمال
الغير مكلف
البسيط
سهل التنفيذ
قليل مواد التشطيب
هذا الجمال يكون دائماً لا يبلى مع الزمن فالعين تألفه والنفس تقبله ,,,
هذه هي غرفة النوم الرئيسية في منزل إجمالي مسطح البناء فيه لا يتجاوز 250 م2 , قارنها بما تمتلك ثم أبحث عن السبب الذي لم يجعلك تمتلك مثل هذه النتائج!
المال؟
المواد؟
الأيدي العاملة؟
بل هي في تصميم مدروس ومخرج يستهدف تحسين تجربة المستخدم ,,,
استثمر في التصميم تستمتع بالنتائج ,,,
دورة المياه للجناح الرئيسي ,,,
حتى في تصميمها شئ مختلف ونتائج مميزة تعطي لك تجربة فريدة لا تتكرر ,,,
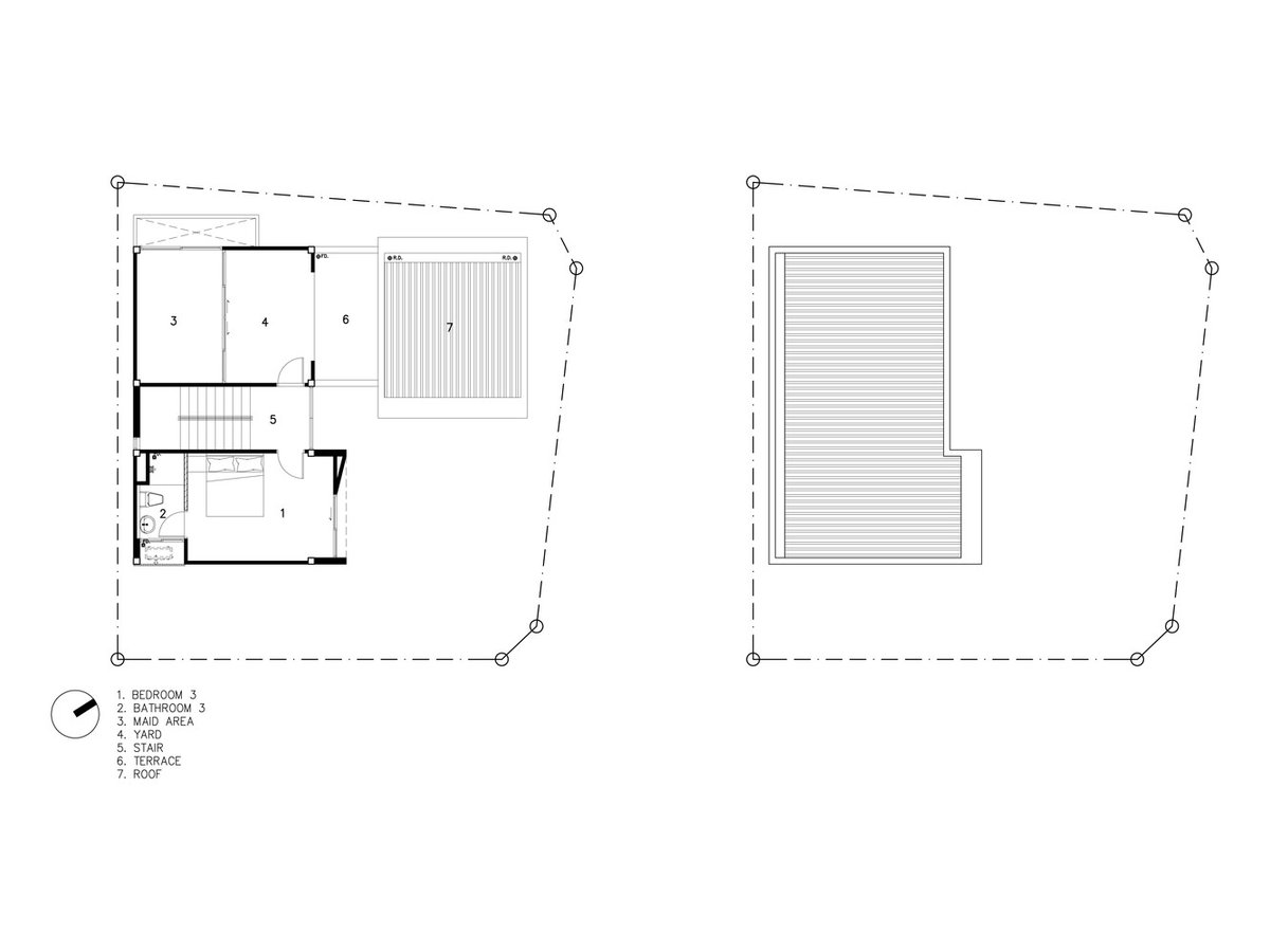
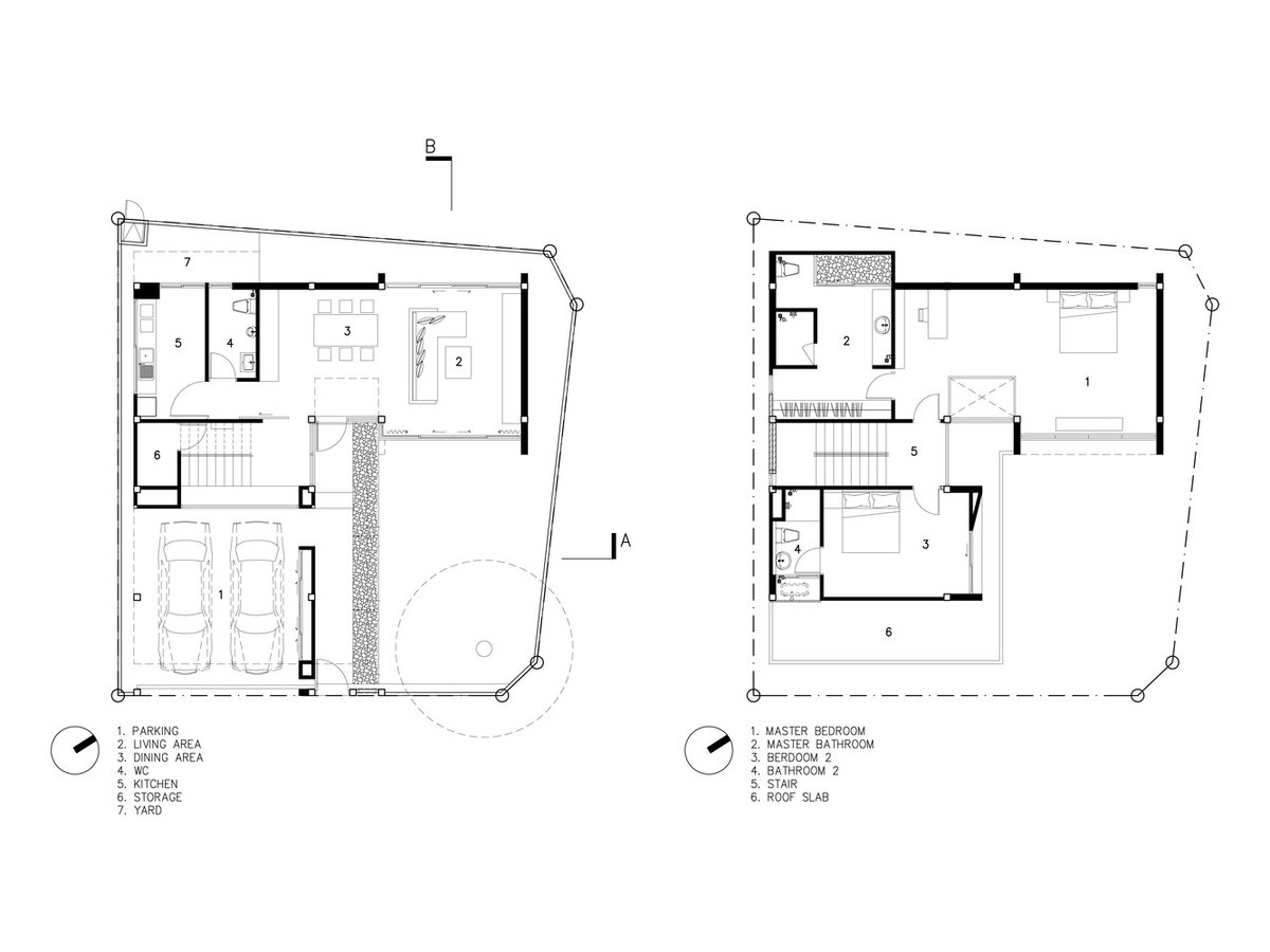
وهنا مخططات المنزل متكاملة ,,,
وختاماً صور متفرقة للمشروع ,,,
دمتم بود🌹

جاري تحميل الاقتراحات...