عبدالله
عبدالله

@averti11

10 تغريدة 4 قراءة Nov 06, 2020
#مقال_عمارة_وتشييد
مقال رقم (96)
10 Cabin Plans for Minimalist Living
10 مخططات لأكواخ (منازل منعزلة) لحياة بسيطه
الكاتب ايريك بالدوين
من architizer
يقول الكاتب على مدار العقد الماضي أصبح الكثير من الناس ينتقلون إلى أماكن منعزلة وخاصة.
و غالبا ما يعيشون في أكواخ مبنية لتعزيز الراحة والاسترخاء والتأمل.
هذه الأكواخ تساعد على الحياة ببساطة، الحياة البسيطة التي تسير جنباً إلى جنب مع الطبيعة.
وهذه الأكواخ مستوحاه من
- الحرف العامية
- وتقاليد البناء المحلية
المشروع الأول: من تصميم Bohlin Cywinski Jackson
ويقع في كندا
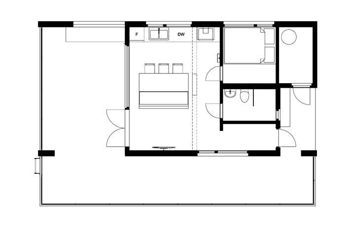
المشروع الثاني: من تصميم CCS Architecture NY
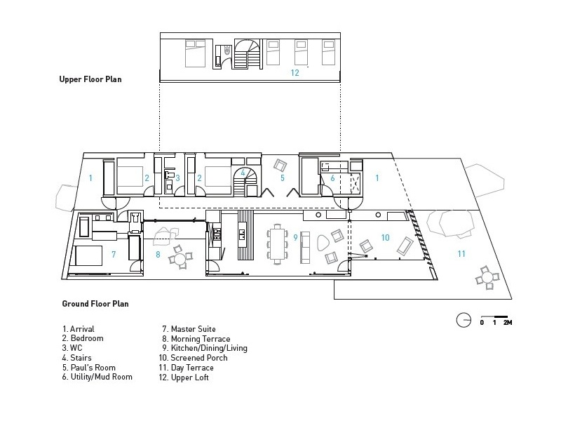
المشروع الثالث: من تصميم MacLennan Jaunkalns Miller Architects في كندا
المشروع الرابع: منزل في النرويج من تصميم Feste Landscape / Architecture,
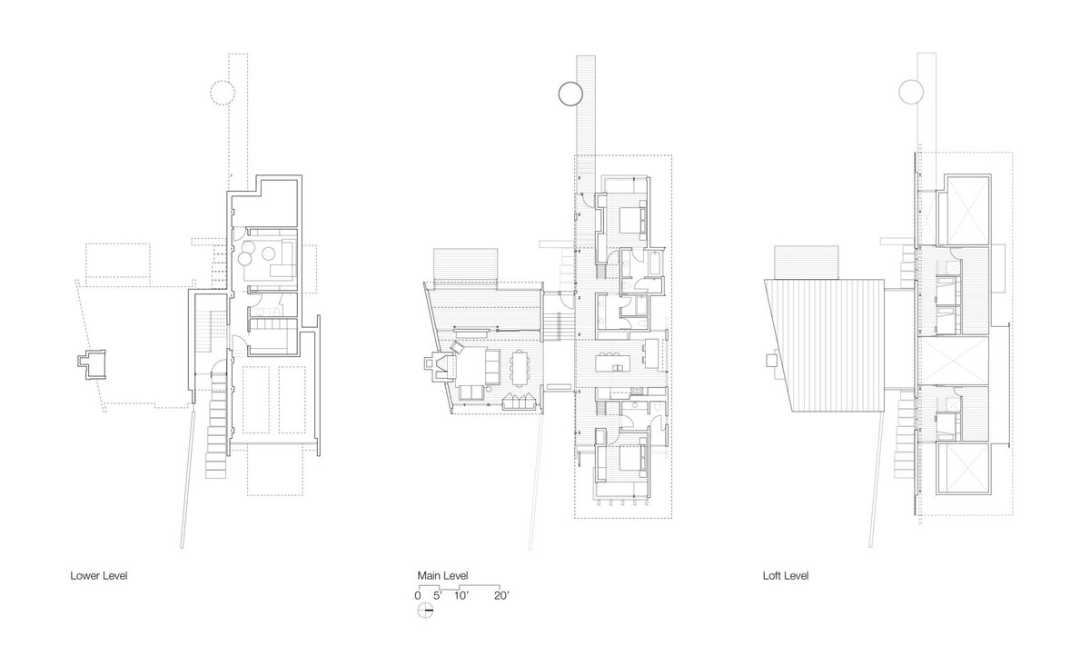
المشروع الخامس: في الولايات المتحده من تصميم Olson Kundig
يمكن الإطلاع على بقية المشاريع من هنا
architizer.com

جاري تحميل الاقتراحات...