م.عبدالرحمن التركي
م.عبدالرحمن التركي

@ArchPlaces

7 تغريدة 205 قراءة Oct 24, 2020
اهلا وسهلا بكم ,,,
حديثنا اليوم عن منزل جميل في اندونيسيا
منزل لطيف ويعطي لكل فراغ اطلالة مختلفة مميزة و لها امتداد بصري
تجربة العيش في هذا المنزل مختلفة عن باقي المنازل ,,,
هنا واجهات المنزل , الأمامية والخلفية على نمط واحد وأهمية تصميمية واحدة
أي حائط أو نافذة أو حتى باب في منزلك له أهمية بصرية إذا كان في مجال نظرك بشكل دائم,,,
وجود الفناء الخلفي أعطى للواجهة الخلفية أهمية
تفصيلة الباب بسيطة ومميزة ورائعة , والإضاءة صنعت تصور مختلف تماماً,,,
الصور التالية توضح التجربة المختلفة في هذا المنزل , الإتصال الخارجي مع الداخل على عدد من المستويات ,,,
أفنية شبه داخلية , بلكونة مختلفة , صالة معيشة متصلة بشكل مباشر مع المسبح , فناء داخلي صريح ,,,
كل فراغ منها يعطيك إحساس وجداني مختلف ,,,
وهنا صالة المعيشة في الدور الأرضي زجاج بالجهتين وإطلالة بانورامية , لاحظ اتصالها المباشر مع الفناء الداخلي ,,,
أما صالة المعيشة في الدور الأول فهي بسيطة و وظيفية بحته,,,
هي مختلفة ولكنها موحدة ,,,
هنا نقطة مميزة في المنزل , الدرج أصبح عنصر جمالي واضح ومختلف ومميز ,,,
اللمسات البسيطة تعطي نقلة نوعية في المنتج النهائي ,,,
هنا تصميم غرف النوم الرئيسية و دورات المياه ,
لا يوجد إلا مادة تشطيب واحدة لكل فراغ ولكن الأهم وجود الذائقة في عملية التصميم ,,,
اشتثمر في التصميم تستمع بالنتائج ,,,
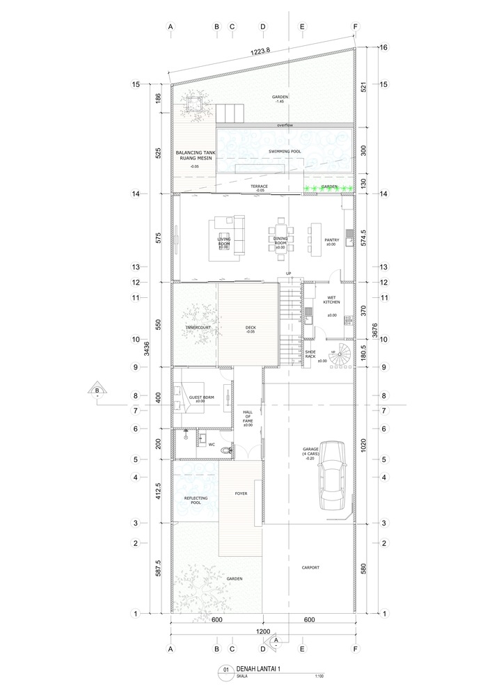
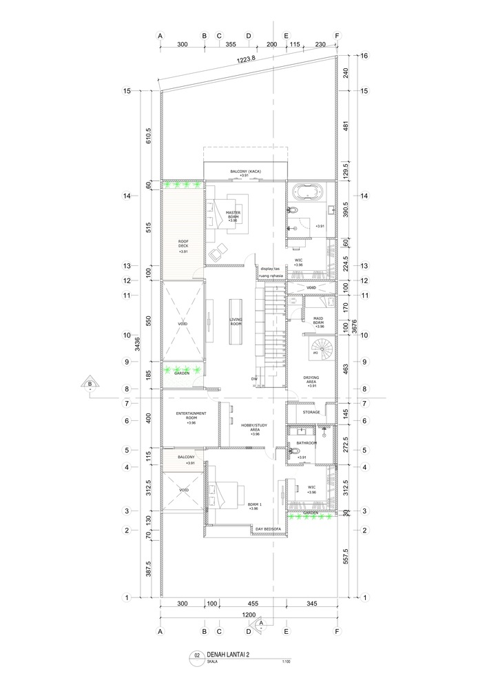
وختاماً نشارككم مخططات المنزل متكاملة ,,,
دمتم بود 🌹

جاري تحميل الاقتراحات...