نوف الرشيد
نوف الرشيد

@noufalrd

4 تغريدة 3 قراءة Apr 19, 2023
تصميم داخلي لشقة بمساحة ٤١ متر مربع
#تصميم_داخلي
تصميم لمنزل بمساحة 30 متر مربع
ثقافة استغلال المساحات الصغيرة 👌🏻
#تصميم_داخلي
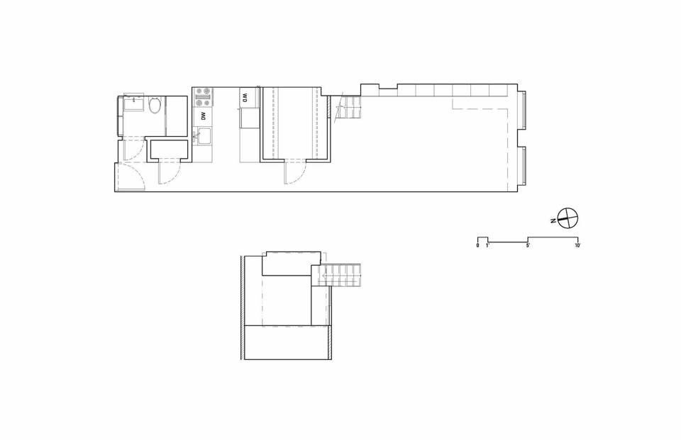
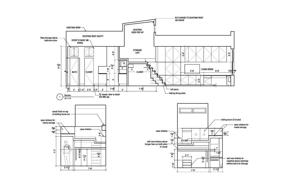
East Village Studio شقة "استديو" مساحتها أقل من 46 متر مربع
بتصميم مميز يوفر كل ما تحتاجه في حيز صغير
تصميم لشقة بمساحة 22 متر مربع فقط 👌🏻😍#تصميم_داخلي

جاري تحميل الاقتراحات...