صالح بن عبدالعزيز
صالح بن عبدالعزيز

@SA_arch1

6 تغريدة 30 قراءة Jul 14, 2023
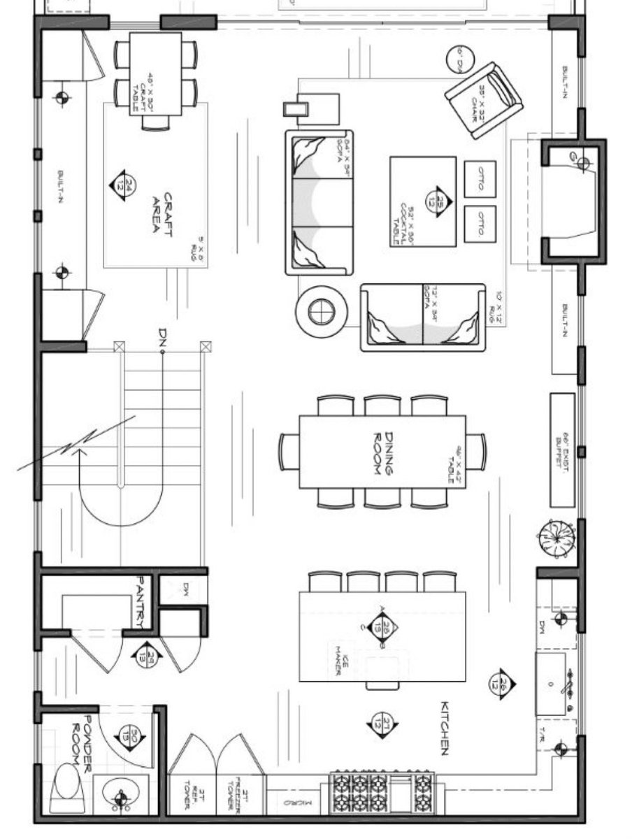
كيف نأثث صالة مفتوحة ؟
من اكثر الاشياء اللي يواجه فيها الناس صعوبة هي تاثيث الصالات المفتوحة، فكل ماكانت الصالة كبيرة ومفتوحة تزيد حيرة الشخص في طريقة التوزيع والتاثيث ..
بعطيكم بعض النقاط اللي ممكن تساعدك في هذا الموضوع .
-
#تصميم_داخلي
اولا: حدد احتياجك، بمعنى وش بيكون استخدامك لهذه الصالة، مثلا استقبال ضيوف او جلسة عائلية، وغيرها
-
#تصميم_داخلي
ثانيا : يتم تقسيم المساحة على الورق الى زونات، او مناطق منفصلة، وبهالطريقة تقل نسبة التشتت وتبدا تبان معك ملامح الصالة اكثر ويسهل عليك موضوع تحديد كل منطقة وش بتكون حسب احتياجك
-
#تصميم_داخلي
ثالثا ، بعد التقسيم يبدا توزيع الخدمات لكل زون ، بمعنى لو نفترض نحتاج طاولة طعام ، فنختار المربع الاقرب الى المطبخ
والجلسة الرئيسية هي الاقرب الى الشباك
ومثلا في الزون الثالث ، مكتبة تخدم المنطقتين
واذا وجد زون ثالث، فممكن تكون جلسة ثانوية مع مدفأة
وهكذا
-
#تصميم_داخلي
رابعا ، دايما في الصالة المفتوحة حاول تجنب لصق الاثاث على الجدار واترك مسافة بين الاثاث والجدار يعطيك انطباع بان المساحة اكبر مما هي عليه .
-
#تصميم_داخلي
خامسا، راعي مسارات الحركة بين المناطق بحيث يكون في سلاسة بالحركة وسهولة بالوصول بين كل زون والاخر ، فلا يشترط ملأ المكان بالاثاث بالكامل ..
-
#تصميم_داخلي

جاري تحميل الاقتراحات...