كيف نأثث صالة مفتوحة ؟
من اكثر الاشياء اللي يواجه فيها الناس صعوبة هي تاثيث الصالات المفتوحة، فكل ماكانت الصالة كبيرة ومفتوحة تزيد حيرة الشخص في طريقة التوزيع والتاثيث ..
بعطيكم بعض النقاط اللي ممكن تساعدك في هذا الموضوع .
-
#تصميم_داخلي #عيد_الفطر
من اكثر الاشياء اللي يواجه فيها الناس صعوبة هي تاثيث الصالات المفتوحة، فكل ماكانت الصالة كبيرة ومفتوحة تزيد حيرة الشخص في طريقة التوزيع والتاثيث ..
بعطيكم بعض النقاط اللي ممكن تساعدك في هذا الموضوع .
-
#تصميم_داخلي #عيد_الفطر
اولا: حدد احتياجك، بمعنى وش بيكون استخدامك لهذه الصالة، مثلا استقبال ضيوف او جلسة عائلية، وغيرها
-
#تصميم_داخلي
-
#تصميم_داخلي
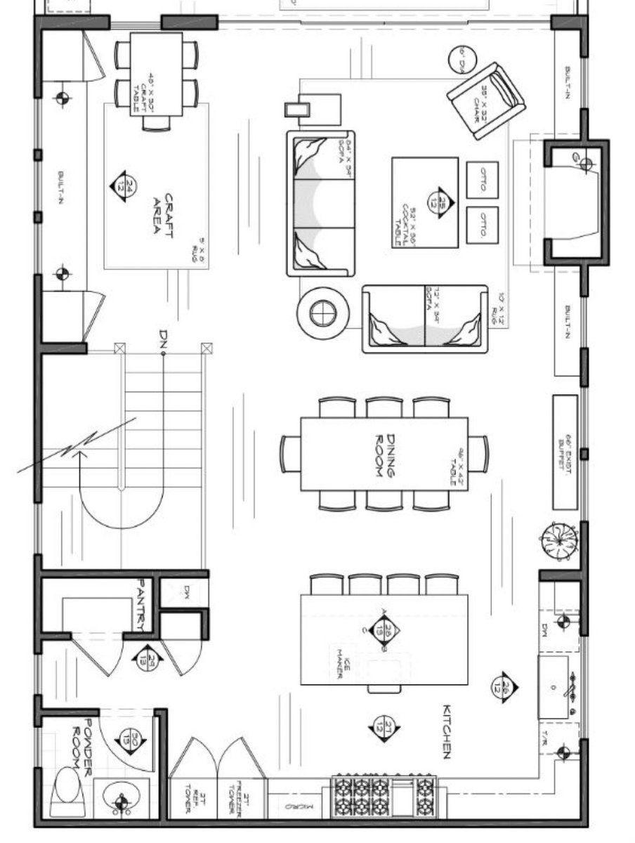
ثانيا : يتم تقسيم المساحة على الورق الى زونات، او مناطق منفصلة، وبهالطريقة تقل نسبة التشتت وتبدا تبان معك ملامح الصالة اكثر ويسهل عليك موضوع تحديد كل منطقة وش بتكون حسب احتياجك
-
#تصميم_داخلي
-
#تصميم_داخلي
ثالثا ، بعد التقسيم يبدا توزيع الخدمات لكل زون ، بمعنى لو نفترض نحتاج طاولة طعام ، فنختار المربع الاقرب الى المطبخ
والجلسة الرئيسية هي الاقرب الى الشباك
ومثلا في الزون الثالث ، مكتبة تخدم المنطقتين
واذا وجد زون ثالث، فممكن تكون جلسة ثانوية مع مدفأة
وهكذا
-
#تصميم_داخلي
والجلسة الرئيسية هي الاقرب الى الشباك
ومثلا في الزون الثالث ، مكتبة تخدم المنطقتين
واذا وجد زون ثالث، فممكن تكون جلسة ثانوية مع مدفأة
وهكذا
-
#تصميم_داخلي
رابعا ، دايما في الصالة المفتوحة حاول تجنب لصق الاثاث على الجدار واترك مسافة بين الاثاث والجدار يعطيك انطباع بان المساحة اكبر مما هي عليه .
-
#تصميم_داخلي
-
#تصميم_داخلي
خامسا ، يمكن ترتيب المكان وتنظيمه بوضع فواصل ( بارتشن ) بين كل منطقة
وايضا يمكن تمييز احد هذه المناطق بارضية مختلفة تعطي ترتيب في المكان
-
#تصميم_داخلي
وايضا يمكن تمييز احد هذه المناطق بارضية مختلفة تعطي ترتيب في المكان
-
#تصميم_داخلي
سادسا، راعي مسارات الحركة بين المناطق بحيث يكون في سلاسة بالحركة وسهولة بالوصول بين كل زون والاخر ، فلا يشترط ملأ المكان بالاثاث بالكامل ..
-
#تصميم_داخلي
-
#تصميم_داخلي
جاري تحميل الاقتراحات...