م.عبدالرحمن التركي
م.عبدالرحمن التركي

@ArchPlaces

7 تغريدة 149 قراءة Feb 23, 2023
اهلا وسهلا بكم ,,,
حديثنا اليوم عن منزل في اندونيسيا
كل ما ستراه من جمال واتساع بصري وتجربة مميزة للمستخدم النهائي تقع في اجمالي مسطح بناء لا يتجاوز 400 م2 فقط !!!!!!
قارن هذه التجربة الفريدة مع تجربتك في منزلك !!
وتذكر أن الاستثمار في التصميم يجعلك تستمتع بالنتائج ,,,
بداية من الواجهة
هذا المنزل يقع لعى ارض في منحدر وبتعامل المعماري الإحترافي جعل العيب ميزة بتكوين كتلي مميز وبسيط ودائم ليصنع تجربة فريدة في خصوصية كاملة
لاحظ أن التشطيب لا يخرج عن
الدهان
الخشب
واللياسة
والكثير من الجمال المعماري
الجمال لا يعني التكلف اطلاقاً ,,,
إن الفراغات يمكن ان تخدم كل الانشطة دون اخلال !
لاحظ يا عزيزي كيف تحول الإرتداد الأمامي من منطقة مهملة دون قيمة إلى قيمة مضافة في المنزل
اطلالة المطبخ المفتوح على الحديقة
انارة طبيعية كافية واتصال بصري مع المدخل الرئيسي
الجودة تكمن في التفاصيل ,,,
أما صالة الجلوس
اعلم ان عرض الصالة لن يتجاوز عرض الصالة التي تعيش فيها ولكن شتان بين تجربة الفراغين
مسبح شبه خارجي بجانب الصالة
وانارة مدروسة لترفع من جودة الفراغ
وتشطيب من الدهان وشئ من التيوبات
وانشطة معيشة كاملة في فراغ واحد
استثمر في التصميم تستمتع بالنتائج ,,,
وهنا دراسة جميع التفاصيل البصرية ,,,
لاحظ ما تراه عند صعودك او نزولك من الدرج
تناغم بين الإنارة الطبيعية والتشطيب
لاحظ حجم دورة المياه في الجناح الرئيسي في هذا المنزل الأيقوني
التصميم المعماري يصنع الفارق ويشكل الحياة ,,,
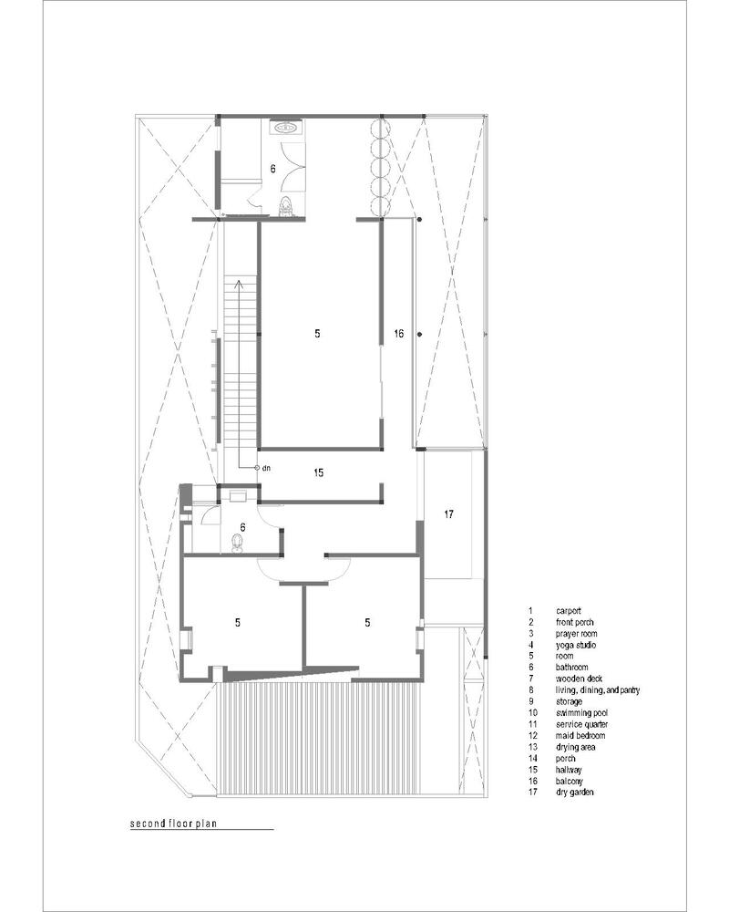
وهنا مخططات المنزل
لاحظ يا عزيزي أن الدور الأول يحتوي على جناح رئيسي كبير وجناحين للأبناء بالإضافة إلى غرفة متعددة الإستخدامات ,,,
الجودة تكمن في التفاصيل ,,,
وختاماً صور متفرقة للمشروع ,,,
دمتم بود 🌹

جاري تحميل الاقتراحات...