عبدالله الدخيل الله
عبدالله الدخيل الله

@aaldakheelalla

9 تغريدة Dec 25, 2022
أنا ما أعرف حنا كيف مستمرين بالترخيص لشقق سكنية (نطمح انها تستوعب عدد كبير من السكان وتغير مفهوم الفلل التي تحفز التمدد) ولا زلنا نقدمها باشتراطات المناور 🤦🏻‍♂️،
حرام نحشر البشر في مساكن بدون جودة حياة و تهوية و اضاءة طبيعية كافية، ويجب على المعماريين تبني ال Point Access plan
تطبيقات مخطط ال Point access plan كثيرة في اوروبا، والدول الي تحاول تحفز الشقة السكنية كخيار دائم او أساسي للعيش
(عكس الممارسات الشمال امريكية الي تعتبر الشقة مرحلية او لمنخفضي الدخل او المضطرين)
تجد هالنوع من التعامل تفرضه البلدية وتجبر المطور على تحقيق جودة حياة بدون مناور☝🏻
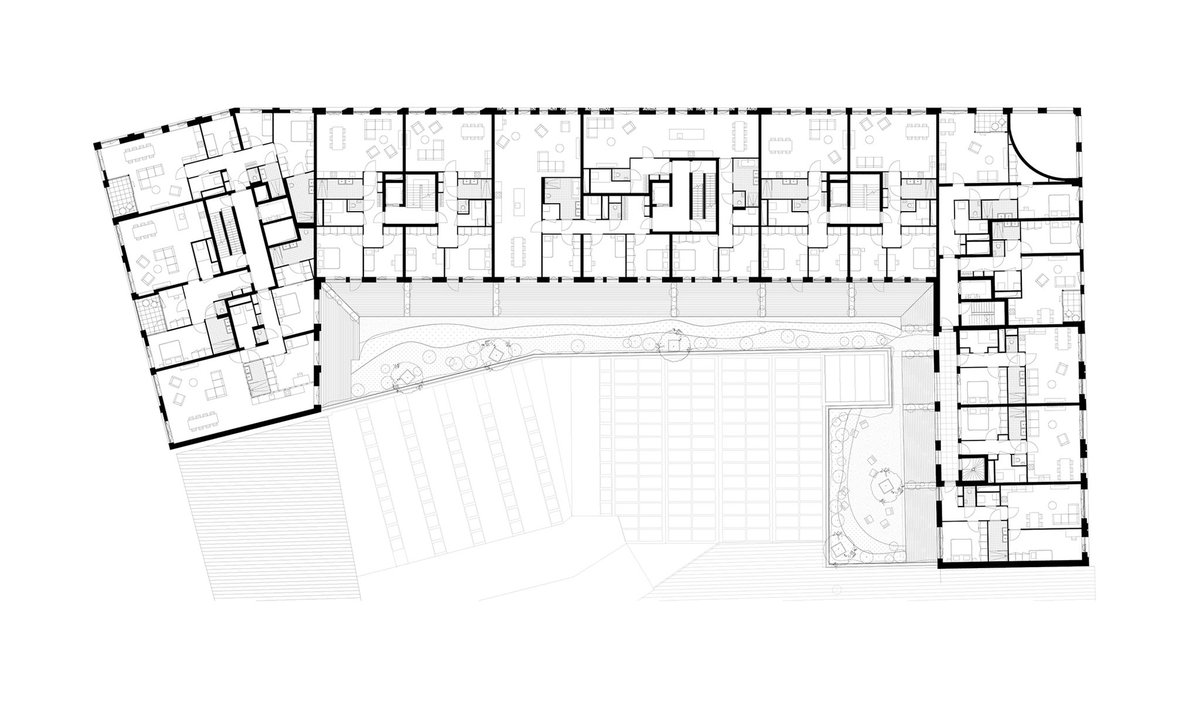
هذه بعض النماذج من التعامل السائد في جميع المشاريع التطويرية للمساكن والشقق.
ابحث عن المناور 😁
هذه هي الكثافة الجميلة 😍،
كل المشاريع السابقة من تصميم المكتب المعماري الهولندي barcode
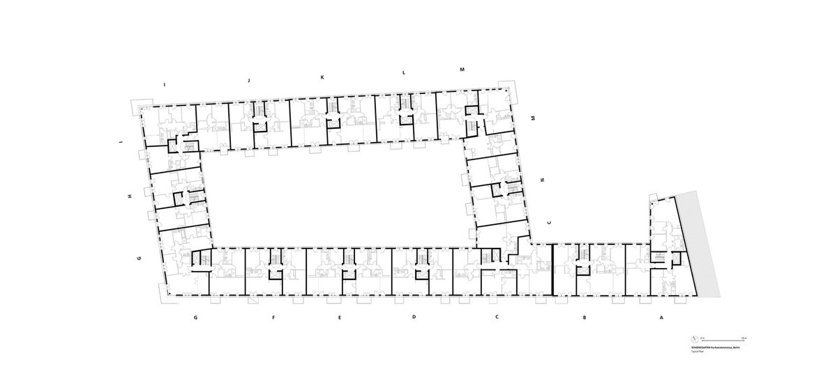
عمارة سكنية في برلين، المانيا، ٧ ادوار
تطبيق الكثافة العالية، والواجهة الحيوية بالمتاجر وبدون مواقف في الفضاء العام، كل وحدة لها اطلالتين بدون ممرات وهدر مساحة وتقليل تكلفة على المطور = تقليل سعر الوحدة على المالك💁🏻‍♂️
واجهات متنوعة وجميلة
شرح جيد عن احد الاسباب التي تجعل من خيار الفيلا (منزل مستقل) هي الخيار الامثل للمواطن الامريكي هو رداءة اشتراطات العمائر السكنية التي توفر تهوية و اضاءة طبيعية من خلال تبني access point plan
والي يزيد من الخصوصية و جودة المعيشة في مسطح بناء صغير نسبياً ويساهم برفع الكثافة
الخلل في الكثافة وجودة الوحدات السكنية الصغيرة وخصوصيتها و التهوية والاضاءة ، و سبب عدم تقبل الاغلبية للشقة السكنية هو خلل تصميمي بحت و ضعف عمراني في ردف المنتجات المعمارية وتقسيمات الاراضي للاسف،
نسخ المنتجات امريكية معمارية وعمرانية تنتج لنا مشاكل مشابهة لماتعانية الUS
للاسف ان التكوين العمراني وتقسيمات الاراضي للاحياء لدينا بعيدة جداً عن تحفيز بيئات سكنية كثيفة وبجودة مثالية، ستحتاج الى مطور مبتكر وارض مثالية عميقة والمرور بالكثير من الاستثناءات لتحقيق رتوش من هذه الابعاد العمرانية الاساسية والبديهية ،
هذه الكثافة حققت موقف سيارة لكل وحدة سكنية، و 20% من المسطحات للمكاتب والاعمال، و 10% متاجر.
ومربوطة بشكل جيد بالنقل العام الاقليمي ☝🏻،
تعتبر مستحيلة وصعبة على الممارسات البدائية للأسف💁🏻‍♂️

جاري تحميل الاقتراحات...