عبدالله الدخيل الله
عبدالله الدخيل الله

@aaldakheelalla

4 تغريدة Dec 25, 2022
أسباب عدم تقبُل الجيل الجديد حتى الان للشقة السكنية كخيار سكن حتى في بدايات حياته المهنية هو سوء الخيارات والحلول المعمارية، والي سبب توجه للمنازل المستقلة او الduplex الي يبقى عالى الاستهلاك للأرض ولايحقق كثافات عالية
الحل المعماري الجيد هو انعكاس لنسيج عمراني مثالي
تفشل🤦🏻‍♂️
اذا ماكان التطوير ضمن نسيج عمراني موجه للنقل العام بشكل مدروس وفيه خلط وتنوع بالوحدات والاحجام وكثيف، ويفتح النفس💁🏻‍♂️
لن تفيد الديكورات في الواجهات، مادامت الوحدات الى الان تعتمد على المناور والاطلالة خارجية من واجهة واحدة.
بل للاسف ستعمل كاداة اقصاء طبقي بدون قيمة معمارية فعلية
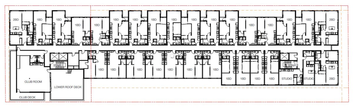
أهم سبب لرداءة الشقق السكنية هو الاشتراطات الي وبكل وضوح ماتحفز خيار الشقة كخيار سكن دائم ، وهو نابع من نفس ثقافة الممارسة العمرانية لدينا للاسف
بحيث فرض ارتفاع ثابت و القبول بالمناور التي تعتبر (عيب معماري كبير)، ساهمت بان الحلول تعمل على تكديس للبشر بشكل غير مثالي،
قارن💁🏻‍♂️
@holz_bau
لديه وصف جميل و دقيق للاشتراطات المعماري في الولايات المتحدة، والي تسمح للمطور بتطبيق double loaded corridor
لان الارتفاع قصير، والمطور يحتاج يربح وعدد الوحدات هو اهم شيئ ، ولا يهم جودة تصميم المنتج وكفاءته،
النتيجة💁🏻‍♂️
😂😂😂

جاري تحميل الاقتراحات...