رغم كل التطور اللي تشهده العمارة في أنحاء العالم وسيرها على وتيرة متسارعة في مضمار العلوم نجد بعض القصور في جانب خدمة ذوي الاحتياجات الخاصة بما يحول بينهم وبين حرية الحركة داخل الفراغ
وبهذا الثريد بنسرد أسس معمارية لتصميم فراغات تخدمهم وتسهل نشاطهم اليومي👌🏻.
#تصميم_داخلي
وبهذا الثريد بنسرد أسس معمارية لتصميم فراغات تخدمهم وتسهل نشاطهم اليومي👌🏻.
#تصميم_داخلي
أولاً: أبعاد ضرورية
معرفة أبعاد الكرسي وحدود حركته ودورانه بيساعدك على تحديد القياسات والأبعاد والارتفاعات اللي يستطيع المقعد الوصول لها واستخدامها بسهولة👍🏻
#تصميم_داخلي
معرفة أبعاد الكرسي وحدود حركته ودورانه بيساعدك على تحديد القياسات والأبعاد والارتفاعات اللي يستطيع المقعد الوصول لها واستخدامها بسهولة👍🏻
#تصميم_داخلي
ثانياً: الممرات والحوائط
-لا يقل عرض الممر عن ١.٥م لحرية المرور والاستدارة ومرور شخص بجانبه و٩٠سم للمرور فقط
-تجهز الحوائط بمساند أيدي"درابزين" تكون بارتفاع ٨٥-٩٥سم (موضح أبعادها بالصورة)
- يقترح ألا تقل أبعاد الغرفة عن ٤م*٤م
-ارتفاع مفاتيح الكهرباء ٤٥-١٢٠سم
#تصميم_داخلي
-لا يقل عرض الممر عن ١.٥م لحرية المرور والاستدارة ومرور شخص بجانبه و٩٠سم للمرور فقط
-تجهز الحوائط بمساند أيدي"درابزين" تكون بارتفاع ٨٥-٩٥سم (موضح أبعادها بالصورة)
- يقترح ألا تقل أبعاد الغرفة عن ٤م*٤م
-ارتفاع مفاتيح الكهرباء ٤٥-١٢٠سم
#تصميم_داخلي
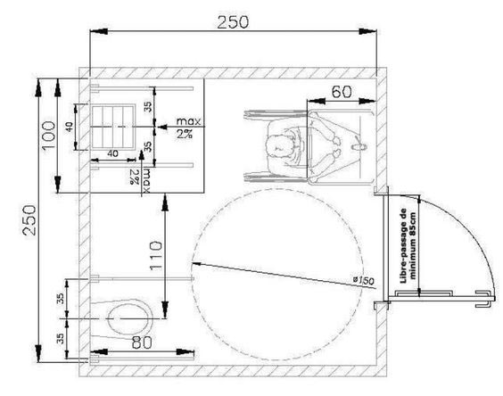
ثانياً : دورات المياه
-أن تسمح أبعاد الحمام بدخوله بعربته وإغلاق الباب والانتقال بسهولة للكرسي(الأبعاد موضحة بالصورة)
-يجب أن تفتح أبواب الحمام للخارج إلا إذا كانت أبعاد الحمام كافية لفتحه للداخل وأن تُزود بقفل يمكن فتحه من الخارج في حالة الطوارئ
#تصميم_داخلي
-أن تسمح أبعاد الحمام بدخوله بعربته وإغلاق الباب والانتقال بسهولة للكرسي(الأبعاد موضحة بالصورة)
-يجب أن تفتح أبواب الحمام للخارج إلا إذا كانت أبعاد الحمام كافية لفتحه للداخل وأن تُزود بقفل يمكن فتحه من الخارج في حالة الطوارئ
#تصميم_داخلي
-المغسلة يكون إرتفاعها العلوي 80سم وتبعد عن الجدار المجاور بمسافة لاتقل عن 15سم وتكون بدون عمود أو رف وتجهز بمرآة ارتفاع أسفلها عن الأرض لايزيدعن 90سم ويكون الخـلاط بذراع واحد وطويل (كما في الصورة).
#تصميم_داخلي
#تصميم_داخلي
-لايفضل استخدام البانيو ويكتفى بالدش بجلسه متحركة على الحائط بارتفاع ما
بين 45سم و 50 سم ويفضل تركيب دش متحرك مابين 120سم و180سم و لـي لايقل طوله عن 150سم
- في حال استخدام البانيو تزود برافعة متحركة (كما في الصورة)
#تصميم_داخلي
بين 45سم و 50 سم ويفضل تركيب دش متحرك مابين 120سم و180سم و لـي لايقل طوله عن 150سم
- في حال استخدام البانيو تزود برافعة متحركة (كما في الصورة)
#تصميم_داخلي
ثالثا: الأبواب
-عرض الباب الصافي لا يقل عن 90سم
-يجب توفر فراغ كافي قبل الباب للحركة ولفتح وغلق الباب لايقل عن 120سم *150سم .
-يجب أن يكون مقبض الباب بذراع ولا يستخدم الكروي ويرتفع عن الأرض مابين 90سم و100سم
#تصميم_داخلي
-عرض الباب الصافي لا يقل عن 90سم
-يجب توفر فراغ كافي قبل الباب للحركة ولفتح وغلق الباب لايقل عن 120سم *150سم .
-يجب أن يكون مقبض الباب بذراع ولا يستخدم الكروي ويرتفع عن الأرض مابين 90سم و100سم
#تصميم_داخلي
رابعاً : المنحدر "الرامب"
"من أهم العناصر اللازم توفرها لتسهيل الانتقال بين المستويات👍🏻"
- ميل المنحدر يكون ١:١٦ (كل ١٦سم يرفع ١سم ).
-وضع استراحة كل ٨م بطول ١٢٠سم
-عرض المنحدر لا يقل عن ١٥٠سم
- أرضية المنحدر خشنة لا تسبب الانزلاق
- تُزود بمساند من الجهتين
#تصميم_داخلي
"من أهم العناصر اللازم توفرها لتسهيل الانتقال بين المستويات👍🏻"
- ميل المنحدر يكون ١:١٦ (كل ١٦سم يرفع ١سم ).
-وضع استراحة كل ٨م بطول ١٢٠سم
-عرض المنحدر لا يقل عن ١٥٠سم
- أرضية المنحدر خشنة لا تسبب الانزلاق
- تُزود بمساند من الجهتين
#تصميم_داخلي
خامسا : الدرج والمصعد
- في حال وجود مصعد وهو الأفضل يُراعى تصميمه وفق الأبعاد المناسبة(كما في الصورة)
-في حال عدم وجود المصعد يمكن استخدام الدرج الميكانيكي
#تصميم_داخلي
- في حال وجود مصعد وهو الأفضل يُراعى تصميمه وفق الأبعاد المناسبة(كما في الصورة)
-في حال عدم وجود المصعد يمكن استخدام الدرج الميكانيكي
#تصميم_داخلي
ختاماً ..
تذكر قبل تصمم بيتك تنبه المهندس في حال وجود شخص من ذوي الاحتياجات الخاصة من عائلتك ليتخذ الإجراءات المناسبة وخذ في عين الاعتبار احتمالية وجودها لا قدر الله👍🏻♿️.
#تصميم_داخلي
تذكر قبل تصمم بيتك تنبه المهندس في حال وجود شخص من ذوي الاحتياجات الخاصة من عائلتك ليتخذ الإجراءات المناسبة وخذ في عين الاعتبار احتمالية وجودها لا قدر الله👍🏻♿️.
#تصميم_داخلي
جاري تحميل الاقتراحات...