م.مهند الرميان
م.مهند الرميان

@malrmyan

26 تغريدة 32 قراءة Jan 06, 2022
في هذه التغريدات سأذكر أبرز النقاط التي وجدتها في الفصل الثالث من #الكود_السعودي السكني 1101
303.1 يجب ألا يقل حجم فتحة النافذة عن 8% من مساحة أرضية الغرفة.
يجب أن تكون مساحة النوافذ القابلة للفتح لا تقل عن 4% من مساحة الغرفة.
الضوء الصناعي يكون قادر على إنتاج 65 لوكس فوق أرضية الغرفة بـ 75 سم.
303.3 دورات المياه والمراوش يجب أن تتوفر بها نوافذ لا تقل عن 0.3 م2 نصفها قابل للفتح.
303.5 أبواب السحب يجب أن تبعد 3 أمتار على الأقل عن مصادر الخطر كالمداخن وفتحات التهوية وتهوية المواسير والشوارع والمواقف ومناطق التحميل.
303.7 يجب توفير إضاءة صناعية للدرج وفي حال كان الدرج أكثر من 6 درجات توضع مفاتيح في الجهتين
303.9.1 النوافذ المطلوبة تفتح على شارع أو ممر عام أو ساحة أو فناء
302.1غرف السكن لا تقل مساحة أرضيتها عن 6.5 م2 إلا المطابخ
302.2غرف السكن لا يقل طول أي بعد أفقي فيها عن 2.1 م إلا المطابخ
305.1 الممرات وغرف السكن والأقبية التي تحتوي على هذه الفراغات لا يقل ارتفاعها عن 2.1م.
الحمامات وغرف الغسيل ودورات المياه لا يقل ارتفاع سقفها عن 2م.
الغرف ذات السقف المائل لا يقل ارتفاع الميول فيها عن 1.5 م و50% من مساحة السقف تكون فوق 2.1 م.
306.1 كل وحدة سكنية يجب أن يتوفر لها خزان ومرحاض وحوض استحمام أو مروش.
306.2 كل وحدة سكنية يجب تزويدها بمساحة للمطبخ وكل مطبخ يزود بمغسلة.
306.3 تركيبات السباكة يجب أن تكون متصلة بالصرف الصحي أو نظام صرف صحي خاص معتمد.
306.4 تركيبات السباكة يجب أن تكون موصلة بمصدر مياه معتمد.
المجلى والمراحيض وأحواض الاستحمام والمراوش والشطافات وأحواض الغسيل ومخارج غسالة الملابس يجب أن يوفر لها ماء بارد وحار.
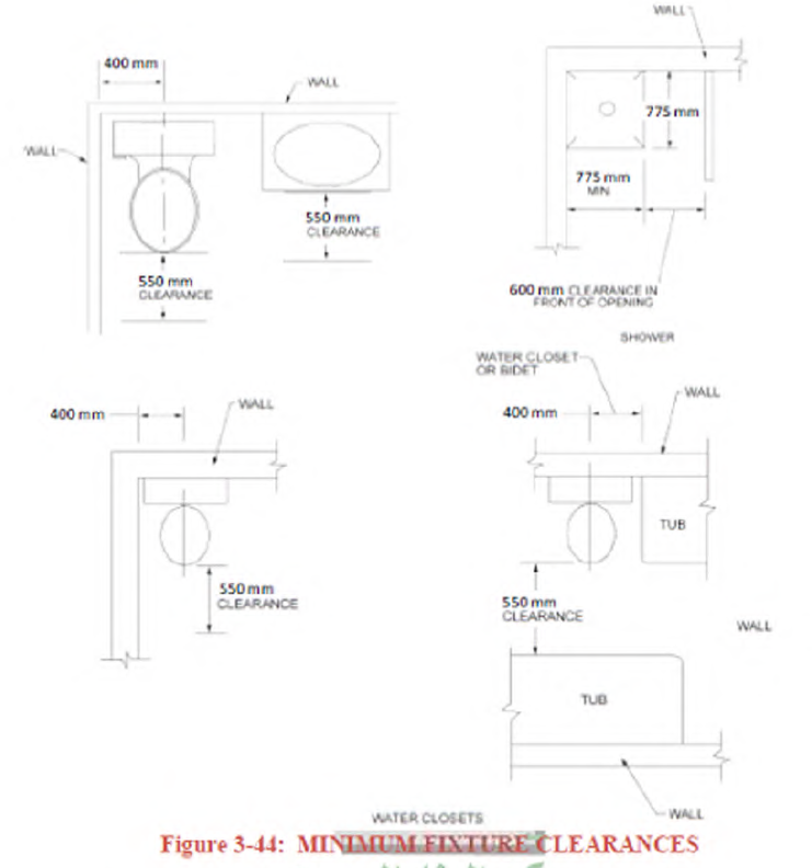
307.1 التركيبات يجب أن تكون متباعدة كما هو الحال في الشكل 3-44 وبالرجوع لـ (SBC1102)2705.1.
310.1 الأقبية والعليات الصالحة للسكن وكل غرفة نوم يتوفر بها على الأقل مخرج هروب وفتحة إنقاذ واحدة قابلة للتشغيل، في حالة وجود عدة غرفة نوم في القبو يجب أن يتوفر مخرج طوارئ في كل غرفة نوم، مخارج الهروب وفتحات الإنقاذ تفتح مباشرة على طريق عام أو ساحة أو فناء يفتح على ممر عام.
310.1.1 مخارج الهروب وفتحات الإنقاذ يجب أن تفتح من داخل الغرفة دون الحاجة لمفتاح أو أدوات أو معرفة خاصة.
فتحات النوافذ الآلية المتوافقة مع ASTMF2090 يجب أن يسمح باستخدامها على النوافذ المعدة كمخارج طوارئ وفتحات إنقاذ مطلوبة
310.2.1 مخارج الهروب وفتحات الإنقاذ يجب أن يكون صافي الفتحة لا يقل عن 0.53 م2، صافي الفتحة لا يقل ارتفاعه عن 60 سم وعرضه 50 سم.
310.2.2 جلسة النافذة في حال كانت معدة على أن تكون مخرج طوارئ يجب أن لا يزيد ارتفاعها عن 1.1 م من مستوى الأرضية.
في حالة آبار النوافذ يجب أن لا تقل مساحة البئر عن 0.9 م2 ، مساحة البئر يجب أن تسمح لمخرج الطوارئ أن يفتح بالكامل.
310.2.3.1 آبار النوافذ بعمق أكبر من 1.1 م يجب أن تزود بسلم دائم ثابت أو درج يستخدم مع النافذة بشكل مفتوح بالكامل.
310.2.3.2 آبار النوافذ يجب أن تصمم لتصريف المياه عبر التوصيل بتصريف مياه المبنى.
في حال توفر باب كمخرج للطوارئ يسمح بأن يكون الباب ضلفة أو باب سحب.
310.3.1 الحد الأدنى لصافي ارتفاع الفتحة لأي باب طوارئ ( نفس صافي فتحة النافذة للطوارئ)
310.5 في حال إضافة أجزاء للمسكن تحتوي على غرف نوم يجب توفير مخارج طوارئ في كل غرفة نوم
311.1 يجب أن توفر المساكن مخرجاً يكون له ممر مستمر خالي من العوائق يصل بين جميع أجزاء السكن إلى المخرج المطلوب دون الحاجة للمرور بالكراج، باب المخرج المطلوب يجب أن يفتح على طريق عام أو ساحة أو فناء يفتح على طريق عام.
311.2 يجب توفير مخرج على الأقل لكل وحدة سكنية، باب المخرج يجب أن يكون مفصلي جانبي، و صافي العرض لا يقل عن 80 سم ويفتح بدرجة 90o ، ولا يقل ارتفاعه عن 1.95، لا يلزم توافق الأبواب الأخرى للحد الأدنى لهذه الأطوال، باب المخرج يجب أن يفتح من داخل المسكن دون استخدام مفتاح أو معرفة خاصة
311.3 يجب أن تتوفر استراحة أو أرضية على كلتا جهتي الباب الخارجي.
عرض كل استراحة لا يقل عن عرض الباب ولا يقل امتدادها عن 0.90 سم.
نسبة الميلان في الاستراحة لا يزيد عن 4/1 وحدة عمودية في 12 وحدة أفقية 2%.
311.3.1 تشطيبات الأرضية عند المخرج المطلوب يجب أن لا تزيد عن 4 سم أقل من سطح العتبة.
311.3.2 الأبواب عدا باب الخروج يجب تزويدها باستراحة أو أرضية لا تزيد عن 18 سم دون سطح العتبة.
311.3.3 أبواب العواصف والأبواب الزجاجية مسموح بأن تفتح جهة الدرج الخارجي والاستراحة.
311.5.1 الاستراحات الخارجية، والدكات، والشرفات والدرج وما شابهها يجب أن تثبت على الهيكل الأساسي لمقاومة القوى الرأسية والجانبية أو أن يصمم ليكون داعماً لنفسه، الربط يجب أن لا يكون باستخدام مسامير.
311.7.1 أقل عرض للممر 0.90 م
ممر الدرج لا يقل عن 0.90 م
المسافة بين الدربزين والدربزين لا تقل عن 70سم
في حالة كان الدربزين بجهة واحدة فإن صافي الدرج بعد الدربزين لا يقل عن 80سم
أقل عمق للنايمة 25سم
أعلى ارتفاع للقايمة 18سم
مسكة اليد في الدربزين لا ترتفع عن 95 سم ولا تقل عن 85سم
311.7.3 شَدة الدرج يجب أن لا تزيد عن 3.7 م بين الأدوار أو الاستراحات.
مسار الحركة في نايمة المروحة يجب أن يكون مركزها لاتجاه المنحنى ويقع في 30 سم من الجانب حيث تكون المروحة أضيق.
الـ 30 سم يجب أن تقاس من أوسع نقطة من صافي عرض الدرج على سطح الحركة للمروحة.
311.7.5.1 القايمة يجب أن تكون عمودية أو مائلة بما لا يزيد عن 30 درجة
يجب أن لا يزيد نصف قطر أنف الدرجة عن 1.4 سم ولا يمتد أقل من 2 سم ولا يزيد عن 3 سم.
311.7.5.3 يجب أن تتوفر أرضية أو استراحة في بداية ونهاية مسار الدرج، يكون العرض متعامد باتجاه الصعود ولا يقل العرض عن عرض الدرج.
311.7.6الاستراحات ذوات الشكل غير المربع و المستطيل يسمح بها بشرط أن يكون عمق مسار الحركة وإجمالي المساحة ليس أقل من ربع دائرة مع نصف قطر يساوي عرض الاستراحة المطلوب
الدربزين يجب وجوده في جانب واحد على الأقل في حال امتد الدرج أكثر من 4 قايمات
ارتداد الدربزين عن الدرج لا يقل عن 4سم
311.8.1 نسبة ميل المنحدر لباب المخرج 1-12 (8.3%)، باقي المنحدرات تكون نسبة ميلها 1-8 (12.5%).
311.8.2 يجب توفير استراحة للمنحدر يفتح عليها الباب لا يقل عمقها عن 0.90 م.
311.8.3 يجب توفير دربزين على جهة واحدة على الأقل من المنحدر.
313.1.1 عند تركيب نظام رشاشات الحريق في الهيكل السكني يجب أن تُصَمَّم وتُرَكَّب وفقاً للقسم SBC1102)) 2904 أو NFPA13D.
314.2.1 إنذار الدخان يجب أن يتوفر في الوحدات السكنية.
314.2.2 في حال الترميم والتجديدات التي تتطلب تحديث رخصة، أو في حال إضافة غرفة نوم أو أكثر فإن الوحدات السكنية يجب أن تُزَوَّد بأجهزة إنذار دخان توضع كما هو مطلوب للمساكن الجديدة.
لمن أراد الملخص مجموعاً فهذا الرابط🌹
drive.google.com
تحياتي وأشواقي💐

جاري تحميل الاقتراحات...