محمد سلمان | MS
محمد سلمان | MS

@mohadart

4 تغريدة 1 قراءة Feb 04, 2023
من عنده الجرأة في تصميم واجهة بيته بهذا الطراز؟
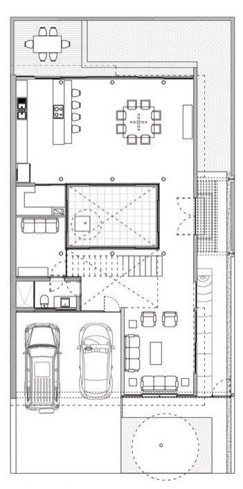
طبعاً الكثير يعتقد أنه مكتوم وهو عكس هالكلام تماااااماً، هذا النوع من التصاميم يعتمد على الفناء الداخلي واللي يوفر لك الاضاءة الطبيعية والخصوصية بنفس الوقت 😍
الفناء الداخلي يعطيك الحرية في تكبير حجم النوافذ ودخول الاضاءة الطبيعية داخل كامل البيت وفي نفس الوقت يوفّر لك خصوصيتك بحيث تكون إطلالة الغرف كلها على وسط البيت ☀️
أنقل لكم مخططات معمارية نماذج مشابهه للفكرة بغض النظر عن محتوها، للفائدة 🙏🏻

جاري تحميل الاقتراحات...