م.عبدالرحمن التركي
م.عبدالرحمن التركي

@ArchPlaces

5 تغريدة 62 قراءة May 23, 2021
اهلا وسهلا بكم ,,,
حديثنا اليوم عن تعديل أحد المخططات التي شاركتمونا اياها في عيد الفطر المبارك
وكان الإختيار لمخطط أ-@max_sa887
لنشارككم الأخطاء الموجودة بالمخطط وحلولها المعمارية ليتبين قدرة تأثير التصميم على التغيير الكبير على تجربة المستخدم النهائي
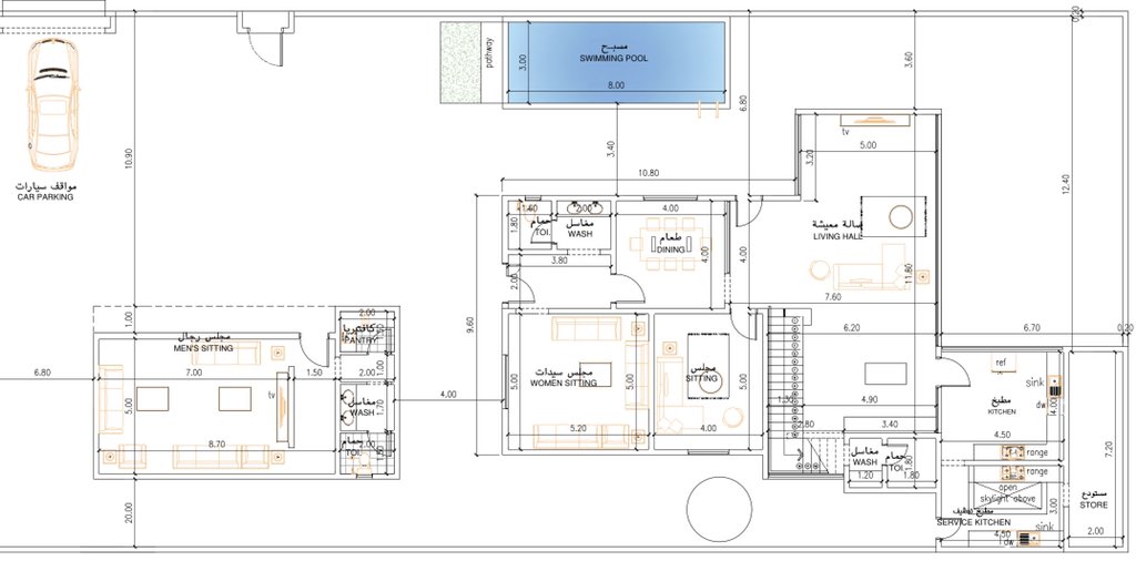
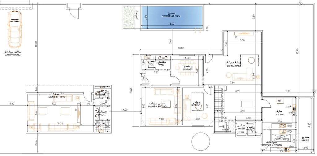
المخطط قبل و بعد ,,,
أبرز أخطاء المخطط
1/الفناء الأكبر لمجلس الرجال مع صغر فناء العائلة
2/المسبح يطل عليه دورة المياه والطعام!
3/المطبخ أبعد فراغ عن موقف السيارة
4/اتصال مباشر بين مدخل الفيلا والمطبخ!
5/دورة المياه للعائلة أسفل الدرج
6/مساحة مهدرة بسبب تصميم الدرج
7/مجلس العائلة باطلالة على الارتداد
وهنا قمنا بمعالجتها
1/فناء العائلة 10.5*14م وامتداد بصري لجلسة العائلة وحجم أكبر وممرات محددة
2/دمج مجلس العائلة و صالتها واستخدام بارتشنز
3/قرب موقف السيارة و المستودع
4/موزع لفصل و ربط المطبخ ودورة المياه
5/مدخل الطريق اصبح مفصول لتحقيق خصوصية أكبر لفناء العائلة عن الضيوف
هنا شرح للأخطاء وتبيينها بالتفاصيل
استثمر في التصميم تستمتع بالنتائج ,,,
وختاماً شرح للحلول وتبيينها ,,,
دمتم بود🌹

جاري تحميل الاقتراحات...