#فناء_اليوم:
#لاكاسيتا
#LaCasita
منزل صغير جداً, طراز عصري بالمكسيك.
المساحة ١١٨ م٢
الطول ٢٢.٧ م
العرض ٤.٦١
نعم ٤.٦١
٣ غرف نوم
صالون
طعام
مطبخ
جلسة علوية "تيراس"
٤ حمامات
التفت فراغاته على #فناء_داخلي صغير.
يذكرنا هذا التصميم بأن الوسع لايقاس بالأمتار.
التفاصيل والمخطط👇👇👇
#لاكاسيتا
#LaCasita
منزل صغير جداً, طراز عصري بالمكسيك.
المساحة ١١٨ م٢
الطول ٢٢.٧ م
العرض ٤.٦١
نعم ٤.٦١
٣ غرف نوم
صالون
طعام
مطبخ
جلسة علوية "تيراس"
٤ حمامات
التفت فراغاته على #فناء_داخلي صغير.
يذكرنا هذا التصميم بأن الوسع لايقاس بالأمتار.
التفاصيل والمخطط👇👇👇
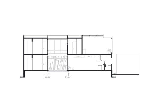
يتكون الدور الأرضي من الصالون الرئيسي، المطبخ، #الفناء_الداخلي ومنطقة الدرج، جناح للنوم به دورة مياه، وغرفة ملابس. دورة مياه أخرى.
واجهات المنزل الداخلية من الزجاج لإدخال أكبر قدر من الإنارة الطبيعية والحفاظ على التواصل البصري بين أرجاء المنزل.
واجهات المنزل الداخلية من الزجاج لإدخال أكبر قدر من الإنارة الطبيعية والحفاظ على التواصل البصري بين أرجاء المنزل.
شكل #الفناء_الداخلي مساحة معيشة إضافية تشعر بالإتساع، أمدت البيت بالإنارة والتهوية الطبيعية، وضمن التواصل البصري بين أجنحة النوم و #الفناء_الداخلي وصالة الجلوس والمطبخ ومنطقة الدرج.
الصالون الرئيسي والمطبخ:
وإطلالة على #الفناء.
وإطلالة على #الفناء.
المخطط والمناظير:
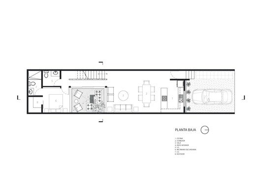
#الدور_الأرضي:
المطبخ، غرفة الطعام والصالون، #الفناء_الداخلي، منطقة الدرج وحمام.
جناح نوم به حمام خاص وغرفة ملابس.
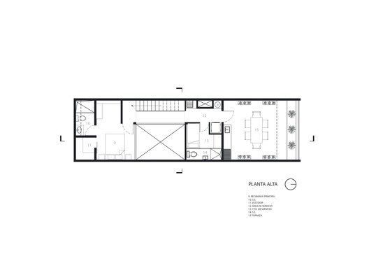
#الدور_العلوي:
غرفتين نوم، حمامين، تيراس، مطبخ تحضير ومنطقة غسيل
#الدور_الأرضي:
المطبخ، غرفة الطعام والصالون، #الفناء_الداخلي، منطقة الدرج وحمام.
جناح نوم به حمام خاص وغرفة ملابس.
#الدور_العلوي:
غرفتين نوم، حمامين، تيراس، مطبخ تحضير ومنطقة غسيل
جاري تحميل الاقتراحات...