م.عبدالرحمن التركي
م.عبدالرحمن التركي

@ArchPlaces

9 تغريدة 50 قراءة Feb 19, 2021
اهلا وسهلا بكم ,,,
حديثنا اليوم عن منزل من أعمالنا في هذا المنزل
1/لا يوجد دخول لأشعة الشمس الحارقة لصالة المنزل
2/لا يوجد أي اتصال بين الضيوف وأهل المنزل إطلاقاً
3/المساحات أعطت أهل المنزل الأحقية
4/الماستر بتصميم فندقي
والأهم أن تكلفة المنزل لن تتجاوز ميزانية العميل,,,
بداية من الواجهات لاحظ يا عزيزي أن المبنى بالكامل من الدهان وأن الجمالية تأصلت بالتكوين الكتلي الذي يفرض حضوره بالمكان,,,
وعلى سبيل التجديد فإنه قفط بتغيير لون الكتلة الغامقة فإن المنزل يتجدد بالكامل ,,,
نوافذ طولية لغرف النوم لرفع الخصوصية
وما بين الليل والنهار لوحة تتجدد,,,
ولاحظ يا عزيزي أن الجمال لا يقتصر على الواجهة الرئيسية وإنما على جميع الواجهات التي يراها أهل المنزل فلها أهمية أعلى من جميع الواجهات ,,,
عندما تحسن ما تراه فإنه يتحسن مزاجك في كل مرة يقع ناظريك عليها ,,,
الجمال الغير مكلف أفضل أنواع الجمال ,,,
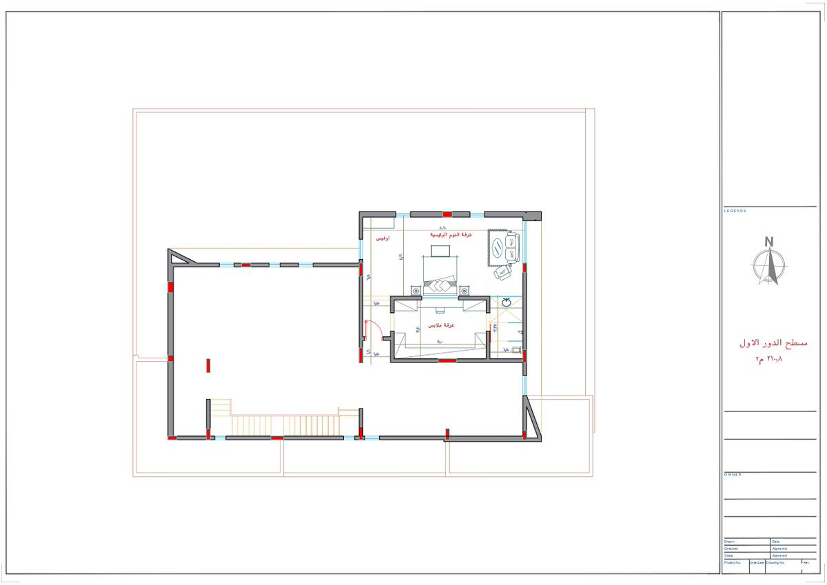
وهنا الأهم مخطط الدور الأرضي
(لحقوق العيمل فإنه تم تغطية بعض الأجزاء من المخطط)
لاحظ يا عزيزي أن الصالة تمتد بناظريك من حدود الملكية الجنوبية وحتى الشمالية بتسلسل رائع
الجلسة
فطاولة الطعام
ثم المسبح
وخلفها جميعاً الاشجار ,,,
عندما يتحول ما تراه إلى رواية تروى ,,,
ولاحظ أن مدخل الضيوف لا يتعور صالة المنزل ولا الفناء ولا المداخل وأنه معزول تماماً دون أدنى تأثير ,,,
ودورة المياه الخاصة بالعائلة بأقصى الجنوب وبأقرب النقاط ,,,
هذه التفاصيل هي ما يصنع لك تجربة مميزة تحسن تجربتك في منزل ,,,
الجمال يكمن في التفاصيل ,,,
وهنا تصميم الماستر ,,,
مدخل لا يتعور سرير النوم والمنطقة الخاصة
وغرفة ملابس تتصل مع السرير برؤية رائعة
وبآخرها دورة مياه خاصة
ولاحظ أن سرير النوم يقع في قلب هذه الغرفة بخصوصيته حضوره وتفرده
الماستر تتعامل معها 8 ساعات كل يوم فإذا ما كانت رائعة فإنها تصنع لك تجربة مختلفة ,,,
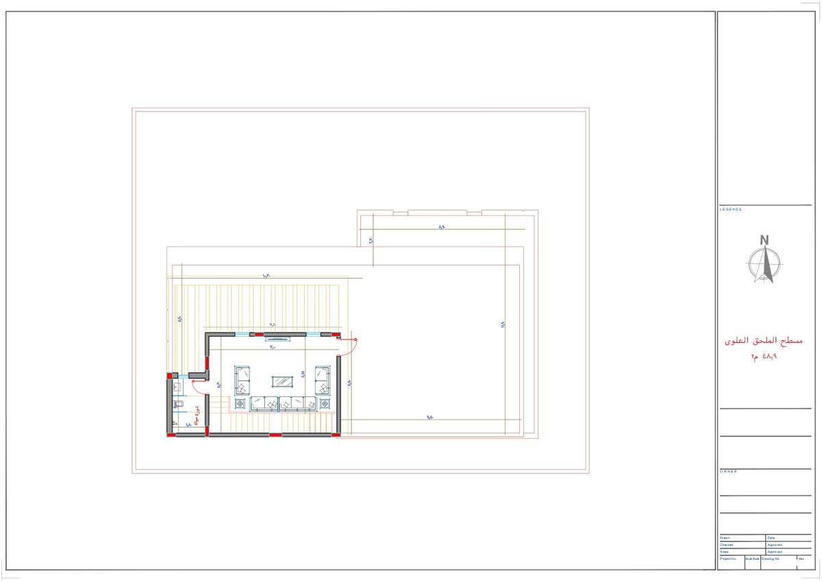
وهنا الموقع العام والملحق العلوي ,,,
وختاماً صور متفرقة للمشروع ,,,
دمتم بود🌹

جاري تحميل الاقتراحات...