م.عبدالرحمن التركي
م.عبدالرحمن التركي

@ArchPlaces

8 تغريدة 35 قراءة Jan 30, 2021
اهلا وسهلا بكم ,,,
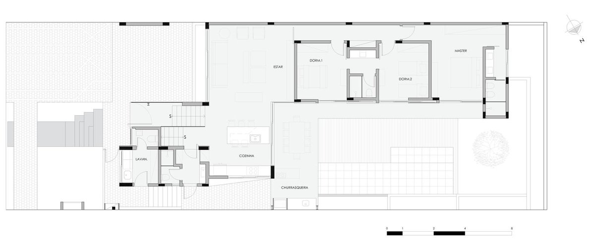
حديثنا اليوم عن منزل في البرازيل , بجناح نوم رئيسي وغرفتين وإجمالي مسطح لا يتجاوز 229 م2 !!
والأهم أنه بدور أرضي فقط مع منطقة جلوس في الميزانين!
مع مراعاة التطوير وزيادة الفراغات في هذا المنزل عند الحاجة,,,
يمكن للمنزل ان يتكيف مع احتياجاتك خلال السنوات,,,
بتشكيل واجهة بسيطة وغير مكلفة وإضاءة مدروسة وخصوصية عن الخارج ,,,
لاحظ ان طريق السيارة بنفس مادة الرصيف
الإضاءة بعدد قليل لتبرز الكتل و الواجهة
الأشجار تناغمت مع التكوين الكتلي,,,
أما التكوين الكتلي فهو ديناميكي لاحظ وجود البروزات والتكسيرات البسيطة والمؤثرة ,,,
اما هنا فترى مدخل المنزل وموقف السيارة باتصال مباشر وعلاقة صريحة وبسيطة دون تكلف , وبعدها ترى ارتفاع مستوى المنزل عن موقف السيارة ليؤكد الفصل بين المنطقتين ,,,
العمارة ليست بناء الحوائط بل بناء ما بين الحوائط ,,,
وهنا صالة المعيشة والطعام والمطبخ , كلها مفتوحة على بعضها لتمتد بناظريك ومنها إلى الفناء الخلفي المميز بالمسطح المائي
لماذا يعتبر المطبخ منطقة يجب فصلها عن المنزل؟!
لماذا لا يكون نشاطاً رائعاً وتجربة لجميع أفراد العائلة ,,,
يجب علينا مراجعة بعض النقاط لتحسين تجربة معيشتنا ,,,
وهنا الفناء الخلفي بخصوصية المطلقة وبساطة بجماليته العالية , كل ما تراه غير مكلف إطلاقاً ولكنه مصمم ومدروس
خشب معالج , مسبح , وشئ من التشجير !!
يمكنك أن تمتلك الجمال دون أن تتكلف في تنفيذه ,,,
المعماري المميز يحول التحديات إلى إيجابيات ,,,
وهنا الممر المؤدي إلى غرف المنزل لاحظ خصوصيته , بساطته , وجماليته والسكاي لايت من فوقه ,
الجودة تكمن في التفاصيل ,,,
وهنا مخطط المنزل وبعض الرسومات المعمارية ,,,
وختاماً نشارككم صور متفرقة للمشروع ,,,
دمتم بود🌹

جاري تحميل الاقتراحات...