م.عبدالرحمن التركي
م.عبدالرحمن التركي

@ArchPlaces

7 تغريدة 38 قراءة Dec 28, 2020
اهلا وسهلا بكم ,,,
حديثنا اليوم عن المنزل الذي اخترته , منزل لطيف في اندونيسيا يظهر في واجهة هذا المنزل العنصر الأقل أهمية والوظيفي البحت "الدرج" بشكل مختلف تماماً بمفاهم متفردة ومتميزة عن باقي المنازل
إذا ما كان العميل والمعماري على وفاق فإن النتائج مبهرة ومبهرة جداً ,,,
هنا انقلبت المفاهيم , وتطورت الأساليب وانكسرت كل القيود,,,
لم يكن المعماري بحاجة لجعل الدرج في واجهة المنزل إلا ليثبت أن التميز ليس شئ يتكرر في جميع المنازل بل هو فكر معماري وقبول مالك ,,,
النتائج النهائية المميزة تبدأ من المعماري وتستمر بقبول المالك وتنتهي بتنفيذ المقاول ,,,
وأما عن الواجهة ليلاً فتراها أكثر جمالاً وبريقاً دون كثافة إضاءة ولا زيادة في مواد التشطيب فهذا المنزل أغلبه من الزجاج لقدرة المالك المالية , ولأن داخله اكثر جمالاً من ظاهره ,,,
وهنا ما يستحق أن يطلق عليه فناء منزل داخلي , لا تكاد تشعر انك في داخل فراغ أو خارجه ,,,
الميزانية تزيد من جمالية التجربة ولكنها بكل تأكيد لا تمنعها إن كانت محدودة ,,,
المعماري المتميز يستثمر أموالك لتخرج بأجمل التصاميم وفق ميزانيتك ,,,
وهنا فراغات المعيشة , لا تدري أهي فراغات داخلية أم فراغات خارجية ,,,
لاحظ وجود الدرج خلف الجلسة وطاولة الطعام وكيف أصبح عنصراً مميزاً ,,,
وانظر إلى الإمتداد البصري لغرفة النوم وقارنها بصالة منزلك !!
لا يوجد في هذا المنزل أي فراغ متوسط أو ضيق , بإستثناء دوراة المياه 😅
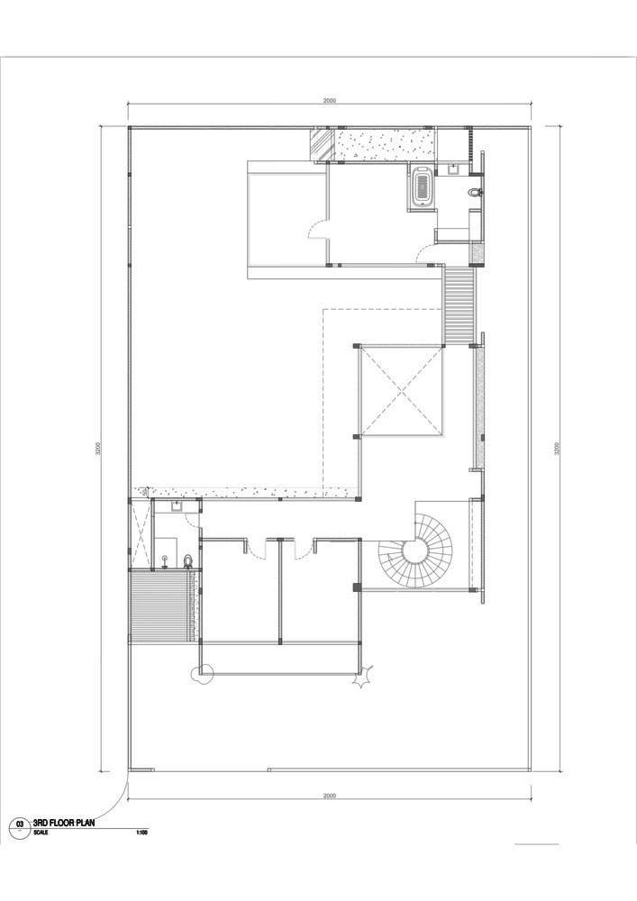
وهنا نشارككم مخططات المنزل و الواجهات ,,,
وختاماً نشارككم صور متفرقة للمشروع ,,,
دمتم بود 🌹

جاري تحميل الاقتراحات...