آدم | تصميم داخلي
آدم | تصميم داخلي

@ad6m

10 تغريدة 534 قراءة Dec 25, 2020
دورات المياه من المساحات المعيشية التي لا تقل أهمية عن باقي الفراغات لذلك حدد النمط المعيشي الذي ترغب فيه اثناء التخطيط المعماري وفقاً لذوقك واحتياجاتك ومساحة أرضك ووضعك المادي ..
تحت هذه التغريدة بعض النماذج 🔻
١
- دورات المياه التي تحتوي على كرسي ومغسلة فقط وبالعادة تكون للضيوف
- حدد مع المعماري عدد المغاسل واذا كانت المغسلة خارجية او داخلية او الاثنين معاً
- حدد نوع المرحاض، كرسي أو أرضي، أو الإثنين معاً
- اذا ترغب في منطقة استحمام للضيوف فتتعمامل معه معاملة دورة مياه الأولاد
٢
دورات مياه الأبناء
- حدد احتياجات الأبناء أولاً، مغسله وكرسي واستحمام وبانيو، أو بدون بانيو
- اذا كان مع بانيو، هل الاستحمام داخل البانيو او منفصل عنه؟
- هل المغاسل داخل الحمام او بالخارج؟ أو الاثنين معاً؟
٣
دورة المياه الرئيسية
- حدد احتياجاتك أولاً وعدد القطع الصحية
- اسمح للمعماري بتوزيع الحمام وفقاً لاحتياجاتك وبالمقاسات الصحيحة
- تحديد النمط المعيشي من البداية يساهم في الوصول لحل معماري مناسب لك
يتبع.....
دورة المياه الرئيسية الفاخرة
- مناسبة للمنازل الكبيرة والمساحات المفتوحة وتكلفتها المادية عالية
- تحتوي على أكثر من مغسلة وجاكوزي ومناطق استحمام منفصلة وكرسي
- وتحتوي احياناً على تلفزيون وتسريحة وتكون مرتبطة بغرف ملابس كبيره
دورة المياه الرئيسية الحديثة
- البانيو والمغسلة أقرب لغرفة النوم ومنفصلة عن الكرسي والاستحمام
- الكرسي والاستحمام منفصلين بقواطع واحياناً وأبواب
دورة المياه الرئيسية التقليدية
- ويمكن التعامل معها مثل دورات مياه الأبناء او بطريقة تناسب الأزواج
- يمكن الفصل بين القطع الصحية بقواطع زجاجية وخلافه
- مناسبة للمساحات المحدودة
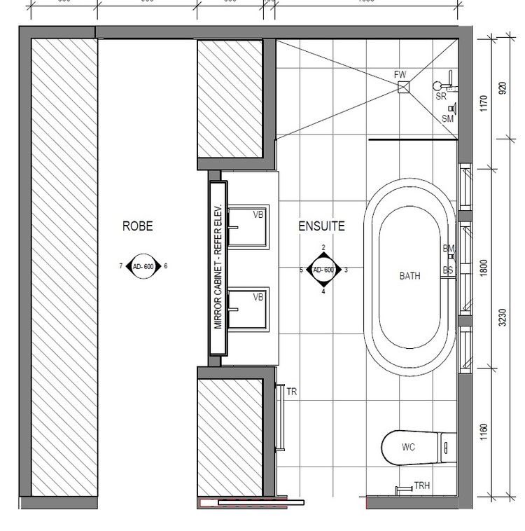
مخططات متنوعة لدورات مياه قد تتناسب مع احتياجاتك
مخططات متنوعة لدورات مياه قد تتناسب مع احتياجاتك

جاري تحميل الاقتراحات...