م.عبدالرحمن التركي
م.عبدالرحمن التركي

@ArchPlaces

11 تغريدة 35 قراءة Nov 09, 2020
اهلا بكم ,,,
كنت محتاراً في هذا اليوم عن الحديث عن منزل رائع في اليابان أو اندونيسيا ,,
ولكن الجمال والبساطة والمساحة الإقتصادية في مثال اندويسيا جعله هو حديثنا ,,,
كل ما ستراه يقع في مسطح بناء 400 متر مربع !!! ليست الأرض إنما مسطحات البناء بالكامل !!!!!!!!!!!!!
نتحدث بشكل مختصر عن واجهة المنزل فتراها بسيطة تحاكي المنازل التراثية في اندونيسيا فهي بسقف مائل ليساعد في تصريف مياه الأمطار ,
أضف إلى وجود عناصر من الواجهات الحديثة فترى القواطع الخشبية المتحركة
وما بين النهار والمساء يظهر عظيم خلق الله ,
ومن هنا تبدأ المتعة الحقيقية , لا شئ مكلف ولا شئ اعتيادي بل توجد تجربة مختلفة مميزة وفريدة ,,,
سيكون هذا الشرح مختلف قليلاً , سنركز في التفاصيل أكثر ,,,
سنقوم بشرح كل صورة لوحدها نبين تفاصيلها وجماليتها و كل ما يمكن الإستفادة منه ,,,
هذه اللقطة من مطبخ المنزل !
1/السقف لا يوجد فيه أي تجويف إلا للإضاءة
2/الأرضية باركية
3/الحوائط لا تخرج عن دهان أو تكسية خشبية
فقط !!
لا شئ لا يوجد في أسواقنا أو منازلنا ولكن النتيجة مختلفة لأنه مصممة ومدروسة
أما الأثاث والإضاءة فهي حكاية لا يقرأها إلا العين والعين فقط
تساولنا الأهم
هل ترى أي تجويف السقف الجبسي؟
بل هل كنت ستلاحظ السقف لولا سؤالنا؟
المهم في التصميم هي النتيجة النهائية وتجانسها وتناسقها,,,
هذه الصالة رائعة بارتفاعها المضاعف و الإضاءة المدروسة , ودراسة دخول اشعة الشمس وتصوّر النتيجة لاحظ أن تشطيبها بالكامل من الدهان !!!
انظر هنا إلى ترتيب الفراغات وعلاقتها ببعضها , كل هذا تترجم من مخطط مدروس ومصمم معماري مميز وليس منسوخ أو مقتبس!
اندونيسيا استوائية ورغم ذلك لم يتجاهل المعماري التشجير وأهميته وسط المنزل وحول منطقة المعيشة وأنت تنظر إلى التأثير بعينك فكيف تتصور الإحساس لو كنت تعيش في الفراغ !!!
اما هنا فتظهر لك علاقة الدرج والممرات في الدور العلوي وتحقيقه للوظيفة مع جمالية عالية وتكلفة تنفيذ منخفضة جداً
لا يوجد شئ من مواد التشطيب الموجودة في الصور ليست في أسواقنا أو أغلب منازلنا
ولكن
ولكن
ولكن
النتائج فااااااااارقة جداً !!!
استثمر في التصميم تستمع بالنتائج ,,,
أما غرف النوم ودورات المياه فهي بتصميم فندقي وتشطيب مريح للعين وتكلفة منخفضة
هل تشعر بإنارة زائدة عن الحاجة ؟
هل يوجد مساحة مهدرة ؟
هل ترى مواد تشطيب ليست في أسواقنا ؟
الإستثمار أهم من صرف المال !!
هنا توجد بلكونة خارجية رائعة , تحقق التهوئة والضوء والخصوصية لا يوجد في هذه البلكونة أي خطأ !
شاركونا برأيكم عنها ,,,
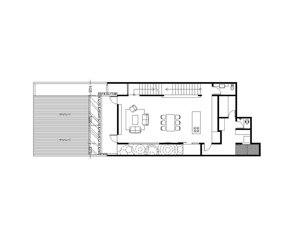
وهنا الأهم مخططات المنزل كااااااااملة , بساطة وجمال و وظيفة
وختاماً بعض الصور المتفرقة للمشروع والرسومات المعمارية ,,,
دمتم بود 🌹

جاري تحميل الاقتراحات...