م.عبدالرحمن التركي
م.عبدالرحمن التركي

@ArchPlaces

12 تغريدة 150 قراءة Nov 05, 2020
ومرة أخرى نرحب بكم ,,,
نعود إلى المكسيك حيث جمال المباني واقتصادية التكلفة والمواد والمستوى الرفيع للذائقة ,,,
كل ما ستراها يقع في إجمالي مسطج بناء 370 متر مربع فقط !!!
لا تقل جمالية الواجهة الأمامية عن الخلفية إصلااقاً كما سيطر عليها الدهان فقط !!
تكسية من الحجر للدور الأرضي ولمسة من الخشب صنعت للدهان مكان ,,,
لاحظ كيف أصبح الظل في الجزء الأيمن جزءاً من تكوين الواجهة الأمامية
متع ناظريك ,,,
لا شئ لا نستطيع تنفيذه !
المواد
والمال
والأشجار
كلها ممكنة , تحتاج إلى من يرغب بهذا الجمال .
وهنا تتجلى علاقة الفراغات الداخلية مع الخارجية بأبسط صورها , لم يكن ليكون لصالة الجلوس في هذا المنزل هذا الإمتداد البصري بدون دراسة وادراك للمفاهيم المعمارية والبصرية ,,,
وكل هذا كان في مرحلة التصميم ومرحلة التصميم فقط !!
وهنا مطبخ المنزل ,
وكأنما يطل على استحياء للمنزل ,
غير مباشر وليس بمفصول , لم يأخذ مساحة أكثر مما يكفية , ولا أقل مما يحتاج ,,,
أما عن تشطيب المنزل فإن البساطة والجمال الخارجي تسلسل إلى داخل هذا المنزل واستمر ,
انظر إلى الإمتداد البصري في الممر الرئيسي في المنزل وكيف أعطاء إحساساً بإتساع مطلق !
وهنا غرفة النوم الرئيسية و الصالة العلوية ودورة المياه الرئيسية,,,
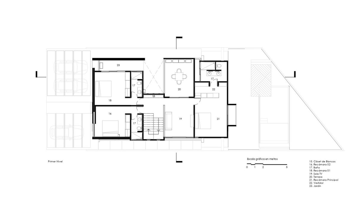
وهنا مخططات المنزل البسيطة والرائعة ,,,
وختاماً صور متفرقة من المشروع و الدراسات المعمارية ,,,
دمتم بود🌹

جاري تحميل الاقتراحات...