م.عبدالرحمن التركي
م.عبدالرحمن التركي

@ArchPlaces

13 تغريدة 63 قراءة Nov 02, 2020
اهلا وسهلا بكم ,,,
حديثنا اليوم عن منزل لطيف ورائع في اسبانيا , اجمالي مسطحات البناء 590 متر مربع "يوجد قبو"
هذا المنزل لا يحتاج إلى عمالة ماهرة لبساطة تشطيباته النهائية رغم جمالها ,,,
إن قمت بتصميم ما لا يمكن تنفيذه فأنت في الحقيقة ترسم !
إن الجلسة الخارجية والمسبح هي أهم ما يميز هذا المنزل ولذلك أصبحت هي النقطة الأهم بصرياً والتي تتجه إليها جميع فراغات المنزل ,,,
لو كنت في حجر منزلي لن تشعر بالضيق فكل الفضاء من حولك هو حيزك لن تعيقك الحوائط ولن تحاصرك النوافذ
إضاءة واحدة مدروسة تغني عن 10 غير مدروسة ,,,
لاحظ يا عزيزي أن الاتساع البصري شئ لا يقدر بثمن ,,,
هذه اللقطة تبين اتصال صالة الجلوس الرئيسية مع الفناء الخارجي وتبين توظيف البروز في حجز اشعة الشمس,,,
وهو نتيجة دراسة تصميمية وليس صدفة ,,,
وهنا اتسائل عن لو قلت لك أن هذه اللقطة في مدينة الرياض فهل ستصدق ذلك أم لا ؟؟؟
وهنا أتسائل ماهو السبب الحقيقي الذي جعل منازلنا تحرم من مثل هذه النتائج ؟!
لو كانت جميع المطابخ بهذه الإطلالة فلا أعتقد أن النساء سوف تخرج منه , ولربما نستغني عن المطاعم 😅
ولن تحتاج إلى منطقة شواء خارجية إن أردت أن تشوي في الأيام المعتدلة .
وهنا يمكن ان تلاحظ كيف تعزل المنزل عن الفناء ,
وهنا بقية التكوين الكتلي للمنزل من للواجهات الباقية , لاحظ بساطتها وجمالها وتوظيفها في جعل النوافذ مظللة عن اشعة الشمس ,,,
وهذه هي واجهة المنزل الخلفية , قارنها بما تراه من واجهات رئيسية للمباني المجاورة لك , أو حتى واجهة منزل !!!
كيف تستثمر مالك أهم بكثير من صرفه فقط !
وهنا صالة الجلوس الرئيسية بأرتفاع مضاعف , اهمية الأرتفاع في تكوين احساس منفرد عن بقية فراغات المنزل ,,,
وهنا الدرج بساطة وتميز وجمال
مكان النساء المفضل "المطبخ" هو أجمل فراغات المنزل 😉
تصميم غرف النوم وعلاقتها بالبلكونات مع خصوصية أعطى لها بيئة خاصة ورائعة
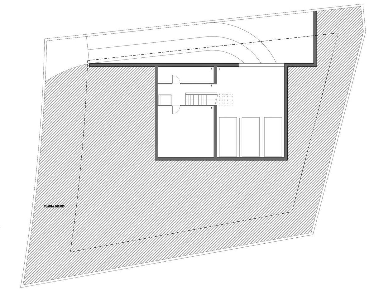
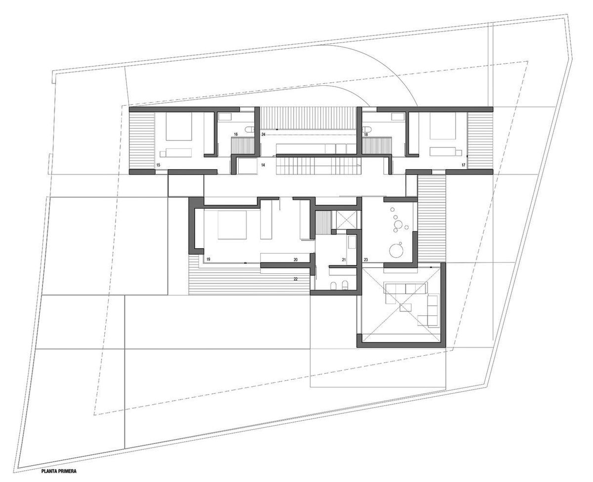
وهنا مخططات المنزل كاملة ,,,
وختاما نشارككم صور متفرقة للمشروع ,
دمتم بود 🌹

جاري تحميل الاقتراحات...