ALBARAA MOHAMMED
ALBARAA MOHAMMED

@ideadesign2030

16 تغريدة 106 قراءة Feb 18, 2023
#ثريد_علمي_بصر_تاريخي
#الجامع_الكبير
ويسمى جامع الإمام تركي بن عبد الله يقع في منطقة قصر الحكم وسط مدينة الرياض, وقد أنشئ في عهد الإمام تركي بن عبد الله، ويعد الجامع من أكبر المساجد في مدينة الرياض وأهمها وقد مر بتوسعات عديدة ومنها الأهم وهو ماسوف نرصده من صور وابداع من خلال
بني الجامع في أرض تسمى النقعة تقع وسط الرياض، حيث أمر الإمام تركي بن عبد الله بن محمد آل سعود بإنشاء جامع سمي فيما بعد باسمه وعين عليه الشيخ عبد الرحمن بن حسن آل الشيخ الذي عينه مشرفا ورئيسا للعلماء، كما طلب منه أن يعيد المدرسة القديمة لدراسة العلوم والفنون الشائعة آنذاك،
وقد أخذ في الاعتبار قربه من عدة أحياء بالإضافة إلى قربه من قصر الحكم وجعله مؤسسة علمية على غرار ما كان في الدولة السعودية الأولى، وقد كانت عادة الإمام تركي عندما يصلي الجمعة في الجامع الكبير أن يخرج من الباب الذي يقع جنوب المحراب، وأعد هذا الباب في قبلة المسجد لدخوله
وخروجه ولدخول الإمام عن تخطي رقاب الناس لكثرة ما في المسجد الجامع من الصفوف، وهذه الإضافات تمت خلال مدة حكمه قبل عام 1241 هـ إلى عام 1249 هـ الموافق (1826 - 1834) .
وفي العام 1986 ميلادي تم الانتهاء من أعمال التصميم المعماري لإعادة وتوسعة "الجامع الكبير"
المعماري : راسم بدران
الجامع الكبير بمدينة الرياض السعودية من المشاريع المتميزة بالطبع
تم اعتماد المساحات الأولية وتوسعة الخطوط والادراك التراثي للمنطقة من حيث الهوية والتقارب والأقواس والاعمدة والاضاءة الطبيعية والصناعية.. وكان إخراج المشروع بمناظير ثلاثيه الأبعاد رسم يدوي واظهارها وتنفيذها بأدق التفاصيل
نلاحظ كيفيه إظهار المقاطع المعمارية والمشربيات والفراغات الداخليه بفن وابداع معماري يدوي.. جميع ذلك كانت تراه العين منذ سنين لكن مع المعرفة والتخصص في مجال العمارة عند الاطلاع على ماهية وحقيقة المشروع و الاظهار اليدوي تجد جذور فن العمارة النجدية العربية
دراسة حالات ابتكار عناصر حديثة كانت تخص هذا الجامع من تفاصيل في الضوء والكتل والمزج والطبيعة..
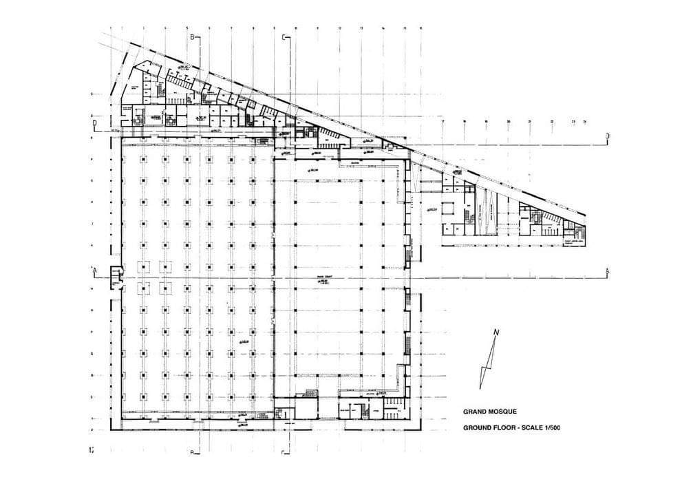
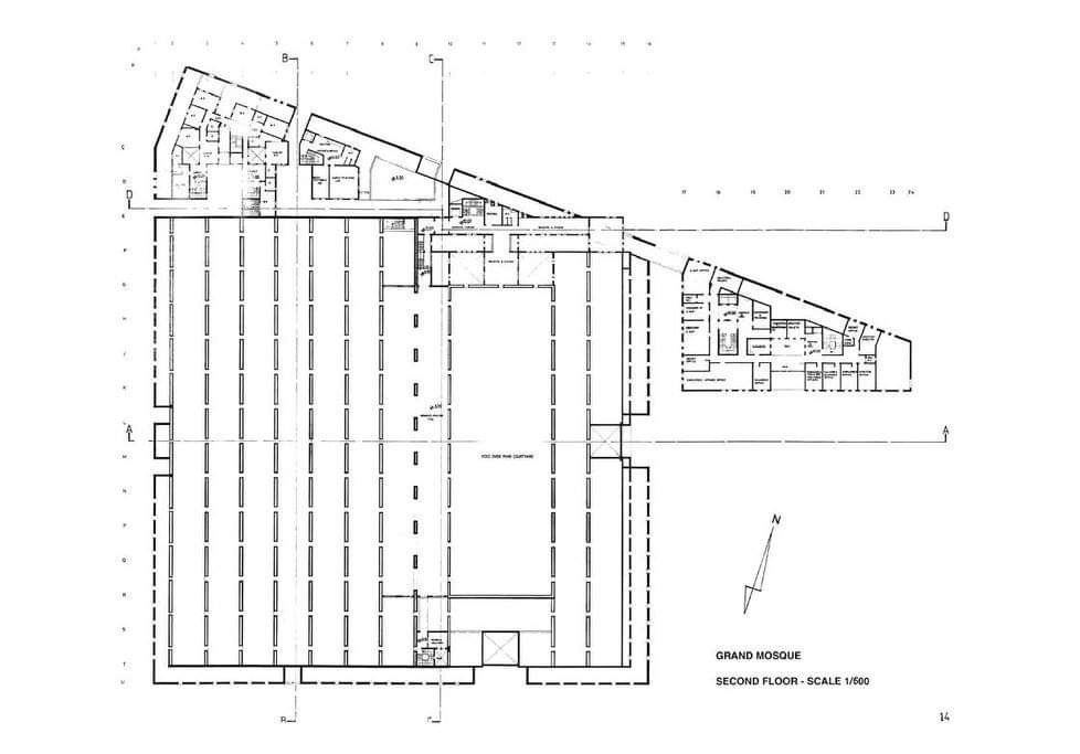
وتبلغ مساحة الموقع (17000) متر مربع وبلغ تكلفته حوالي (53) مليون دولار امريكي ويسع الجامع (10000) مصلي بالاضافة الى (2000) من السيدات ويضم الجامع مدرسة ومكتبة وادارات حكومية فرعية وغرفة للامام.
وايضا كانت ساحة الجامع لتطبيق الأحكام من قصاص ونحوها
استوحي هذا الصرح من البيئة المحيطة له وتأثيرها على المعماري وعلى إبداعه من حيث طبيعتها وجودتها والكتل المحيطة بها... فكيف اللون كان واحد والمادة واحد لكن الأسلوب كان ذو طابع حديث يجعل من هذا الإرث ذو رؤية مستقبليه في الفن والابداع والتراث
الأسلوب الميكانيكي في تلبيس الحجر... والعاشق والمعشوق في الخشب.. والمشربيات في المداخل َالنوافذ.. وتطعيم التفاصيل بالنحاسيات والزجاج... جميعها أدوات فنيه عربيه ومنظومة ذات طابع وروح سماوي يجعل العلاقة بين المتلقي والسماء قريبه من حيث الإيمانيات والراحة والبساطة
تجد هذا الصرح متكامل علمي ثقافي تجاري ديني... نعم هو حقاَ حقق وظيفة المسجد من حيث التواصل بين المجمتع المحيط والجامع من مدارس وعلوم وثقافة وتجارة.. هنا نستطيع القول بأنه حقق ذاته بالاسم والوصف.. #الجامع_الكبير
أيضا التكامل المعماري والانشائي في هذا #الجامع_الكبير من حيث النسبة والتناسب والسيادة والارتكاز والمحور المركزي لهذا الموقع العملاق.. من مسارات الحركة أو مطلات تطل على تاريخ وارث يحكي عبق الأجداد والانتصارات والعلوم والمعرفة..المزيد من الفنون المعمارية العربية
#الجامع_الكبير هو حكاية منذ الطفولة وهو احد المسببات التي جعلتني اعشق العماره النجدية بمثلها الحاد ذو الضوء البسيط.. ولونها الطبيعي كتربتها... هنا أيقنت بعد سنين انها هذا الفن حقق مايريد من أرض الواقع والتاريخ..
تم الانتهاء من أعمال البناء في عام ١٩٩١ ميلادي
@rattibha بعد اذنك اخي الفاضل

جاري تحميل الاقتراحات...