نفـال للتكييف
نفـال للتكييف

@NEFALAC

11 تغريدة 114 قراءة Nov 17, 2020
✨| #ثريد عن #التكييف_المخفي "Concealed"🤔؟؟
1⃣ هو من أنظمة التكييف الاسبليت (Split) او المنفصلة يتكون من وحدة خارجية (Outdoor) ووحدة داخلية (Indoor) وتوضع مخفية بالأسقف المستعارة ويتم ربطها بالمكان المراد تكييفه عن طريق مجاري الهواء #الدكت (Duct).
2⃣ | يعتبر من الأنظمة العملية والاشهر بالمملكة والأكثر طلباً واقبالاً من العملاء في الآونة الأخيرة.
إخفاء الوحدة الداخلية بالسقف المستعار يعطي مساحة لظهور شكل الديكورات بالأسقف الجبسية دون تشويه او فواصل من الممكن ان تسببها الوحدة الداخلية "التقليدية" المعلقة على الجدار.
3⃣ | سهولة التحكم في مخارج الهواء "الجريلات" (Grill) بحسب اللون او الشكل مثل الجريلات "الجانبية" التي من الممكن أيضا اخفاؤها بالديكور ويبقي فقط الشعور بالهواء البارد ❄️ في المكان دون معرفة مصدرة او سماع أي ضوضاء.
4⃣ | مراحل تركيب #التكييف_المخفي !!
نظرا لارتباط اعمال #التكييف بمختلف مراحل البناء 🧱🛠️بداية من بناء الجدران ونهاية بالدهانات فيجب التنسيق في كل مرحلة من مراحل البناء مع مهندس الديكور 👨‍🔧او المشرف المسؤول عن تلك المرحلة.
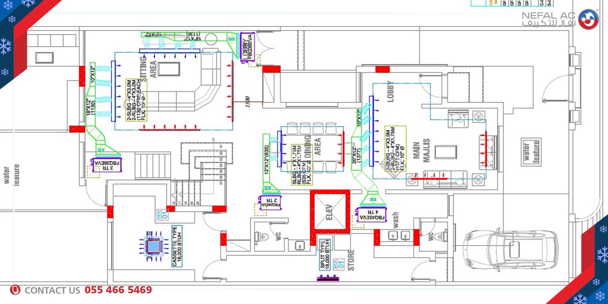
5⃣ | يقوم قسم الدراسات في نفال بالعمل على تصميم المخططات التنفيذية للتكييف التي توضح أماكن الوحدات الداخلية ومسار مجاري الهواء (Duct) ومخارج الهواء (Grill) وأماكن زراعة مواسير النحاس واماكن الوحدات الخارجية على المخطط ومن ثم يتم ارسالها للعميل للاطلاع عليها واعتمادها للتأسيسات.
6⃣ | وبعد اعتماد المخطط للتأسيس يتم عمل المراحل التالية طبقا لجاهزية الموقع:
1- زراعة المواسير التي يمر بها النحاس أثناء مراحل البناء لكل دور على حده وقبل صبات الأسقف أو الجدران الاستنادية بداية من القبو ان وجد.
2- تأسيس مواسير صرف مياه المكيفات لأقرب نقطة صرف.
7⃣ | 3- تأسيس اسلاك الثرموستات.
4- تعليم الفتحات بالجدران للدكت وتمديد النحاس قبل أعمال اليآسة وبعد الانتهاء من التأسيسيات الكهربائية.
يقوم قسم الدراسات بمطابقة المخططات التنفيذية مع مخططات الاسقف الجبسية والمرسلة من مهندس الديكور وبعد الاتطلاع يتم اعادتها للمالك للاعتماد النهائي
8⃣ | وبعد اعتماد المخطط بالشكل النهائي يتم عمل المراحل التالية طبقا لجاهزية الموقع ورغبة العميل:
1-تركيب الوحدات الداخلية وتوصيلها بمواسير صرف المياه وأسلاك الثرموستات وتوصيل النحاس.
9⃣ | 2-تفصيل مجاري الهواء (Duct) وصناديق مخارج الهواء (Plenum Box) بالمصنع الخاص بنفال ثم توريدها وعزلها بالموقع وتركيبها شاملة الوصلات المرنة (Flexible) وجميع الدنابر (Dumber) وكل ذلك طبقا للمواصفات العالمية (SMACNA)
1⃣0⃣ | 3-تركيب الوحدات الخارجية بالأسطح حسب الأماكن المتفق عليها سابقا مع العميل وغالبا ما تكون بالسطح العلوي الأخير ويتم تركيبها بعد الانتهاء من عملية تبليط وعزل السطح 👌
1⃣1⃣ | 4-وآخراً تركيب مخارج الهواء (Grill) ويكون التركيب بعد الوجه الأول من الدهان.
5-ثم تركيب الثرموستات والتأكد من التوصيلات الكهربائية.
6-واخيراً التشغيل المبدئي لمدة 72 ساعة للتأكد من فاعلية وكفاءة التكييف.👌👍
#نفال_للتكييف
#خبراء_التكييف
#HVAC
bit.ly 👈

جاري تحميل الاقتراحات...