م.عبدالرحمن التركي
م.عبدالرحمن التركي

@ArchPlaces

9 تغريدة 17 قراءة Sep 10, 2020
اهلا ومرحبا بكم ,
حديثنا اليوم عن منزل في تايلند , مساحة الأرض 490 متر مربع
الجمال في هذا المنزل أكثر من رائع , منزل موجه لعائلة صغيرة جداً ولا يوجد فيها قسم ضيافة
يمكن ان تستخدم مثل هذه الوحدات للإستثمار في أن تجعل للأجار في المناطق السياحية ,,,
إن التكوين الداخلي يجب أن يكون متصلاً بالخارج , لا أن يفصل عنه أو يعزل , فنحن نعيش في منازل وليست سجون !!
المسطحات المائية , الإضاءة , الإنعكاسات , التدرج اللوني بين الفراغات ليست صدفة فكل شئ مصمم بعناية ,,,
وهنا من وسط المنزل سترى اطلالة رائعة على الحديقة الخاصة بالمنزل
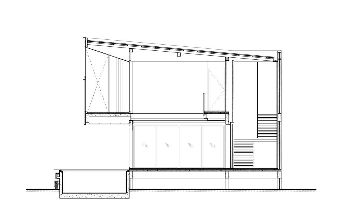
شمس الشروق تبث الروح وسط المنزل , وستبتعد عنها عند الزوال مكان الزجاج قد تمت دراسته فلايوجد منه أي عبء حراري يذكر ,,,
لنخرج قليلاً ونتسائل
هل رأيت برج المملكة ؟
كم تتصور تكلفة تبريد البرج خلال أيام الصيف الحارة؟
وهنا ترى التصميم الداخلي البسيط , لون واحد مع ممر حركة بسيط واتساع بصري غير اعتيادي ...
مساحات المنزل صغيرة جداً ولكنها رائعة ,
الإرتفاع المضاعف لمنطقة الجلوس تعطيك انشراح وترسم أشعة الشمس على حوائطها لوحة فنية ,,,
الجودة والتميز يكمن في التفاصيل ,,,
غرفة نوم هادئة وبسيطة , مختصرة ولا يوجد فيها أي تكلفة ,
الإحساس والذائقة هي ما يتحكم في النتائج وليست الميزانية فقط .
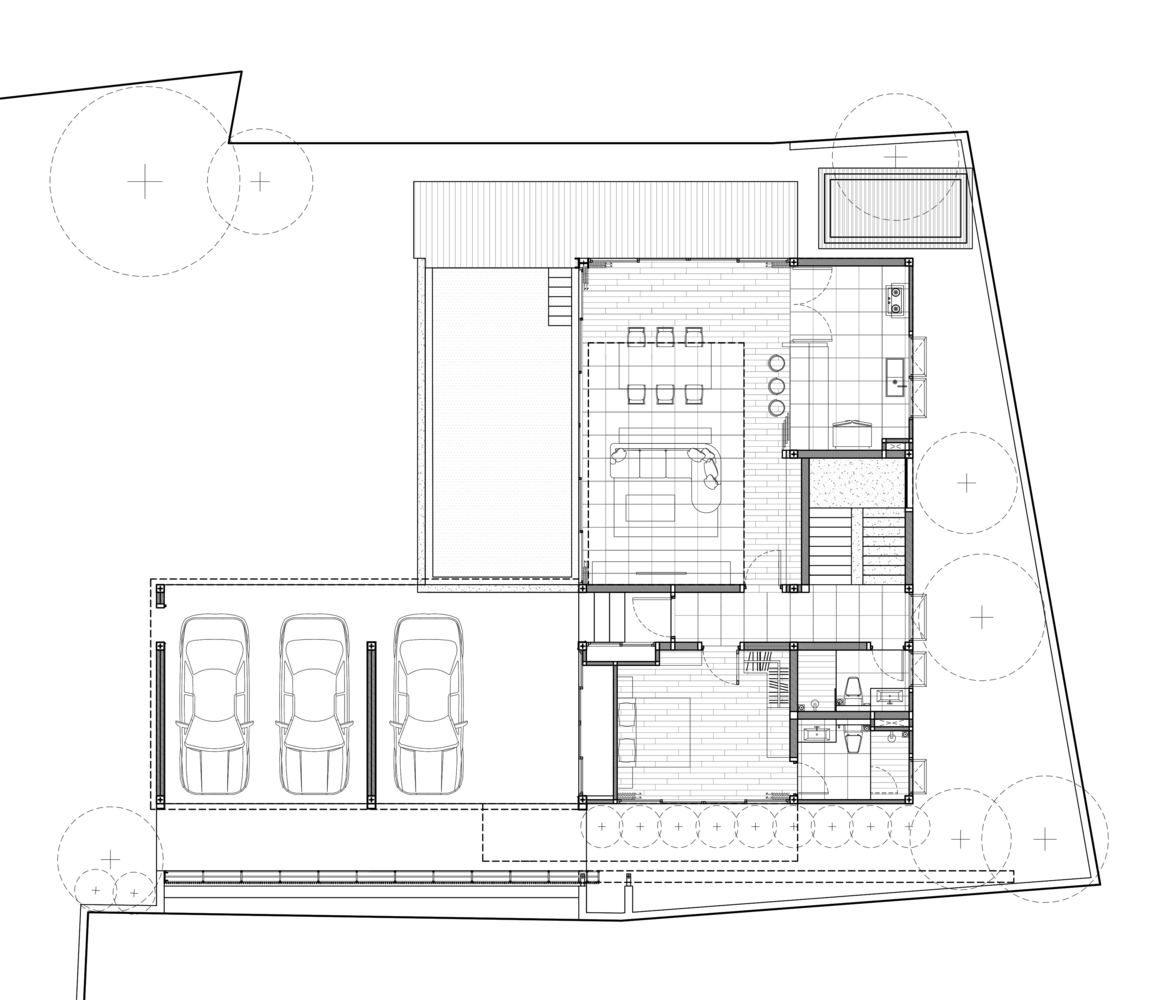
شرح لمكونات المخططات :
الدور الأرضي:
1/موقف لأربع سيارات
2/جناح نوم للضيوف
3/دورة مياه
4/درج
5/قسم المعيشة
6/المطبخ
الدور الأول:
1/جناح نوم رئيسي
2/جناح نوم رئيسي آخر
3/ممر يربط الأجنة (يسار المخطط)
4/جلسة خارجية(كمظلة للمواقف)
وختاماً صور متفرقة للمشروع ,,,
دمتم بود 🌹

جاري تحميل الاقتراحات...