المعماري/ هشام القاسم
المعماري/ هشام القاسم

@ArchHesham

6 تغريدة 26 قراءة Sep 05, 2020
مشروع اسكان في اندونسيا.
على مساحة 800 متر مربع.
بني عام 2018.
في هذه السلسلة تعرف على تفاصيل المشروع.
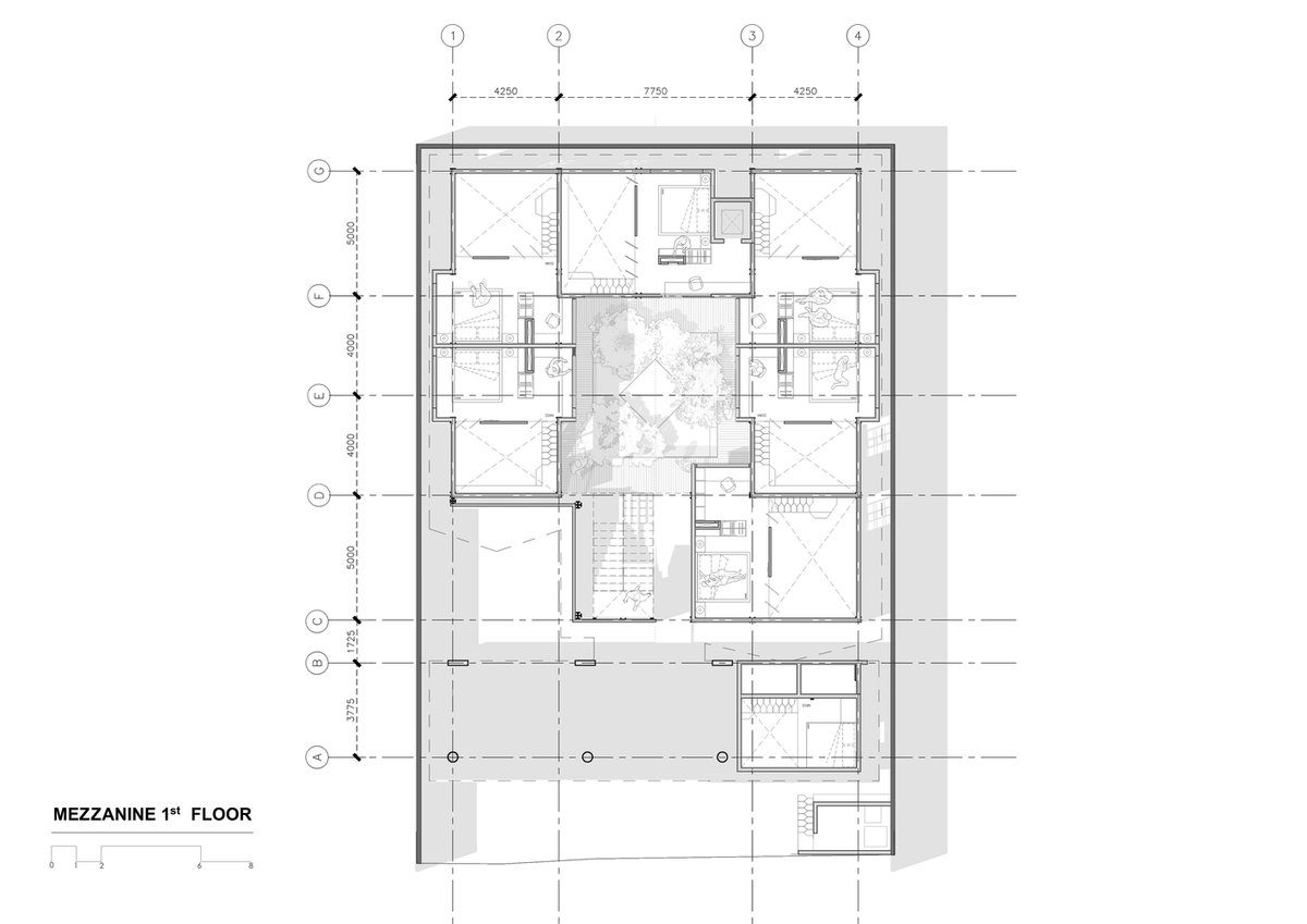
يتكون المنشأ من 12 استديو على مستويين .
والسقف للمالكين.
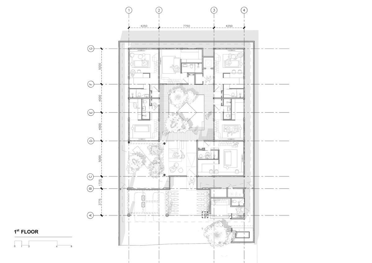
ويوجد في الدور الأرضي ردهة وغرفة إدارة وغرفة صيانة وخدمات.
وتدور الفراغات حول الفناء المركزي الملئ بالأشجار البرازيلية وبركة ماء.
الفكرة التصميمة للفراغات كانت هدفها ادخال طابع الغابات الإستوائية المطيرة.
الهدف من هذا المفهوم هو خلق حيز للتأمل،وسماع صوت الطبيعة (الهواء البارد والمياه والأشجار).
من خلال نوافذ كبيرة في مواجهة الفناء .
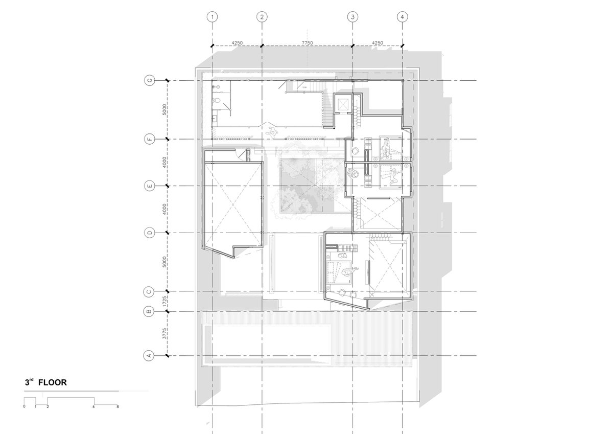
ومسبح في الطابق الثاني.
وحديقة على السطح .
ومزروعات في جميع الأنحاء.
تم استخدام عناصر الطبيعة والأخشاب في البناء والأثاث الداخلي ؛لتعزيز الشعور بالهدوء.
ومعظم المواد المستخدمة في هذا المشروع معاد تدويرها .
ولراحة المستخدمين توجد حديقة أيضا للتمتع بشروق الشمس وإقامة حفلات الشواء.
يالها من حياة فردوسية!!

جاري تحميل الاقتراحات...