عبدالله العطر
عبدالله العطر

@AbdullahAletr

5 تغريدة 2,834 قراءة Sep 03, 2020
١- كيف تخطط وتفتح كوفي شوب ب 150 الف فقط ؟
قائمة المشروبات
تخطيط المكان
المعدات اللازمة
الديكور
التسويق
الموردون
هذه السلسلة هي نتاج تجربة عملية لاربع فروع ، اغلقنا منهم اثنين وتعلمنا في اثنين 😁
٢- لاحظ ان تصميم المحل يبدا من تحديد قائمة المشروبات ..
قهوة اسبريسو
قهوة مختصة
مخفوقات / شيك
سموثيز
عصائر طبيعية
موهيتو
مثلجات
كيك / دونات / كوكيز
هذا نموذج منيو
٣- بعد تحديد المنيو ، راح نتجه الى تحديد المعدات المطلوبة لتحضير كل مجموعة ، وتراعي الجودة ووجود اكثر من عرض سعر وابعاد وتفاصيل كل معدة ..
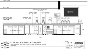
٤- بعد تحديد المعدات نستعين برسام اوتوكاد لرسم منطقة التحضير وكاونتر الكوفي شوب ..
مو شرط تكون مساحة الكوفي شوب كبيرة لاجل يكون ناجح او حلو ..
المنتج والتنسيق وحماس اصحاب المشروع مهم جداااا
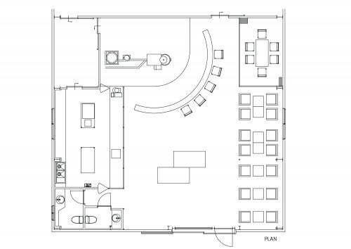
٥- بعد تصميم الكاونتر تتجه لتوزيع باقي مساحة المحل على مناطق جلوس العملاء ..
حاول تكون ذكي واستعين بمتخصص في توزيع يناسب المساحة المتبقية ..
اذا المساحة
- صغيرة فانت drive thru طلبات خارجية
- متوسطة جلوس سريع وطلبات خارجية
- كبيرة مكان استمتاع وعمل ولقاءات
٦- بعد التوزيع تبدا في اختيار مقاول تنفيذ
شركة معدات مطابخ
شركة رخام وكاونترات
مقاول اعمال كهربائية وصحية
شركة اصباغ وديكور
شركة ارضيات
قد تجد مقاول واحد يقوم بكل هذا العمل ولكن السعر سيكون مرتفع نوعا ما
٧- في اثناء تاسيس الكوفي شوب تكون انت مختار الديكور والاثاث المناسب ..
وعندك اقل من ٤٥ يوم لحين انتهاء اعمال التاسيس ..
لازم تراعي مناسبة الديكور للوحة الخارجية والاضاءة ولون مطبوعات المحل والارضية ..
خلك بسيط عشان تقدر تكرر النموذج في الفروع المستقبلية..
٨- بعد اختيار الديكور ، تتجه الى تصميم ورقيات والوان الكوفي شوب ، اختار مصمم شاطر ولا تستخسر في الدفع للمصمم لانه هو المسؤول عن صورة الكوفي في الاعلانات ..
- لا تطبع انواع كثيرة
- حاول تستعمل اكثر من شيء لاكثر من عنصر في قائمة الكوفي
- اطبع كمية بسيطة في البداية
- كن مبدع
٩- في اثناء بداية الاعمال التاسيسية تبدا اختيار فريق العمل :
باريستا عدد ٢
مساعد وطلبات خارجية عدد ٢
🔴 محاسب (هذا اهم واحد ، ولو كان المشروع صغير)
لا تسوي فريق عمل كبير ، راح تكبر مع الوقت
حط شروط عقد تحمي مشروعك
نوع الجنسيات
استعن بمتخصص ليساعدك
١٠- بعد انتهاء اعمال المقاولة وطباعة الورقيات وتكوين فريق العمل ، ستتجه الى خطوة :
البحث عن افضل الموردين للقهوة وباقي المواد الاولية ، وانصحك:
-خل عندك اكثر من مورد لكل صنف
-تواصل انت او المحاسب مع المورد
-راقب جودة المواد المواد والاسعار
هذه الخطوة تاخذ فيها وقتك ، لا تستعجل
١١- بعد اكتمال جميع اعمال تجهيز المحل ، عليك بالتاكد من تحضير كل المشروبات ، وطريقة تقديمها ، واسلوب الخدمة ، وملابس الموظفين ..
اعمل سيناريو تجريبي واعزم اصدقائك واهلك ، وراقب وين الاشياء اللي تحتاج تحسين ومراعاة وحل ..
فترة التجربة تاخذ من اسبوع الى اسبوعين
نكمل بكرا ..
لسه ما خلص التجهيز 😁
تصبحون على خير
١٢- فيما يلي عرض سعر حديث للمعدات المطلوبة ، مع ملاحظة ان هنالك دائما شيء افضل ، ولكن راس مال التاسيس هنا يحكم النوع والسعر
لا تنسى ان حتى المعدات ذات الجودة الاعلى يوجد منها مستعمل ونظيف
خذ جولة على محلات معدات المطابخ المستعملة

جاري تحميل الاقتراحات...