م.عبدالرحمن التركي
م.عبدالرحمن التركي

@ArchPlaces

13 تغريدة 40 قراءة Aug 14, 2020
حديثنا اليوم عن منزل في اليابان
إجمالي مسطح البناء 150 متر مبع فقط ...
يظهر لنا في هذا المشروع كيف يمكن للفناء أن يكون جميلاً ومتحركاً بالإضافة إلى أن يكون فاصلاً ورابطاً بين أجزاء المنزل ليحقق الجودة
جوهر هذا المشروع هو وجود الفناء الداخلي بالتشجير البسيط كنقطة فصل بين المعيشة والنوم , ستتوضح الفكرة في المخطط لاحقاً
الوظيفة والجمال تتحقق ...
ونستمر في الحديث عن التكوين الخارجي فنرى أن الإهتمام في الواجهة البسيطة كان مدروساً على فترات اليوم المختلفة , ليلاً ونهاراً .
يمكن ان يكون التميز والإختلاف بالتفاصيل البسيطة فقط ...
ونرى المداخل الجانبية والفراغات الخارجية ديناميكية بتفاصيل صغيرة تضيف للمكان جمالاً ورونقاً ...
أما عن الداخل فقد استخدم المصمم المواد المتوفرة محلياً , والتي تمثلت في الخشب كمادة للتشطيب النهائي ونرى أهمية وجود الإضاءة الطبيعية وإكتفاء المكان بها .
وهنا يظهر الجزء المهم لربات المنزل , وهو المطبخ , فبالرغم من صغر المكان و استخدام مادة تشطيب واحدة فقط إلا أن النتيجة تفوق ما نراه في منازلنا مع أسفنا على ذلك
كل شي يكون مدروساً لابد أن يكون أنيقاً ....
شرح مفصل لهذه الصور ,
1/ انظر عزيزي للتكوين الموجود خلف طاولة الطعام , هذه الأشجار ستكون خضراء في الربيع والصيف , ومصفرة في الخريف , وأغصان كما هي في الصورة في الشتاء , فهل يوجد مادة تشطيب من صنع البشرر تتغير مثل هذه ؟؟
2/ الفتحة أسفل الدرج اضافة إضاءة للمكان ومكملاً تشكيلياً.
في صالة الجلوس ستمتد بنظرك من الداخل والخارج وبدايات الداخل , كما فصل المصمم المنطقة بإختلاف المنسوب بدرجتين .
لن تمل العين المكان حتى ولو كان التشطيب من مادة واحدة فقط إن كان جميلاً ...
طاولة الطعام ستعطيك إنطباعاً مختلفاً في كل لحظة من لحظات اليوم
وهنا يتضح كيف تؤثر الإضاء في تكون الفراغات الداخلية والخارجية
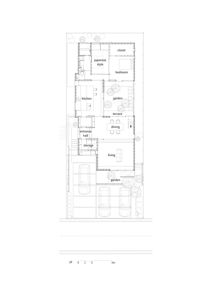
وهنا شرح للمخطط
من الامام : 1 صالة الجلوس
2 طاولة الطعام
3 الفناء الرئيسي
4 مطبخ بجانب الفناء
5 غرفة النوم واحتياجاتها
6 غرفة متعددة الإستخدامات بجانب النوم الرئيسية .
7 مستودع بجانب المدخل
8 دورة مياه للمعيشة
كل هذا في 150 متر مربع , وبجمال رائع ....
ختاماً ,
إن دراسة المشروع قبل تنفيذه وتصور النتيجة هي السبب الرئيسي بعد أمر الله في النتائج المثالية
دمتم بود

جاري تحميل الاقتراحات...