ناقد معماري
ناقد معماري

@Archi_Critic

10 تغريدة 373 قراءة May 21, 2020
إذا ذهبت لمكتب هندسي وطلبت منه مخطط لمنزلك.. وأعطاك مخطط ما فيه المعلومات اللي راح أذكرها في التغريدات التالية.. فلا تقبل به وخليه يعيده لك مكتمل المعلومات حسب الأصول الهندسية
أولا: تسليم المخطط بمقياس رسم قابل للقراءة وما تحتاج عدسة مكبرة عشان تعرف إذا هذا جدار أو قاطع ديكوري.
ثانيا: بعض المكاتب تسلم المخطط من دون ما ترسم الأبواب.. أو تحدد أماكن النوافذ.. مجرد جدران مصمتة!! وأبشركم أحيانا يعطيك مخطط لغرفة مالها باب.. ما تدري وين مدخلها معه.. يمكن مقصد المصمم انك تنط فوق الجدار عشان تدخلها!!.
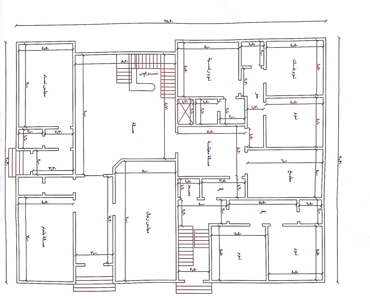
ثالثا: مخطط من دون كتابة أسماء الغرف والفراغات لا تقبل به.
رابعا: مخطط من دون رسم لدرج المداخل وتوضيح عرضها وعددها وتحديد ارتفاع منسوب البيت عن الشارع غير مقبول.
خامسا: لا تستلم مخطط الدور الأرضي من دون توضيح تفاصيل الموقع العام للأرض.. عرض الشوارع والجيران والإرتدادات على السور.. وتوضيح سهم الشمال على المخطط..
سادسا: أرجوكم.. لا تستلموا مخطط من دون توزيع المهندس للأثاث على المخطط.. بالمناسبة جزء كبير من عيوب التصميم بتشوفوها مع توزيع المصمم للأثاث. بتعرف المساحات المهدرة بالتصميم والتي لا يمكن تأثيثها. بتعرف عدد الضيوف في المجالس. بتعرف اسلوب الحركة بالمكان. وهل هو مناسب بالتأثيث أو لا
سابعا: مخطط من دون توضيح لمقاسات الغرف ... طولها وعرضها ومساحتها الإجمالية... أو مخطط من دون توضيح نسبة المساحة المبنية لكل دور .. ومجموع المساحات المبنية لكل الأدوار غير مقبول.
وأخيرا: كل ما تكلمت عنه... مجرد أساسيات بسيطة جدا لمخطط مبدئي للدراسة .. وهو من أبسط حقوقكم الحصول عليه... ولا تقبلوا بأقل من ذلك ... وتذكروا أنه من الصعب دراسة المخطط بشكل جيد من دون توفر هذه المعلومات الأساسية..
راح اعرض لكم هنا مجموعة من المخططات التي معلوماتها ناقصة... والمطلوب معرفة هذه المعلومات الناقصة بأنفسكم
بسم الله نبدأ..
وهذا مخطط ثاني... علموني وش فهمتو منه
وشوفو هذا مبسوط بمخططه ومسوي دعاية لنفسه بعد على المخطط... وهو مليء بالمعلومات الناقصة
بغض النظر عن جودة هذا التصميم من عدمه.... لكن على الاقل... قام هذا المهندس بتقديم مخطط مبدئي شبه مكتمل

جاري تحميل الاقتراحات...