توكلنا على الله
#مبادرة_تطوير_المخططات_2
قوامها 200 معماري ومعمارية
من السعودية والإمارات والكويت ومسقط والعراق وليبيا والجزائر
سيقضون أوقاتهم في منازلهم لخدمتكم
تم استلام 1100 طلب تطوير
سيتم نشر المشاركات تحت هذة التغريدة لتعم الفائدة
المستفيدون من المبادرة الأولى 👇🏻
#مبادرة_تطوير_المخططات_2
قوامها 200 معماري ومعمارية
من السعودية والإمارات والكويت ومسقط والعراق وليبيا والجزائر
سيقضون أوقاتهم في منازلهم لخدمتكم
تم استلام 1100 طلب تطوير
سيتم نشر المشاركات تحت هذة التغريدة لتعم الفائدة
المستفيدون من المبادرة الأولى 👇🏻
المرحلة الأولى (انتهت)
- تسجيل المشاركين المهندسين والمجال مفتوح لمن أراد المشاركة
- استلام طلبات التعديل على المخططات ضمن شروط محددة
المرحلة الثانية (جاري العمل عليها)
استكمال بيانات المشاركين
فرز الطلبات وتحديد المستحق للمبادرة
إرسال المخططات لمعماريين للبدء بالتطوير
- تسجيل المشاركين المهندسين والمجال مفتوح لمن أراد المشاركة
- استلام طلبات التعديل على المخططات ضمن شروط محددة
المرحلة الثانية (جاري العمل عليها)
استكمال بيانات المشاركين
فرز الطلبات وتحديد المستحق للمبادرة
إرسال المخططات لمعماريين للبدء بالتطوير
من ليلة البارحة واليوم وصل المعماريون والمعماريات مخططات المستفيدين من #مبادرة_تطوير_المخططات_2
وجاري التواصل معهم من قبل المهندسين لمعرفة كافة التفاصيل والبدء بالتعديلات
تحية طيبة مباركة لكل المشاركين المبدعين
دعواتي لكم بالتوفيق والسداد والقبول من رب العباد
وجاري التواصل معهم من قبل المهندسين لمعرفة كافة التفاصيل والبدء بالتعديلات
تحية طيبة مباركة لكل المشاركين المبدعين
دعواتي لكم بالتوفيق والسداد والقبول من رب العباد
موقف المبادرة اليوم
تم أرسال أكثر من 150 مخطط للمعماريين والمعماريات وسيقومون بالتواصل معكم لمزيد من التفاصيل
جاري في الأيام القادمة استكمال الأرسال
#مبادرة_تطوير_المخططات_2
تم أرسال أكثر من 150 مخطط للمعماريين والمعماريات وسيقومون بالتواصل معكم لمزيد من التفاصيل
جاري في الأيام القادمة استكمال الأرسال
#مبادرة_تطوير_المخططات_2
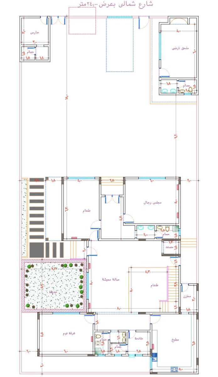
باكورة مشاريع
#مبادرة_تطوير_المخططات_2
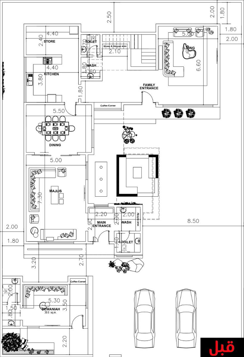
من تصميم المعمارية | فاطمة المصدق جدة
فيلا في المدينة المنورة 20 * 40 =800م2
الدور الأرضي = 275 م2
الدور الأول = 280 م2
السطح = 73 م2
الأجمالي = 628 م2
أسأل الله العظيم أن يبارك في جهد المهندسة ويجزيها عنا خير الجزاء
#مبادرة_تطوير_المخططات_2
من تصميم المعمارية | فاطمة المصدق جدة
فيلا في المدينة المنورة 20 * 40 =800م2
الدور الأرضي = 275 م2
الدور الأول = 280 م2
السطح = 73 م2
الأجمالي = 628 م2
أسأل الله العظيم أن يبارك في جهد المهندسة ويجزيها عنا خير الجزاء
سيتم بإذن الله ادراج التغطية للمخطط كاملة على اليوتيوب مع المخططات اوتوكاد ليستفيد منها الجميع بإذن الله
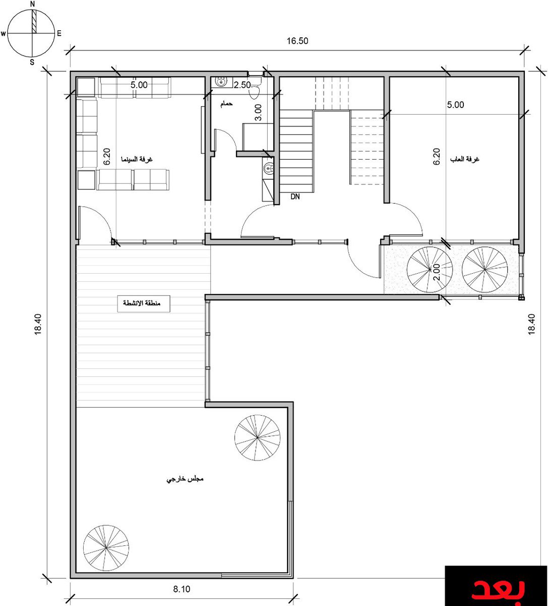
مشاركة المعماري أحمد المسلم في
#مبادرة_تطوير_المخططات_2
فيلا في القصيم 20 * 34 = 690 م2
الدور الأرضي = 344 م2
الدور الأول = 285 م2
السطح. = 117 م2
الأجمالي = 746 م2
شكراً معماري على جهودك معنا ❤️
والله يكتب الأجر لك ولجميع المشاركين
#مبادرة_تطوير_المخططات_2
فيلا في القصيم 20 * 34 = 690 م2
الدور الأرضي = 344 م2
الدور الأول = 285 م2
السطح. = 117 م2
الأجمالي = 746 م2
شكراً معماري على جهودك معنا ❤️
والله يكتب الأجر لك ولجميع المشاركين
مشاركة المعماري حسين باعيسى من حائل
#مبادرة_تطوير_المخططات_2
فيلا 30 * 30 = 900 م2
عدد أفراد الأسرة 11 شخص من ضمنهم الجد والجدة ربي يحفظهم
شكراً معماري على الجهد المبذول ماقصرت ربي يكتب أجرك ❤️
#مبادرة_تطوير_المخططات_2
فيلا 30 * 30 = 900 م2
عدد أفراد الأسرة 11 شخص من ضمنهم الجد والجدة ربي يحفظهم
شكراً معماري على الجهد المبذول ماقصرت ربي يكتب أجرك ❤️
المخططات قبل وبعد 👇🏻
حساب المعماري حسين في السناب
snapchat.com
المخططات على قوقل درايف لمن أراد الإستفادة منها
drive.google.com
حساب المعماري حسين في السناب
snapchat.com
المخططات على قوقل درايف لمن أراد الإستفادة منها
drive.google.com
من أبرز اهداف المبادرة
نشر المخططات المدروسه والإستفادة منها
بيان دور المعماري وأهميته في مرحلة البناء
التعريف بالمعماريين في كافة المناطق وعرض أعمالهم لمن أراد التعاقد معهم
نشر المخططات المدروسه والإستفادة منها
بيان دور المعماري وأهميته في مرحلة البناء
التعريف بالمعماريين في كافة المناطق وعرض أعمالهم لمن أراد التعاقد معهم
مشاركة المعماري عارف الكربي - الخبر
#مبادرة_تطوير_المخططات_2
مساحة الأرض 17.5 * 35
منطقة نجران
التطوير أقتصر على تهذيب المخطط وإعادة توزيع العناصرحسب طلب المالك
#مبادرة_تطوير_المخططات_2
مساحة الأرض 17.5 * 35
منطقة نجران
التطوير أقتصر على تهذيب المخطط وإعادة توزيع العناصرحسب طلب المالك
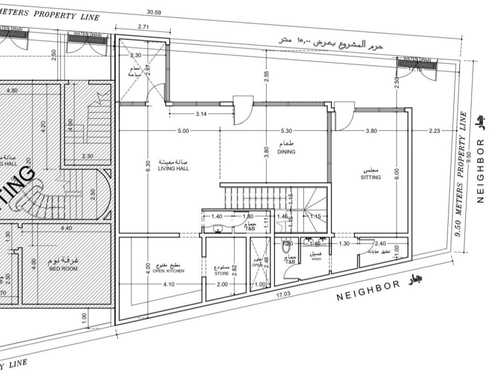
تطوير مخطط لبيت سكني في مدينة جدة
مساحة الأرض = 207.75م²
الدور الأرضي + الملحق = 128م²
(يمثل نسبة 61٪ من إجمالي مساحة الأرض)
كما تمثل الحديقة مساحة 75-80م²
الدور الأول= 96.5م²
الملحق العلوي= 48.2م²
المعماري : عبدالعزيز الخراز
القصيم-بريده
#مبادرة_تطوير_المخططات_2
مساحة الأرض = 207.75م²
الدور الأرضي + الملحق = 128م²
(يمثل نسبة 61٪ من إجمالي مساحة الأرض)
كما تمثل الحديقة مساحة 75-80م²
الدور الأول= 96.5م²
الملحق العلوي= 48.2م²
المعماري : عبدالعزيز الخراز
القصيم-بريده
#مبادرة_تطوير_المخططات_2
المخططات قبل وبعد التطوير 👇🏻
المخططات على قوقل درايف لمن أراد الإستفادة منها والتعديل عليها
drive.google.com
المخططات على قوقل درايف لمن أراد الإستفادة منها والتعديل عليها
drive.google.com
مشاركة المعماري راجح الراجح _المدينه والقصيم
#مبادرة_تطوير_المخططات_2
الأرض في خميس مشيط
المساحة 20 * 35 =700 م2شارع 15
الدور الأرضي=303 م2 نسبة 43٪
الدور الأول. =230 م2 نسبة 32٪
الأفنية الموجودة في الدور الأرضي =108م2 تعادل أكثر من ثلث المساحة المبنية في الدور الأرضي
#مبادرة_تطوير_المخططات_2
الأرض في خميس مشيط
المساحة 20 * 35 =700 م2شارع 15
الدور الأرضي=303 م2 نسبة 43٪
الدور الأول. =230 م2 نسبة 32٪
الأفنية الموجودة في الدور الأرضي =108م2 تعادل أكثر من ثلث المساحة المبنية في الدور الأرضي
المخططات قبل وبعد 👇🏻
المخططات على قوقل درايف لمن اراد التعديل عليها
drive.google.com
سناب المعماري راجح الراجح
snapchat.com
بيض الله وجهك معماري ماقصرت وكتب الله أجرك على المشاركة❤️
.
المخططات على قوقل درايف لمن اراد التعديل عليها
drive.google.com
سناب المعماري راجح الراجح
snapchat.com
بيض الله وجهك معماري ماقصرت وكتب الله أجرك على المشاركة❤️
.
مشاركة المعماري حمد القاسم _ حائل
#مبادرة_تطوير_المخططات_2
مساحة الأرض 200 متر مربع
مسطح الأرضي 128 متر مربع
مسطح الدور الأول 113 متر مربع
كتب الله أجرك مهندس ❤️
وين أهل حائل يقولون ماعندنا مهندسين 😅هذا ثاني مهندس يعرض مشاركته 👌🏻
#مبادرة_تطوير_المخططات_2
مساحة الأرض 200 متر مربع
مسطح الأرضي 128 متر مربع
مسطح الدور الأول 113 متر مربع
كتب الله أجرك مهندس ❤️
وين أهل حائل يقولون ماعندنا مهندسين 😅هذا ثاني مهندس يعرض مشاركته 👌🏻
المخططات قبل وبعد 👇🏻
المخططات على قوقل درايف الي حاب يعدل عليها
drive.google.com
سناب المعماري حمد القاسم
snapchat.com
المخططات على قوقل درايف الي حاب يعدل عليها
drive.google.com
سناب المعماري حمد القاسم
snapchat.com
مشاركة المعماري عبد الله الصهيل_القصيم
#مبادرة_تطوير_المخططات_2
فيلا في مدينة بريدة 24*17 = 408 م2
الطابق الأرضي = 230 م2
الطابق الأول = 175 م2
السطح = 90 م2
الإجمالي = 495 م2
المهندس عبد الله شارك معنا في كل المبادرتين فله الشكر الجزيل على جهوده معنا ❤️
#مبادرة_تطوير_المخططات_2
فيلا في مدينة بريدة 24*17 = 408 م2
الطابق الأرضي = 230 م2
الطابق الأول = 175 م2
السطح = 90 م2
الإجمالي = 495 م2
المهندس عبد الله شارك معنا في كل المبادرتين فله الشكر الجزيل على جهوده معنا ❤️
المخططات قبل وبعد 👇🏻
المخططات على قوقل درايف لمن أراد الأستفادة منها والتعديل
drive.google.com
سناب المعماري عبد الله
snapchat.com
تويتر
إنستقرام
instagram.com
عدم وجود طعام للضيوف حسب طلب صاحب المخطط في المخطط قبل وبعد
المخططات على قوقل درايف لمن أراد الأستفادة منها والتعديل
drive.google.com
سناب المعماري عبد الله
snapchat.com
تويتر
إنستقرام
instagram.com
عدم وجود طعام للضيوف حسب طلب صاحب المخطط في المخطط قبل وبعد
المعماري | عزام السبيعي - الخبر
في #مبادرة_تطوير_المخططات_2
من المعماريين المبدعين وله بصمته الخاصة
موقع الأرض : أبوظبي 1080 م٢
العمل المعماري لايقتصر على مخطط دور أرضي + أول + سطح + واجهات غير مدروسة
ما تشاهدونه هو العمل المعماري المحترف
بيض الله وجهك معمارينا المبدع ❤️
في #مبادرة_تطوير_المخططات_2
من المعماريين المبدعين وله بصمته الخاصة
موقع الأرض : أبوظبي 1080 م٢
العمل المعماري لايقتصر على مخطط دور أرضي + أول + سطح + واجهات غير مدروسة
ما تشاهدونه هو العمل المعماري المحترف
بيض الله وجهك معمارينا المبدع ❤️
اِستكمال شرح المخطط 👇🏻
التواصل مع المعماري عزام عن طريق
سناب
snapchat.com
تويتر
الموقع الرسمي للمكتب
tamarch.com
التواصل مع المعماري عزام عن طريق
سناب
snapchat.com
تويتر
الموقع الرسمي للمكتب
tamarch.com
مشاركة المعماري بدر النصبان - الرياض
#مبادرة_تطوير_المخططات_2
مخطط لبيت سكني في مدينة الطائف
مساحة الأرض الإجمالية : 600م²
الدور الأرضي + الملاحق = 330م² تمثل نسبة 55% من إجمالي مساحة الأرض
الدور الأول = 272م²
السطح = 174م²
المجموع = 776م²
بارك الله فيك معماري ❤️
#مبادرة_تطوير_المخططات_2
مخطط لبيت سكني في مدينة الطائف
مساحة الأرض الإجمالية : 600م²
الدور الأرضي + الملاحق = 330م² تمثل نسبة 55% من إجمالي مساحة الأرض
الدور الأول = 272م²
السطح = 174م²
المجموع = 776م²
بارك الله فيك معماري ❤️
المخططات قبل وبعد 👇🏻
الملفات في قوقل درايف:
drive.google.com
التواصل مع المهندس بدر النصبان
تويتر:
سناب شات:
snapchat.com
انستقرام:
instagram.com
واتساب:
00966555449150
الملفات في قوقل درايف:
drive.google.com
التواصل مع المهندس بدر النصبان
تويتر:
سناب شات:
snapchat.com
انستقرام:
instagram.com
واتساب:
00966555449150
مشاركة المعماري حامد البار - الرياض
@hsa915
#مبادرة_تطوير_المخططات_2
مخطط لبيت سكني في مدينة الدمام
مساحة الأرض الإجمالية : 520 م2
الدور الأرضي = 260 م2
الدور الأول = 260 م2
تعديل جميل جداً وحل مشاكل كبيرة في المخطط السابق
بارك الله في جهودك معماري ❤️
@hsa915
#مبادرة_تطوير_المخططات_2
مخطط لبيت سكني في مدينة الدمام
مساحة الأرض الإجمالية : 520 م2
الدور الأرضي = 260 م2
الدور الأول = 260 م2
تعديل جميل جداً وحل مشاكل كبيرة في المخطط السابق
بارك الله في جهودك معماري ❤️
المخططات قبل وبعد 👇🏻
المخططات قوقل درايف الي حاب يعدل على المخططات
drive.google.com
سناب المعماري حامد البار
snapchat.com
إستقرام
instagram.com
المخططات قوقل درايف الي حاب يعدل على المخططات
drive.google.com
سناب المعماري حامد البار
snapchat.com
إستقرام
instagram.com
تصحيح*
مساحة الأرض حسب المخطط
35 * 20 = 700 م2
مساحة الأرض حسب المخطط
35 * 20 = 700 م2
مشاركة المعماري عبدالله بن سعيدان - الرياض
@spanarchitects
#مبادرة_تطوير_المخططات_2
مخطط لبيت سكني في الطائف
مساحة الأرض الإجمالية : 800 م2
الدور الارضي = 430 م2 يمثل نسبة ( 54% ) من إجمالي مساحة الارض
تم عرض مقترحين على المالك دورين ودور واحد وتم اعتماد دور واحد
شكراً لك
@spanarchitects
#مبادرة_تطوير_المخططات_2
مخطط لبيت سكني في الطائف
مساحة الأرض الإجمالية : 800 م2
الدور الارضي = 430 م2 يمثل نسبة ( 54% ) من إجمالي مساحة الارض
تم عرض مقترحين على المالك دورين ودور واحد وتم اعتماد دور واحد
شكراً لك
المخططات قبل وبعد 👇🏻
المخططات على قوقل درايف لمن اراد التعديل عليها
drive.google.com
حساب المعماري في تويتر
@ArchAbdullahsdn
المخططات على قوقل درايف لمن اراد التعديل عليها
drive.google.com
حساب المعماري في تويتر
@ArchAbdullahsdn
مشاركة المعماري بجير يوسف بسيوني - جدة
#مبادرة_تطوير_المخططات_2
تطوير مخطط لبيت سكني في مدينة الرياض
مساحة الأرض الإجمالية : 630م²
الدور الأرضي = 275م²
الدور الأول = 225 م²
الملحق العلوي (السطح) = 85م²
بارك الله في جهودك مهندس شغل جميل تشكر عليه ❤️
#مبادرة_تطوير_المخططات_2
تطوير مخطط لبيت سكني في مدينة الرياض
مساحة الأرض الإجمالية : 630م²
الدور الأرضي = 275م²
الدور الأول = 225 م²
الملحق العلوي (السطح) = 85م²
بارك الله في جهودك مهندس شغل جميل تشكر عليه ❤️
المخططات قبل وبعد 👇🏻
المخططات على قوقل درايف الي حاب يحمل المخططات ويعدل عليها او يطلع عليها بوضوح
drive.google.com
التواصل مع المهندس عن طريق الإنستقرام
instagram.com
المخططات على قوقل درايف الي حاب يحمل المخططات ويعدل عليها او يطلع عليها بوضوح
drive.google.com
التواصل مع المهندس عن طريق الإنستقرام
instagram.com
مشاركة المعماري شادي البيتي-جدة
#مبادرة_تطوير_المخططات_2
تطوير مخطط لبيت سكني في الباحة
مساحة الأرض الإجمالية = 450 م2
الدور الأرضي + الملحق = 270 م2
الدور الأول = 220 م2
السطح = 30 م2
الإجمالي = 520 م2
المخطط السابق من النت والمعماري قام بتصميم المشروع حسب متطلبات المالك
#مبادرة_تطوير_المخططات_2
تطوير مخطط لبيت سكني في الباحة
مساحة الأرض الإجمالية = 450 م2
الدور الأرضي + الملحق = 270 م2
الدور الأول = 220 م2
السطح = 30 م2
الإجمالي = 520 م2
المخطط السابق من النت والمعماري قام بتصميم المشروع حسب متطلبات المالك
المخططات قبل وبعد 👇🏻
المخططات على قوقل درايف الي حاب يحمل المخططات ويعدل عليها او يطلع عليها بوضوح
drive.google.com
سناب المعماري شادي
snapchat.com
تويتر
@Shadi_Archi
واتساب
0566558448
المخططات على قوقل درايف الي حاب يحمل المخططات ويعدل عليها او يطلع عليها بوضوح
drive.google.com
سناب المعماري شادي
snapchat.com
تويتر
@Shadi_Archi
واتساب
0566558448
مشاركة المعماري عبدالله الجاروشة-جدة
#مبادرة_تطوير_المخططات_2
تطوير مخطط في خميس مشيط
مساحة الأرض الإجمالية = 700 م2
الدور الأرضي = 245 م2
الدور الأول = 265 م2
السطح = 30 م2
الإجمالي = 540 م2
بارك الله فيك مهندس تغيير جميل وأخراج أجمل ربي يوفقك 🌹
#مبادرة_تطوير_المخططات_2
تطوير مخطط في خميس مشيط
مساحة الأرض الإجمالية = 700 م2
الدور الأرضي = 245 م2
الدور الأول = 265 م2
السطح = 30 م2
الإجمالي = 540 م2
بارك الله فيك مهندس تغيير جميل وأخراج أجمل ربي يوفقك 🌹
المخططات قبل وبعد 👇🏻
المخططات على قوقل درايف من أراد الإستفادة منها والتعديل عليها
drive.google.com
حسابات مواقع التواصل الاجتماعي rearch
للمعماري
الانستقرام :
instagram.com
تويتر
طريقة التواصل
0596969698
Rearch.sa@gmail.com
المخططات على قوقل درايف من أراد الإستفادة منها والتعديل عليها
drive.google.com
حسابات مواقع التواصل الاجتماعي rearch
للمعماري
الانستقرام :
instagram.com
تويتر
طريقة التواصل
0596969698
Rearch.sa@gmail.com
@smmataleh يشرفنا
مشاركة المعماري عبدالرحمن المقري - القصيم
#مبادرة_تطوير_المخططات_2
تطوير مخطط في محافظة السليل
مساحة الأرض 600 م2
الدور الأرضي قبل التطوير : 296 م2
الدور الأرضي بعد التطوير : 270 م2
الدور الأول قبل التطوير : 197 م2
الدور الأول بعد التطوير : 165 م2
بارك الله فيك معماري
#مبادرة_تطوير_المخططات_2
تطوير مخطط في محافظة السليل
مساحة الأرض 600 م2
الدور الأرضي قبل التطوير : 296 م2
الدور الأرضي بعد التطوير : 270 م2
الدور الأول قبل التطوير : 197 م2
الدور الأول بعد التطوير : 165 م2
بارك الله فيك معماري
المخططات قبل وبعد 👇🏻
المخططات على قوقل درايف الي حاب يستفيد منها
drive.google.com
تويتر
@wathar_studio
ايميل
watharstudio@gmail.com
جوال
0558919222
المخططات على قوقل درايف الي حاب يستفيد منها
drive.google.com
تويتر
@wathar_studio
ايميل
watharstudio@gmail.com
جوال
0558919222
مشاركة المعمارية مغفره السمان
جده - مكتب BIM LEAD
#مبادرة_تطوير_المخططات_2
مساحة الأرض = 503 م2 - الرياض
الدور الأرضي = 163 م2 لكل وحده
الدور الاول = 168 م2 لكل وحده
الملحق = 102 م2 لكل وحده
تمثل الحديقة مساحة 213 م2 للوحده رقم 1 و مساحة 91 م2 لوحده رقم 2
شكراً لك
جده - مكتب BIM LEAD
#مبادرة_تطوير_المخططات_2
مساحة الأرض = 503 م2 - الرياض
الدور الأرضي = 163 م2 لكل وحده
الدور الاول = 168 م2 لكل وحده
الملحق = 102 م2 لكل وحده
تمثل الحديقة مساحة 213 م2 للوحده رقم 1 و مساحة 91 م2 لوحده رقم 2
شكراً لك
المخططات قبل وبعد 👇🏻
تم تهذيب المخطط وترتيبه وعمل التصميم الخارجي
بارك الله فيك معمارية مجهود جميل ربي يوفقك ويكتب اجرك
المخططات على قوقل درايف لمن اراد الحصول عليها والتعديل حسب حاجته
drive.google.com
تم تهذيب المخطط وترتيبه وعمل التصميم الخارجي
بارك الله فيك معمارية مجهود جميل ربي يوفقك ويكتب اجرك
المخططات على قوقل درايف لمن اراد الحصول عليها والتعديل حسب حاجته
drive.google.com
المعماري | عبدالمحسن سنكي - الخبر
في #مبادرة_تطوير_المخططات_2
مجهود مميز وعمل متكامل ربي يوفقك
الأرض في الطائف 18 م * 25 م = 450 م٢
الدور الأرضي = 140 م²
الدور الأول = 150 م²
الملحق العلوي = 55 م²
الأن اصبح مخطط اقدر احط فيه تحويشة العمر
بيض الله وجهك معمارينا المبدع
في #مبادرة_تطوير_المخططات_2
مجهود مميز وعمل متكامل ربي يوفقك
الأرض في الطائف 18 م * 25 م = 450 م٢
الدور الأرضي = 140 م²
الدور الأول = 150 م²
الملحق العلوي = 55 م²
الأن اصبح مخطط اقدر احط فيه تحويشة العمر
بيض الله وجهك معمارينا المبدع
المخططات قبل وبعد 👇🏻
المخططات على قوقل درايف لمن اراد الإستفادة منها والتعديل عليها
drive.google.com
سناب المعماري عبد المحسن
snapchat.com
المخططات على قوقل درايف لمن اراد الإستفادة منها والتعديل عليها
drive.google.com
سناب المعماري عبد المحسن
snapchat.com
مخطط ماله علاقه بالأرض ولا متطلبات صاحبها
بيض الله وجهك معماري عبد الرحمن الشريدة - القصيم
#مبادرة_تطوير_المخططات_2
الأرض 18م * 25م = 450م2 جدة
الدور الأرضي= 214م2
الدور الاول= 178م2
السطح= 79م2
مجموع مسطحات البناء= 471م2
بيض الله وجهك شغل محترف
الأن يستحق أن يكون منزل لأسرة
بيض الله وجهك معماري عبد الرحمن الشريدة - القصيم
#مبادرة_تطوير_المخططات_2
الأرض 18م * 25م = 450م2 جدة
الدور الأرضي= 214م2
الدور الاول= 178م2
السطح= 79م2
مجموع مسطحات البناء= 471م2
بيض الله وجهك شغل محترف
الأن يستحق أن يكون منزل لأسرة
المخططات قبل وبعد 👇🏻
المخططات على قوقل درايف للأستفادة منها بالتعديل حسب الأحتياج
drive.google.com
التواصل مع المعماري عبد الرحمن
Snapchat: d7eem_sh
Twitter: @arch_dhim
whatsapp: 966556133223
المخططات على قوقل درايف للأستفادة منها بالتعديل حسب الأحتياج
drive.google.com
التواصل مع المعماري عبد الرحمن
Snapchat: d7eem_sh
Twitter: @arch_dhim
whatsapp: 966556133223
مشاركة مختلفة في
#مبادرة_تطوير_المخططات_2
- توزيع الاثاث والاكسسوات
-تصميم الحديقة
-تصميم الواجهات
شكراً عالم مشاعل على المشاركة
@MeshaelWorld
العمارة والتصميم الداخلي ماهو مخطط تقسيمات داخلية فقط !! العمارة عالم لاينتهي من الخدمات التي تقدم
#مبادرة_تطوير_المخططات_2
- توزيع الاثاث والاكسسوات
-تصميم الحديقة
-تصميم الواجهات
شكراً عالم مشاعل على المشاركة
@MeshaelWorld
العمارة والتصميم الداخلي ماهو مخطط تقسيمات داخلية فقط !! العمارة عالم لاينتهي من الخدمات التي تقدم
@Ghanem31213229 احنا جالسين نعرض اعمال الشباب المعماريين عليك الاختيار
مشاركة المعماري عبد الفتاح بن محمد - مكة المكرمة
#مبادرة_تطوير_المخططات_2
فيلا في مدينة جدة 18 * 25 = 450 م2
الطابق الأرضي = 230 م2
الطابق الأول = 270 م2
بارك الله فيك معماري جهد كبير في الأفكار والتحليل والإخراج
مشاركة ذات قيمة مضافة للمبادرة ربي يحفظك ❤️
#مبادرة_تطوير_المخططات_2
فيلا في مدينة جدة 18 * 25 = 450 م2
الطابق الأرضي = 230 م2
الطابق الأول = 270 م2
بارك الله فيك معماري جهد كبير في الأفكار والتحليل والإخراج
مشاركة ذات قيمة مضافة للمبادرة ربي يحفظك ❤️
المخططات قبل وبعد
المخططات على قوقل درايف لمن اراد الأستفادة منها
drive.google.com
التواصل مع المعماري عبد الفتاح
تويتر / @Arch_3bd2l
سناب شات / snapchat.com
المخططات على قوقل درايف لمن اراد الأستفادة منها
drive.google.com
التواصل مع المعماري عبد الفتاح
تويتر / @Arch_3bd2l
سناب شات / snapchat.com
مشاركة المعماري فيصل الوادي-الرياض
#مبادرة_تطوير_المخططات_2
فيلا في مدينة ينبع البحر 25*25 = 625 م2
الدور الأرضي = 315 م2
يمثل نسبة 50٪ من إجمالي مساحة الأرض
الدور الأول = 285 م2
السطح = 139 م2
الأجمالي = 738 م2
بارك الله فيك معماري فيصل مبدع ماشاء الله تبارك الله
#مبادرة_تطوير_المخططات_2
فيلا في مدينة ينبع البحر 25*25 = 625 م2
الدور الأرضي = 315 م2
يمثل نسبة 50٪ من إجمالي مساحة الأرض
الدور الأول = 285 م2
السطح = 139 م2
الأجمالي = 738 م2
بارك الله فيك معماري فيصل مبدع ماشاء الله تبارك الله
المخططات قبل وبعد 👇🏻
المخططات على قوقل درايف للأستفادة منها والتعديل عليها حسب الحاجه
drive.google.com
التواصل مع المعماري فيصل
تويتر
@ALFvsal
إنستقرام
Arch.Wadi
المخططات على قوقل درايف للأستفادة منها والتعديل عليها حسب الحاجه
drive.google.com
التواصل مع المعماري فيصل
تويتر
@ALFvsal
إنستقرام
Arch.Wadi
معماري متميز
شارك معنا في المبادرة الأولى وهاهو الأن يُتحفنا بإبداعاته
المعماري أحمد بامطرف-الرياض
#مبادرة_تطوير_المخططات_2
فيلا في ابها 600 م2
قبو وشقق(مكونات كثيرة)
القبو = 440 م2
الدور الأرضي = 360 م2
الدور الأول = 350 م2
السطح = 180 م2
مبدع ماشاء الله تبارك الله
شارك معنا في المبادرة الأولى وهاهو الأن يُتحفنا بإبداعاته
المعماري أحمد بامطرف-الرياض
#مبادرة_تطوير_المخططات_2
فيلا في ابها 600 م2
قبو وشقق(مكونات كثيرة)
القبو = 440 م2
الدور الأرضي = 360 م2
الدور الأول = 350 م2
السطح = 180 م2
مبدع ماشاء الله تبارك الله
مخططات الأدوار
المخططات على قوقل درايف للأستفادة منها والتعديل عليها حسب الحاجه
drive.google.com
التواصل مع المعماري أحمد بامطرف
سناب :
snapchat.com
المخططات على قوقل درايف للأستفادة منها والتعديل عليها حسب الحاجه
drive.google.com
التواصل مع المعماري أحمد بامطرف
سناب :
snapchat.com
مشاركة مكتب المتألق للاستشارات الهندسية - الرياض والدمام
#مبادرة_تطوير_المخططات_2
مشروع فله في القصيم
مساحة الارض = 443 م2
الدور الارضي = 278 م2
الدور الاول = 214 م2
الملحق = 100 م2
بارك الله فيكم ماقصرتو على المشاركة 🌹
#مبادرة_تطوير_المخططات_2
مشروع فله في القصيم
مساحة الارض = 443 م2
الدور الارضي = 278 م2
الدور الاول = 214 م2
الملحق = 100 م2
بارك الله فيكم ماقصرتو على المشاركة 🌹
المخططات قبل وبعد 👇🏻
المخططات على قوقل درايف للأستفادة منها والتعديل عليها حسب الحاجه
drive.google.com
التواصل مع مكتب المتألق للاستشارات الهندسية - الرياض والدمام
واتساب : 0547199995
توتير وانستغرام : brilliant__sa
السناب شات : brilliant_sa
الايميل : Info@br-design.co
المخططات على قوقل درايف للأستفادة منها والتعديل عليها حسب الحاجه
drive.google.com
التواصل مع مكتب المتألق للاستشارات الهندسية - الرياض والدمام
واتساب : 0547199995
توتير وانستغرام : brilliant__sa
السناب شات : brilliant_sa
الايميل : Info@br-design.co
مشاركة المصممة الداخلية حُسنى الهاشم
الشرقية الجبيل الصناعية
#مبادرة_تطوير_المخططات_2
تصميم فيلا عائلية في القصيم
عدد أفراد العائلة 6 مع خادمة
مساحة الارض 670 م2
الدور الارضي 217 م2
السطح 65 م2
الإجمالي 500 م2
بارك الله فيك مهندسة شغل أهل الجبيل غير 😅 ماشاء الله
الشرقية الجبيل الصناعية
#مبادرة_تطوير_المخططات_2
تصميم فيلا عائلية في القصيم
عدد أفراد العائلة 6 مع خادمة
مساحة الارض 670 م2
الدور الارضي 217 م2
السطح 65 م2
الإجمالي 500 م2
بارك الله فيك مهندسة شغل أهل الجبيل غير 😅 ماشاء الله
المخططات قبل وبعد 👇🏻
المخططات على قوقل درايف للأستفادة منها والتعديل عليها حسب الحاجه
drive.google.com
drive.google.com
للتواصل مع المصممة
حساب الإنستقرام
instagram.com
الايميل
Husna.ih.n@gmail.com
المخططات على قوقل درايف للأستفادة منها والتعديل عليها حسب الحاجه
drive.google.com
drive.google.com
للتواصل مع المصممة
حساب الإنستقرام
instagram.com
الايميل
Husna.ih.n@gmail.com
مشاركة المعماري أحمد صلاح - الرياض
#مبادرة_تطوير_المخططات_2
تطوير مخطط فيلا سكنية فى الأحساء
مساحة الارض 440 م2
الدور الارضى 190 م٢
الدور الاول 165 م٢
تم توفير 50 متر فى الدور الارضى
وتوفير 50 متر فى الدور الأول
بارك الله فيك معماري أحمد ماقصرت على المشاركة الجميلة🌹
#مبادرة_تطوير_المخططات_2
تطوير مخطط فيلا سكنية فى الأحساء
مساحة الارض 440 م2
الدور الارضى 190 م٢
الدور الاول 165 م٢
تم توفير 50 متر فى الدور الارضى
وتوفير 50 متر فى الدور الأول
بارك الله فيك معماري أحمد ماقصرت على المشاركة الجميلة🌹
المخططات قبل وبعد 👇🏻
المخططات على قوقل درايف للأستفادة منها والتعديل عليها حسب الحاجه
drive.google.com
التواصل مع المعماري أحمد صلاح
جوال : 0555086368
ايميل arch.a7md@gmail.com
حساب تويتر
Take a look at 𝓒𝓻𝓮𝓪𝓽𝓲𝓿𝓮 𝓓𝓮𝓼𝓲𝓰𝓷𝓼
@Creat_Designs
المخططات على قوقل درايف للأستفادة منها والتعديل عليها حسب الحاجه
drive.google.com
التواصل مع المعماري أحمد صلاح
جوال : 0555086368
ايميل arch.a7md@gmail.com
حساب تويتر
Take a look at 𝓒𝓻𝓮𝓪𝓽𝓲𝓿𝓮 𝓓𝓮𝓼𝓲𝓰𝓷𝓼
@Creat_Designs
مشاركة المعماري عبدالرحمن الروقي -الرياض
#مبادرة_تطوير_المخططات_2
تطوير مخطط لمنزل سكني في الجبيلة
مساحة الأرض = 654م2
الدور الأرضي + الملحق = 328م2
يمثل نسبة ٥٠٪ من إجمالي مساحة الأرض
الدور الأول = 252م2
السطح = 18 م2
بارك الله فيك معماري عبد الرحمن 🌹
#مبادرة_تطوير_المخططات_2
تطوير مخطط لمنزل سكني في الجبيلة
مساحة الأرض = 654م2
الدور الأرضي + الملحق = 328م2
يمثل نسبة ٥٠٪ من إجمالي مساحة الأرض
الدور الأول = 252م2
السطح = 18 م2
بارك الله فيك معماري عبد الرحمن 🌹
المخططات قبل وبعد 👇🏻
رابط فيديو شرح المخططات
drive.google.com
رابط المخططات والمناظير
drive.google.com
رابط فيديو معماري( انيمشن )
drive.google.com
رابط فيديو شرح المخططات
drive.google.com
رابط المخططات والمناظير
drive.google.com
رابط فيديو معماري( انيمشن )
drive.google.com
فيديو للفيلا
التواصل مع المعماري عبد الرحمن
حساب انستغرام
instagram.com
حساب سناب
snapchat.com
حساب تويتر
التواصل مع المعماري عبد الرحمن
حساب انستغرام
instagram.com
حساب سناب
snapchat.com
حساب تويتر
مشاركة المعماري عبدالخالق البلادي
الأحساء - الهفوف
#مبادرة_تطوير_المخططات_2
فيلا في منطقة الجوف 25*25 = 784 م2
الدور الأرضي = 422 م2
يمثل نسبة 54٪ من إجمالي مساحة الأرض
الدور الأول = 417 م2
السطح = 18 م2
فرق شاسع بين المخطط القديم والمخطط الجديد
بارك الله فيك معماري متمكن🌹
الأحساء - الهفوف
#مبادرة_تطوير_المخططات_2
فيلا في منطقة الجوف 25*25 = 784 م2
الدور الأرضي = 422 م2
يمثل نسبة 54٪ من إجمالي مساحة الأرض
الدور الأول = 417 م2
السطح = 18 م2
فرق شاسع بين المخطط القديم والمخطط الجديد
بارك الله فيك معماري متمكن🌹
المخططات قبل وبعد 👇🏻
المخططات على قوقل درايف للأستفادة منها والتعديل عليها حسب الحاجه
drive.google.com
التواصل مع المعماري عبدالخالق
تويتر
انستجرام
instagram.com
معماري متمكن ربي يحفظك
وين أهل الأحساء يسألون من ترشح معماري عندنا 👌🏻
المخططات على قوقل درايف للأستفادة منها والتعديل عليها حسب الحاجه
drive.google.com
التواصل مع المعماري عبدالخالق
تويتر
انستجرام
instagram.com
معماري متمكن ربي يحفظك
وين أهل الأحساء يسألون من ترشح معماري عندنا 👌🏻
مشاركة المعماري محمود الشيطى – سماء للاستشارات الهندسية – الرياض
#مبادرة_تطوير_المخططات_2
فيلا في مدينة جدة 20*25 = 500 م2
الدور الأرضي = 277 م2
الدور الأول = 220 م2
الأجمالي قبل التطوير= 497 م2
بارك الله فيك معماري محمود على المشاركة القيمة 🌹
#مبادرة_تطوير_المخططات_2
فيلا في مدينة جدة 20*25 = 500 م2
الدور الأرضي = 277 م2
الدور الأول = 220 م2
الأجمالي قبل التطوير= 497 م2
بارك الله فيك معماري محمود على المشاركة القيمة 🌹
المخططات قبل وبعد
المخططات على قوقل درايف للأستفادة
drive.google.com
للتواصل مع المعماري - مكتب سماء
0555853866
الموقع الإلكتروني
sama-cons.com
انستقرام
instagram.com
تويتر
انستقرام المصمم المعماري
instagram.com
المخططات على قوقل درايف للأستفادة
drive.google.com
للتواصل مع المعماري - مكتب سماء
0555853866
الموقع الإلكتروني
sama-cons.com
انستقرام
instagram.com
تويتر
انستقرام المصمم المعماري
instagram.com
مشاركة م.ثناء نصرت العراق-الامارات
#مبادرة_تطوير_المخططات_2
فيلا في القصيم 24*23 = 552 م2
الدور الأرضي = 255 م2
الدور الأول = 207 م2
السطح = 86 م2
اجمالي المساحات بعد التطوير = 548 م2
قبل التطوير = 600 م2
بارك الله فيك مهندسة جهد تشكرين عليه في جودة التصميم والتوفير
#مبادرة_تطوير_المخططات_2
فيلا في القصيم 24*23 = 552 م2
الدور الأرضي = 255 م2
الدور الأول = 207 م2
السطح = 86 م2
اجمالي المساحات بعد التطوير = 548 م2
قبل التطوير = 600 م2
بارك الله فيك مهندسة جهد تشكرين عليه في جودة التصميم والتوفير
المخططات قبل وبعد 👇🏻
المخططات على قوقل درايف للأستفادة منها والتعديل عليها حسب الحاجه
drive.google.com
التواصل مع المهندسة
الإنستقرام
instagram.com
تويتر
سناب شات
snapchat.com
واتس اب
00971547223650
المخططات على قوقل درايف للأستفادة منها والتعديل عليها حسب الحاجه
drive.google.com
التواصل مع المهندسة
الإنستقرام
instagram.com
تويتر
سناب شات
snapchat.com
واتس اب
00971547223650
مشاركة المعماري نجلاء عبد الوهاب
جدة
#مبادرة_تطوير_المخططات_2
فيلا في مدينة الرياض 27*25 = 675 م2
الدور الأرضي = 330 م2
ويمثل نسبه 48.8 %
الدور الأول = 298 م2
السطح = 147 م2
بارك الله فيك معمارية على المشاركة ماقصرتي
جدة
#مبادرة_تطوير_المخططات_2
فيلا في مدينة الرياض 27*25 = 675 م2
الدور الأرضي = 330 م2
ويمثل نسبه 48.8 %
الدور الأول = 298 م2
السطح = 147 م2
بارك الله فيك معمارية على المشاركة ماقصرتي
المخططات قبل وبعد 👇🏻
المخططات على قوقل درايف للأستفادة منها والتعديل عليها حسب الحاجه
drive.google.com
بيانات التواصل مع المعمارية مرفقة مع صور المخططات 👇🏻
المخططات على قوقل درايف للأستفادة منها والتعديل عليها حسب الحاجه
drive.google.com
بيانات التواصل مع المعمارية مرفقة مع صور المخططات 👇🏻
مشاركة المعماري إبراهيم عبدالله - الرياض
#مبادرة_تطوير_المخططات_2
فيلا في مدينة خميس مشيط 647.84 م²
قام المعماري بعمل مقترحين كلاهما بنفس مسطحات البناء 650 م2
اترككم مع التغطية 👇🏻
بارك الله فيك معماري ماقصرت بيض الله وجهك
#مبادرة_تطوير_المخططات_2
فيلا في مدينة خميس مشيط 647.84 م²
قام المعماري بعمل مقترحين كلاهما بنفس مسطحات البناء 650 م2
اترككم مع التغطية 👇🏻
بارك الله فيك معماري ماقصرت بيض الله وجهك
مناظير للواجهات الخارجية
المخططات على قوقل درايف للأستفادة منها والتعديل عليها حسب الحاجه
drive.google.com
المعماري : إبراهيم عبدالله - الرياض
Email : arch.ibrahem@hotmail.com
Whatsapp : +966 500502903
snapchat : i-a01
instagram : Eng.ibrahem1
المخططات على قوقل درايف للأستفادة منها والتعديل عليها حسب الحاجه
drive.google.com
المعماري : إبراهيم عبدالله - الرياض
Email : arch.ibrahem@hotmail.com
Whatsapp : +966 500502903
snapchat : i-a01
instagram : Eng.ibrahem1
مشاركة المعماري مالك الجباري-الرياض
#مبادرة_تطوير_المخططات_2
فيلا في مدينة الرياض 17*25 = 425 م2
مساحة الدور الأرضي 285 م2
مسطح الدور الأول 220 م2
مسطح دور الملحق 108 م2
توفير 43 م2 * 1500 ريال = 64 الف
ومخطط أجمل ومدروس
بارك الله فيك معماري مالك ماقصرت عمل مميز ❤️
#مبادرة_تطوير_المخططات_2
فيلا في مدينة الرياض 17*25 = 425 م2
مساحة الدور الأرضي 285 م2
مسطح الدور الأول 220 م2
مسطح دور الملحق 108 م2
توفير 43 م2 * 1500 ريال = 64 الف
ومخطط أجمل ومدروس
بارك الله فيك معماري مالك ماقصرت عمل مميز ❤️
المخططات قبل وبعد 👇🏻
المخططات على قوقل درايف للأستفادة منها والتعديل عليها حسب الحاجه
drive.google.com
حسابات مواقع التواصل الاجتماعي مع المعماري مالك الجباري
- تويتر:
- أيميل:
M.ALGBBARY@GMAIL.COM
-سناب:
snapchat.com
المخططات على قوقل درايف للأستفادة منها والتعديل عليها حسب الحاجه
drive.google.com
حسابات مواقع التواصل الاجتماعي مع المعماري مالك الجباري
- تويتر:
- أيميل:
M.ALGBBARY@GMAIL.COM
-سناب:
snapchat.com
مشاركة المعماري إبراهيم جعفري - جازان
#مبادرة_تطوير_المخططات_2
فيلا في مدينة الرياض 13*15.5=201 م2
الدور الأرضي = 135.60 م²
الدور الأول = 97.40 م²
دور السطح = 69.30 م²
مجموع المسطحات = 302.30 م²
بارك الله فيك معماري إبراهيم مبدع ماشاء الله تبارك الله
#مبادرة_تطوير_المخططات_2
فيلا في مدينة الرياض 13*15.5=201 م2
الدور الأرضي = 135.60 م²
الدور الأول = 97.40 م²
دور السطح = 69.30 م²
مجموع المسطحات = 302.30 م²
بارك الله فيك معماري إبراهيم مبدع ماشاء الله تبارك الله
المخططات قبل وبعد 👇🏻
المخططات على قوقل درايف للأستفادة منها والتعديل عليها حسب الحاجه
drive.google.com
المعماري : إبراهيم جعفري - جازان
•Gmail : e.jaferi5@gmail.com
•Whatsapp : +966 535221128
•snapchat : hema-h5
المخططات على قوقل درايف للأستفادة منها والتعديل عليها حسب الحاجه
drive.google.com
المعماري : إبراهيم جعفري - جازان
•Gmail : e.jaferi5@gmail.com
•Whatsapp : +966 535221128
•snapchat : hema-h5
مشاركة المعماري علي آل مبارك-الاوجام
#مبادرة_تطوير_المخططات_2
مساحة الأرض = 615 م2
الدور الأرضي = 220 م2
الدور الأول = 220 م2
السطح = 105 م2
الأجمالي = 545 م2
بارك الله فيك معماري علي ماقصرت عاى المشاركة
#مبادرة_تطوير_المخططات_2
مساحة الأرض = 615 م2
الدور الأرضي = 220 م2
الدور الأول = 220 م2
السطح = 105 م2
الأجمالي = 545 م2
بارك الله فيك معماري علي ماقصرت عاى المشاركة
المخططات قبل وبعد 👇🏻
المخططات على قوقل درايف للأستفادة منها والتعديل عليها حسب الحاجه
drive.google.com
التواصل مع المعماري علي
الواتساب 0530643039
تويتر AliAlMubarak@
سناب شات snapchat.com
alial_mubarak on Snapchat
Watch this Story!
snapchat.com
المخططات على قوقل درايف للأستفادة منها والتعديل عليها حسب الحاجه
drive.google.com
التواصل مع المعماري علي
الواتساب 0530643039
تويتر AliAlMubarak@
سناب شات snapchat.com
alial_mubarak on Snapchat
Watch this Story!
snapchat.com
مشاركة المعماري هاني القرشي - مكة المكرمة
#مبادرة_تطوير_المخططات_2
فيلا في مدينة الرياض 15*25 = 325 م2
الدور الأرضي = 233 م²
الدور الأول = 195 م²
دور السطح = 133 م²
مجموع المسطحات = 594 م²
بارك الله فيك معماري هاني ماقصرت
#مبادرة_تطوير_المخططات_2
فيلا في مدينة الرياض 15*25 = 325 م2
الدور الأرضي = 233 م²
الدور الأول = 195 م²
دور السطح = 133 م²
مجموع المسطحات = 594 م²
بارك الله فيك معماري هاني ماقصرت
المخططات قبل وبعد 👇🏻
المخططات على قوقل درايف للأستفادة منها والتعديل عليها حسب الحاجه
drive.google.com
المهندس : هاني نوار القرشي
مكة المكرمة
إيميل ( eng-hani@msn.com )
سناب شات ( Hani_madenee )
واتس آب ( 0555539665 )
انستقرام ( Engineer_madenee )
تويتر ( madenee@ )
المخططات على قوقل درايف للأستفادة منها والتعديل عليها حسب الحاجه
drive.google.com
المهندس : هاني نوار القرشي
مكة المكرمة
إيميل ( eng-hani@msn.com )
سناب شات ( Hani_madenee )
واتس آب ( 0555539665 )
انستقرام ( Engineer_madenee )
تويتر ( madenee@ )
مشاركة المهندسة زهراء القراوي-المنطقة الشرقية
#مبادرة_تطوير_المخططات_2
فيلا في محافظة الحوطة = 800 م2
الدور الأرضي = 430 م2
الدور الأول = 400 م2
عمل جميل ومجهود تشكرين عليه
ربي يوفقك ماقصرتي
#مبادرة_تطوير_المخططات_2
فيلا في محافظة الحوطة = 800 م2
الدور الأرضي = 430 م2
الدور الأول = 400 م2
عمل جميل ومجهود تشكرين عليه
ربي يوفقك ماقصرتي
المخططات قبل وبعد 👇🏻
المخططات على قوقل درايف للأستفادة منها والتعديل عليها حسب الحاجه
drive.google.com
المصممة : زهراء القراوي
- المنطقة الشرقية
📱: 0540822276
📧:zahraqrawi@gmail.com
المخططات على قوقل درايف للأستفادة منها والتعديل عليها حسب الحاجه
drive.google.com
المصممة : زهراء القراوي
- المنطقة الشرقية
📱: 0540822276
📧:zahraqrawi@gmail.com
مشاركة المصمم : احمد جاويش-الرياض
#مبادرة_تطوير_المخططات_2
فيلا في مدينة الرياض 16 * 19 = 304 م2
الدور الأرضي = 189 م2
الدور الأول = 164 م2
السطح = 88 م2
بارك الله فيك مهندس ماقصرت
ماشاء الله تبارك الله
#مبادرة_تطوير_المخططات_2
فيلا في مدينة الرياض 16 * 19 = 304 م2
الدور الأرضي = 189 م2
الدور الأول = 164 م2
السطح = 88 م2
بارك الله فيك مهندس ماقصرت
ماشاء الله تبارك الله
المخططات قبل وبعد 👇🏻
المخططات على قوقل درايف للأستفادة منها والتعديل عليها حسب الحاجه
drive.google.com
*المصمم : احمد جاويش*
منطقة الرياض
جوال : 0594000946
ايميل :L.o.arch.2020@gmail.com
المخططات على قوقل درايف للأستفادة منها والتعديل عليها حسب الحاجه
drive.google.com
*المصمم : احمد جاويش*
منطقة الرياض
جوال : 0594000946
ايميل :L.o.arch.2020@gmail.com
مشاركة المعماري يزيد المطوع - الرياض
#مبادرة_تطوير_المخططات_2
فيلا في مدينة الرياض 20*20 = 397 م2
الدور الأرضي = 192 م2
الدور الأول = 135 م2
السطح = 98 م2
اجمالي التوفير في مسطحات البناء = 25م2
ماقصرت معماري يزيد مبدع ماشاء الله تبارك الله شغل 👌🏻
#مبادرة_تطوير_المخططات_2
فيلا في مدينة الرياض 20*20 = 397 م2
الدور الأرضي = 192 م2
الدور الأول = 135 م2
السطح = 98 م2
اجمالي التوفير في مسطحات البناء = 25م2
ماقصرت معماري يزيد مبدع ماشاء الله تبارك الله شغل 👌🏻
المخططات قبل وبعد 👇🏻
المخططات على ون درايف للأستفادة منها
1drv.ms
التواصل مع المعماري يزيد المطوع
ايميل :
Arch.Yalmutawa@gmail.com
تويتر:
سناب شات:
snapchat.com
انستقرام:
instagram.com
المخططات على ون درايف للأستفادة منها
1drv.ms
التواصل مع المعماري يزيد المطوع
ايميل :
Arch.Yalmutawa@gmail.com
تويتر:
سناب شات:
snapchat.com
انستقرام:
instagram.com
هذا الرابط يفتح
drive.google.com
drive.google.com
المشاركة الثانية لمكتب المتألق للاستشارات الهندسية - الرياض والدمام
#مبادرة_تطوير_المخططات_2
فيلا في محافظة القويعية مساحة = 660 م²
الدور الأرضي = 280 م²
الدور الأول = 113 م²
الملحق العلوي = 113 م²
شكراً لمجهودكم في المبادرة ماقصرتو ❤️
#مبادرة_تطوير_المخططات_2
فيلا في محافظة القويعية مساحة = 660 م²
الدور الأرضي = 280 م²
الدور الأول = 113 م²
الملحق العلوي = 113 م²
شكراً لمجهودكم في المبادرة ماقصرتو ❤️
المخططات قبل وبعد 👇🏻
المخططات على قوقل درايف للأستفادة منها والتعديل عليها حسب الحاجه
drive.google.com
التواصل مع مكتب المتألق للاستشارات الهندسية - الرياض والدمام
واتساب : 0547199995
توتير وانستغرام : brilliant__sa
السناب شات : brilliant_sa
الايميل : Info@br-design.co
المخططات على قوقل درايف للأستفادة منها والتعديل عليها حسب الحاجه
drive.google.com
التواصل مع مكتب المتألق للاستشارات الهندسية - الرياض والدمام
واتساب : 0547199995
توتير وانستغرام : brilliant__sa
السناب شات : brilliant_sa
الايميل : Info@br-design.co
مشاركة المعماري خالد الجمعان
المنطقة الشرقية
#مبادرة_تطوير_المخططات_2
فيلا في منطقة الجوف 25*36= 900 م²
الدور الأرضي + الملحق = 340 م² (يمثل نسبة 37.8٪ من إجمالي مساحة الأرض)
الدور الأول = 240 م²
الأجمالي = 580 م²
بارك الله فيك معماري خالد على المشاركة
المنطقة الشرقية
#مبادرة_تطوير_المخططات_2
فيلا في منطقة الجوف 25*36= 900 م²
الدور الأرضي + الملحق = 340 م² (يمثل نسبة 37.8٪ من إجمالي مساحة الأرض)
الدور الأول = 240 م²
الأجمالي = 580 م²
بارك الله فيك معماري خالد على المشاركة
المخططات قبل وبعد 👇🏻
المخططات على قوقل درايف للأستفادة منها والتعديل عليها حسب الحاجه
drive.google.com
التواصل مع المعماري خالد
Twitter: @ArchIn_design
instagram: i_archin.design
SnapChat: archin.desige
WhatsApp: wa.me
المخططات على قوقل درايف للأستفادة منها والتعديل عليها حسب الحاجه
drive.google.com
التواصل مع المعماري خالد
Twitter: @ArchIn_design
instagram: i_archin.design
SnapChat: archin.desige
WhatsApp: wa.me
مشاركة المعمارية علا الشامي - جازان
#مبادرة_تطوير_المخططات_2
فيلا في مدينة الرياض 20 * 25 = 500 م2
الدور الأرضي + الملحق =284 م²
الدور الأول = 261 م²
الملحق العلوي (السطح) = 176 م²
معمارية متمكنة ماشاء الله تبارك الله
شكراً على المشاركة ربي يوفقك
#مبادرة_تطوير_المخططات_2
فيلا في مدينة الرياض 20 * 25 = 500 م2
الدور الأرضي + الملحق =284 م²
الدور الأول = 261 م²
الملحق العلوي (السطح) = 176 م²
معمارية متمكنة ماشاء الله تبارك الله
شكراً على المشاركة ربي يوفقك
المخططات قبل وبعد 👇🏻
المخططات على قوقل درايف للأستفادة منها والتعديل عليها حسب الحاجه
drive.google.com
التواصل مع المعمارية علا
سناب شات ؛ snapchat.com
انستقرام؛ instagram.com
تويتر ؛
واتساب : 0535617875
المخططات على قوقل درايف للأستفادة منها والتعديل عليها حسب الحاجه
drive.google.com
التواصل مع المعمارية علا
سناب شات ؛ snapchat.com
انستقرام؛ instagram.com
تويتر ؛
واتساب : 0535617875
مشاركة المعماري عمار العريني
القصيم - الخبراء
#مبادرة_تطوير_المخططات_2
فيلا في مدينة ينبع البحر 20*40 = 800م2
الدور الأرضي + الملحق = 305 م2
الدور الأول = 238 م2
السطح = 14م2
التمدد المستقبلي للسطح = 205 م2
بارك الله فيك معماري عمار ماقصرت ربي يوفقك انت والمهندس عبدالرحمن
القصيم - الخبراء
#مبادرة_تطوير_المخططات_2
فيلا في مدينة ينبع البحر 20*40 = 800م2
الدور الأرضي + الملحق = 305 م2
الدور الأول = 238 م2
السطح = 14م2
التمدد المستقبلي للسطح = 205 م2
بارك الله فيك معماري عمار ماقصرت ربي يوفقك انت والمهندس عبدالرحمن
المخططات قبل وبعد 👇🏻
المخططات على قوقل درايف للأستفادة منها والتعديل عليها حسب الحاجه
drive.google.com
التواصل مع المعماري عمار العريني
تويتر :@StuAmm
سناب : roi_22
انستقرام : AmmStu
المخططات على قوقل درايف للأستفادة منها والتعديل عليها حسب الحاجه
drive.google.com
التواصل مع المعماري عمار العريني
تويتر :@StuAmm
سناب : roi_22
انستقرام : AmmStu
مشاركة المعمارية | نسمة عبد الحفيظ في
#مبادرة_تطوير_المخططات_2
فيلا في القصيم - البكيرية = 2,024 م2
الدور الأرضي = 363.31 م2
الدور الأول = 349.16 م2
السطح = 92.58 م2
شكراً معمارية على جهودك معنا
والله يكتب الأجر لك ولجميع المشاركين
#مبادرة_تطوير_المخططات_2
فيلا في القصيم - البكيرية = 2,024 م2
الدور الأرضي = 363.31 م2
الدور الأول = 349.16 م2
السطح = 92.58 م2
شكراً معمارية على جهودك معنا
والله يكتب الأجر لك ولجميع المشاركين
المخططات قبل وبعد 👇🏻
المخططات على قوقل درايف للأستفادة منها والتعديل عليها حسب الحاجه
drive.google.com
المعمارية/ نسمة عبد الحفيظ
الرياض - المملكة العربية السعودية
الحساب على الانستغرام:
instagram.com
المخططات على قوقل درايف للأستفادة منها والتعديل عليها حسب الحاجه
drive.google.com
المعمارية/ نسمة عبد الحفيظ
الرياض - المملكة العربية السعودية
الحساب على الانستغرام:
instagram.com
مشاركة المعمارية الداخلي | منال احمد
الرياض
#مبادرة_تطوير_المخططات_2
فيلا مساحة 31.49 * 13.76 = 433 م2
الدور الأرضي = 244 م2
الدور الأول = 202 م2
السطح = 85 م2
بارك الله فيك مهندسة ماقصرتي جهد تشكرين عليه
الرياض
#مبادرة_تطوير_المخططات_2
فيلا مساحة 31.49 * 13.76 = 433 م2
الدور الأرضي = 244 م2
الدور الأول = 202 م2
السطح = 85 م2
بارك الله فيك مهندسة ماقصرتي جهد تشكرين عليه
المخططات قبل وبعد 👇🏻
المخططات على قوقل درايف للأستفادة منها
drive.google.com
الحساب على الانستغرام :
instagram.com
المخططات على قوقل درايف للأستفادة منها
drive.google.com
الحساب على الانستغرام :
instagram.com
مشاركة المعمارية رشا أيوب - جدة
#مبادرة_تطوير_المخططات_2
الفيلا في جدة _ حي الحمدانية = 564 م2
مساحة الأدوار ..
الأرضي : 272 م²
الأول : 253 م²
الثاني : 100 م²
بارك الله فيك معماريه ماقصرتي ربي يحفظك
#مبادرة_تطوير_المخططات_2
الفيلا في جدة _ حي الحمدانية = 564 م2
مساحة الأدوار ..
الأرضي : 272 م²
الأول : 253 م²
الثاني : 100 م²
بارك الله فيك معماريه ماقصرتي ربي يحفظك
المخططات قبل وبعد 👇🏻
المخططات على قوقل درايف للأستفادة منها والتعديل عليها حسب الحاجه
drive.google.com
للتواصل مع المعمارية :
انستقرام / r.a.architecture
واتس اب/ 0551247130
wa.me
الايميل/ rasha.ayoub@windowslive.com
المخططات على قوقل درايف للأستفادة منها والتعديل عليها حسب الحاجه
drive.google.com
للتواصل مع المعمارية :
انستقرام / r.a.architecture
واتس اب/ 0551247130
wa.me
الايميل/ rasha.ayoub@windowslive.com
مشاركة المعماري صبري بامعلم من شركة إبداع الهندسة - الرياض
#مبادرة_تطوير_المخططات_2
فيلا في الرياض 23 * 35 = 800 م2
مساحة الأدوار بعد التعديل..
الأرضي : 385 م²
الأول : 306 م²
الثاني : 107 م² "ممكن الإستغناء عنة"
بارك الله فيك معماري ماقصرت 🌹
#مبادرة_تطوير_المخططات_2
فيلا في الرياض 23 * 35 = 800 م2
مساحة الأدوار بعد التعديل..
الأرضي : 385 م²
الأول : 306 م²
الثاني : 107 م² "ممكن الإستغناء عنة"
بارك الله فيك معماري ماقصرت 🌹
المخططات قبل وبعد 👇🏻
المخططات على قوقل درايف للأستفادة منها والتعديل عليها حسب الحاجه
drive.google.com
حسابات التواصل الإجتماعي
تويتر : @arch_01_
سناب شات : Arch_sabri
جوال : 00966565827754
المخططات على قوقل درايف للأستفادة منها والتعديل عليها حسب الحاجه
drive.google.com
حسابات التواصل الإجتماعي
تويتر : @arch_01_
سناب شات : Arch_sabri
جوال : 00966565827754
مشاركة المعماري تركي الشليّل - الرياض
#مبادرة_تطوير_المخططات_2
فيلا في بقيق = 655 م2
الدور الأرضي = 341 م2
الدور الأول = 358 م2
السطح = 212 م2
بارك الله فيك معماري تركي ماقصرت
#مبادرة_تطوير_المخططات_2
فيلا في بقيق = 655 م2
الدور الأرضي = 341 م2
الدور الأول = 358 م2
السطح = 212 م2
بارك الله فيك معماري تركي ماقصرت
المخططات قبل وبعد 👇🏻
المخططات على قوقل درايف للأستفادة منها والتعديل عليها حسب الحاجه
drive.google.com
التواصل مع المعماري
تويتر : @Talshelayel
انستقرام. : @tshelayel
جوال : 0544400345
المخططات على قوقل درايف للأستفادة منها والتعديل عليها حسب الحاجه
drive.google.com
التواصل مع المعماري
تويتر : @Talshelayel
انستقرام. : @tshelayel
جوال : 0544400345
مشاركة المعماري بدر بن احمد الدامغ
من مكتب Milli Studio للتصميم - الدمام
#مبادرة_تطوير_المخططات_2
مخطط لفيلا مع شقتين في مدينة بريدة بمساحة 500 م2
قبل التطوير
الدور الأرضي 362م²
الدور الأول 330م²
الملحق 160م²
بعد التطوير
الدور الأرضي 257م²
الدور الأول 324م²
الملحق 150م²
من مكتب Milli Studio للتصميم - الدمام
#مبادرة_تطوير_المخططات_2
مخطط لفيلا مع شقتين في مدينة بريدة بمساحة 500 م2
قبل التطوير
الدور الأرضي 362م²
الدور الأول 330م²
الملحق 160م²
بعد التطوير
الدور الأرضي 257م²
الدور الأول 324م²
الملحق 150م²
المخططات قبل وبعد 👇🏻
المخططات على قوقل درايف للأستفادة منها والتعديل عليها حسب الحاجه
drive.google.com
التواصل مع المعماري بدر
حساب تويتر /
حساب المكتب/
حساب سناب شات/ snapchat.com
المخططات على قوقل درايف للأستفادة منها والتعديل عليها حسب الحاجه
drive.google.com
التواصل مع المعماري بدر
حساب تويتر /
حساب المكتب/
حساب سناب شات/ snapchat.com
مشاركة المعماري خالد ثفيد
#مبادرة_تطوير_المخططات_2
المستفيدين من برنامج الاسكان
في جدة
مساحة الارض الاجمالية 450 م2
الدور الارضي 218 م2
الدور الاول 217 م2
الملحق 50 م2
بارك الله فيك معماري خالد ماقصرت
#مبادرة_تطوير_المخططات_2
المستفيدين من برنامج الاسكان
في جدة
مساحة الارض الاجمالية 450 م2
الدور الارضي 218 م2
الدور الاول 217 م2
الملحق 50 م2
بارك الله فيك معماري خالد ماقصرت
المخططات قبل وبعد 👇🏻
المخططات على قوقل درايف للأستفادة منها والتعديل عليها حسب الحاجه
drive.google.com
التواصل مع المعماري خالد
جوال / ٠٥٠٨٠٧٨٨٧٧
ايميل / k.m.thafeed@gmail.com
المخططات على قوقل درايف للأستفادة منها والتعديل عليها حسب الحاجه
drive.google.com
التواصل مع المعماري خالد
جوال / ٠٥٠٨٠٧٨٨٧٧
ايميل / k.m.thafeed@gmail.com
مشاركة المعماري : المهند بندر
مكه - الخبر
#مبادرة_تطوير_المخططات_2
فيلا في حفر الباطن 35 * 23 = 805 م2
مساحة المبني لكل الأدوار قبل التطوير :
823 م2
مساحة المبني لكل الأدوار بعد التطوير :
642 م2
بارك الله فيك معماري المهند مبدع ماشاء الله تبارك الله
مكه - الخبر
#مبادرة_تطوير_المخططات_2
فيلا في حفر الباطن 35 * 23 = 805 م2
مساحة المبني لكل الأدوار قبل التطوير :
823 م2
مساحة المبني لكل الأدوار بعد التطوير :
642 م2
بارك الله فيك معماري المهند مبدع ماشاء الله تبارك الله
المخططات قبل وبعد 👇🏻
المخططات على قوقل درايف للأستفادة منها والتعديل عليها حسب الحاجه
drive.google.com
مقطع انيميشن للمشروع
youtu.be
روابط للتواصل مع المعماري :
instagram.com
المخططات على قوقل درايف للأستفادة منها والتعديل عليها حسب الحاجه
drive.google.com
مقطع انيميشن للمشروع
youtu.be
روابط للتواصل مع المعماري :
instagram.com
مشاركة المعماري المعماري حسن الهمّامي-القصيم-الرياض
#مبادرة_تطوير_المخططات_2
تطوير مخطط في محافظة المذنب
مساحة الأرض : 477.75 م²
مسطحات البناء
الدور الأرضي : 250 م²
الدور الأول : 203.6 م²
الملحق : 99.3 م²
الأجمالي = 738 م2
بارك الله فيك معماري ماقصرت ماشاء الله تبارك
#مبادرة_تطوير_المخططات_2
تطوير مخطط في محافظة المذنب
مساحة الأرض : 477.75 م²
مسطحات البناء
الدور الأرضي : 250 م²
الدور الأول : 203.6 م²
الملحق : 99.3 م²
الأجمالي = 738 م2
بارك الله فيك معماري ماقصرت ماشاء الله تبارك
المخططات قبل وبعد 👇🏻
المخططات على قوقل درايف للأستفادة منها والتعديل عليها حسب الحاجه
drive.google.com
التواصل مع المعماري : حسن الهمّامي
حساب تويتر : @h_alhamami
حساب سناب : J_4me
المخططات على قوقل درايف للأستفادة منها والتعديل عليها حسب الحاجه
drive.google.com
التواصل مع المعماري : حسن الهمّامي
حساب تويتر : @h_alhamami
حساب سناب : J_4me
جاري تحميل الاقتراحات...