عبدالله الدخيل الله
عبدالله الدخيل الله

@aaldakheelalla

59 تغريدة 21 قراءة Jul 26, 2020
طبعاً العميل غير رأيه في بعض علاقات الفراغات (كالعادة) وتغير التصميم كامل،
إيدي حافظ على الفكرة الأساسية والإطلالات و المواقف تحت الكتلة،
الي يهمني بالعمل مع Master Architect ليس المنتج النهائي وبس،
انا مهتم بطريقة تفكير المعماري للوصول للحلول المتميزة، وطريقته في إقناع المالك فيها و جعلها قابلة للتنفيذ بميزانية المشروع.
فيه تفاصيل خفيه لايراها المالك، هي الي انا مهتم فيها وكيف المعماري يطور فكرته مع نفسه
آخر التطورات على المشروع،
تم تصميم المخطط المعماري بشكل شبه نهائي، وراح نعمله في Revit عشان نعرضه للعميل.
فيه فيلا بدأنا العمل عليها وهي مشروع قائم والمالك الجديد يرغب في التطوير عليه.
الفكرة المبدئية ل Eddie انه يحافظ على بقايا المبنى القديم ويجعله حديقة في مقدمة المبنى الجديد.
يعين يشيل السقف و يخلي الحوائط بفتحاتها تكون حديقة و فراغ ملموم جميل لمقدمة المنزل.
قمة الاستدامة
فالي Eddie
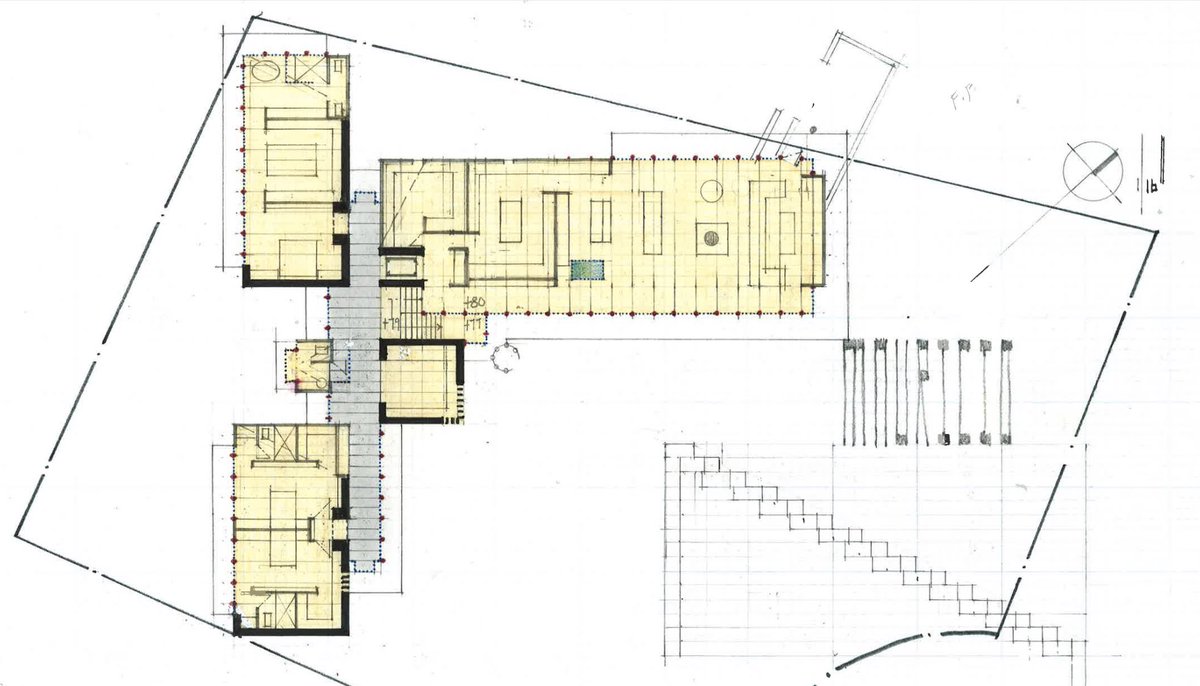
هذي الرسميتين هي الرسومات الي تحتاجها عشان تعمل مودل متكامل في Revit
لاحظ المعماري أبقى على كل الأشجار الجميلة في الموقع وعزز من قيمة الاندسكيب في المنزل
تصميم رائع جداً، دروس قيمة في هذا المخطط لطريقة التعامل مع المباني المبنية
تطوير التصميم من خلال تصوره بشكل ثلاثي الابعاد.
قرارات كثيرة يتم اتخاذها بهذي المرحلة وتعديل التصميم، تحديد موقع المبنى بشكل نهائي على الموقع و تعديل المستويات وعلاقتها مع الطبوغرافيا، مسارات المياه الطبيعية ستكون تحت الممرات لأرضيات زجاجية، فالموقع مهم جداً للفكرة التصميمة
ايددي يحب هذي اللحظة، بحيث يحدد لي لقطات وزوايا اطبعها له للكتل بارتفاعاتها بدون اي تفاصيل للواجهات وعلاقتها بشكل دقيق مع الطبوغرافيا،
ثم ياخذها في الويكند ويروح لبيته الي في المكسيك وطاولة الرسم حقته الي على البحر، ويروق و يعمل احلى مناظير يدوية.
ننتظر ونشوف 😋
The Bishop House, 1983
هنا تطوير لمنزل صممه Eddie في عام 1983.
اضافة غرفة نوم وبلكونة عليه.
بعد الويكند، ورجوع Eddie من منزل الاستجمام على شواطئ المكسيك، رجع بهذا التصميم للواجهة.
هنا سكيتش في مراحله الأولية من Eddie،
بعد مارفض المالك فكرتنا الأولى، وغير عليها مع المحافظة على بعض اللمسات والمبادى من أصل الفكرة الأولى.
يحكي لي Eddie عن شعوره وعدم قدرته على التصميم مباشرة واحتياجه وقت لينسى الفكرة الأولى ويبدأ يقع في حب الفكرة الثانية يقول
I need to love it first
لاحظ مستوى تخاطر عالي وعلاقة شخصية بين المصمم والفكرة بحيث تخرج بأفضل حله.
فيه رومانسية و دراما عجيبه عند Eddie مع العمارة
جميل انك تدرس عمارة، وجميل ان تسمي نفسك معماري،
لكن الأجمل أن تكون فعلاً معماري. ولديك مشروع معماري طوال فترة حياتك، يُعرّفك الناس به.
انك تكون معماري وتمارس العمارة، أي انك تسخر كل حياك لصناعة العمارة،
الإستمرار بالممارسة وعدم الانقطاع بحد ذاته يعني نجاح، الشهرة و الجوائز المعمارية والإنجازات تحدد حجم هذا النجاح.
العمل على مشاريع متقطعة (متى ماجت جت) لا يعكس ممارسة احترافية، بل مستوى هواه
إدارة بزنس او مكتب معماري بحد ذاته تحدي ويحتاج قدرة على الادارة و الإصرار يغذيه رغبه جادة بصناعة عمارة مميزة
بدون هذه الرغبة والمهارات القيادية يفشل الكثير في صناعة ممارسة حقيقة للعمارة
على مدى السنين تأتي فترات صعبة مادياً للمكاتب، والقوي هو الذي يقاوم ويجد العميل دائما
غالباً من ينجح في عمل ممارسة معمارية ذات صيت يطلب منه تدريس العمارة في الجامعة.
اي لابد ان تُثبت كفاءتك المعمارية ويُشهد لك بذلك كي تستطيع تدريس الطلاب.
خاصة مواد الاستديو و المواد المرتبطة بالممارسة بشكل مباشر.
سيستفيد الطلاب بلا شك من معماري له ممارسة احترافية معروفة، خاصة اذا كانت ممارسته من السوق المحلي.
كثير من الجامعات تتنافس في ضم معماريين نجوم لجذب الطلاب، كل المعماريين غالباً لديهم Practice معروف ومستمر لعقود. هذا مصدر مهم لجذب الطلاب والتنافس على البرامج المهنية
خذ
Eddie
على سبيل المثال، له ٢٠ سنة يدرس مادة الاستديو كل فصل خريف في مدرسة
Frank Lloyd Wright في أريزونا
معه درجة بكلوريس فقط، لكن لديه Practice معروف ومشاريع تشهد له.
بدون
Practice
انت لست موجود على قائمة الانتظار لتصبح معماري،
وعمل مكتب ينتج مباني ورخص بناء كإنتاج التميس لايعني Practice احترافي. بل اتجار بالعمارة.
المعماري بعد حصوله على تعليم أكاديمي ورخصة مهنية لممارسة العمارة يحتاج لممارسة طويلة ومستمرة وغالباً لنوع معين من المباني مثلا (تعليمي ، تجاري ، سكني ، ثقافي) ليبني طبقات كثيرة من الخبرات الشخصية في طريقة التعامل مع المشكلات المعمارية وتطوير الحلول الخاصة فيه التي تميزه Practice
لذالك أغلب المعماريين يبرزون بعد سن الأربعين وبرصيد كبير من المشاريع سواءً مبنية او مصممه كمقترحات لمسابقات وغيره.
الصفة المشتركة بينهم هي الممارسة الاحترافية بشكل مستمر، اي التفكير و التطوير المستمر لطريقة حل المشكلات وابتكار طرق شخصية للتعامل مع التحديات المشاكل المعمارية
غالباً المعماري لا يستطيع الاستمرار كرقم ٢ او ٣ في فريق او مكتب لفترة طويلة.
بعد مايشعر بثقه انه قادر على إدارة الأمور بنفسه يستقل ليصبح رقم ١، ويجمع فريق مكون من معماريين لايمانعون ان يكونوا رقم ٢ او ٣ معه في الفريق،
المعماري يفضل الاستقرار في فريقه، لذلك لا يرحب بشكل كبير في معماري لديه طموحات كبيرة بان يصبح رقم ١ يوماً ما.
لكن احياناً هذا النوع من معماريين مفيد للفريق لانه غالباً لديه مهارات ابداعية ممتازة تضيف للفريق، لكن المهارات الفنية والتقنية مطلوبة اكثر من المهارات التصميمية
غالباً المعماري يحترم العمارة ويقدر المعماريين الذين قدموا أعمال محترمة
Eddie مثلاً يعرف تفاصيل عن حياة المعماري Frank Lloyd Wright لدرجة تعتقد انه مهووس بشخصيته ومغرم بأعماله اكثر من الازم، لكن بشكل غير مباشر هذا يرفع قيمة العمل المعماري لديه ويجعله في منافسة مستمره مع Wright
هذه اللحظات هي اللحظات الي تهمني في عملي مع معماري محترف، والحقيقة اني ناشب له مافيه سكيتش يعمله الا وأخذه واعمل له سكان، واسأله عن القرارات الي اخذها، والحقيقة انه يعمل على افكار كثيرة ويرسمها بدقة ودرسها مع نفسه وطورها، ولا يوري العميل الا النتيجة النهائية.
The Bishop Addition, 1983
By Eddie Jones
هنا تطوير لمشروع عمله Eddie قبل ٣٦ سنة
كامل باليد، وبعد ما يأخذ الموافقة من العميل راح نبدأ فيه Revit.
فيلا المكسيك، تطوير على التصميم الجديد
Architecture is an endless work,
منظور يدوي من Eddie لمشروع فيلا المكسيك، تعديل على الوجهات و تفاصيل السقف.
المبنى راح يكون بالبلوك و الزجاج و الحديد.
بين كل فترة وفترة احب أعيد نقطة أهمية شمولية طريقة تفكير المعماري، وثراء ذائقته الفنية والإبداعية والفلسفية والشاعرية مع قدرته العالية على حل المشاكل الفراغية كمشكلة معمارية، ايضاً تحتاج الإلمام الجيد في الانظمة التي تشكل العمارة
هنا رسمتين رسمها نفس المعماري ربما توضح الفكرة
العمارة صعبة على أبطال الديجيتل 😁،
بحيث لا يستطيعون تخطي مرحلة الخيال، "اذا فرضنا وجود خيال له قيمة!"
الي من أبطال الديجيتال سيظل ديجيتال،
بين فترة وفترة أحس اني لازم أذكر المعماريين الشباب بأهمية عمارة المكان
هي صعبة جداً لانها تحتاج الى فهم عميق للمكان وتاريخه وثقافته وحرفية عمالته ومميزات الموقع ذاته، لنستطيع اضافة جمل معمارية تتناسب مع نَص المكان
أمثلة لمحاولات Eddie Jones لتطبيق عمارة المكان في أماكن مختلفة
أشعر أحياناً اننا نهرب كمعماريين للحداثة لبساطتها وإمكانية تطبيقها في كل مكان بدون الحاجة لعمل الHomework المتعب، وهو البحث و التعمق في الموقع وتاريخه وعاداته ، وبإبداع نوجد تصميم يناسب كل هذه المعطيات ويميز المعماري نفسه
تحتاج ممارسة طويلة وإصرار ورغبة جادة للوصول لنتيجة مرضية
يقولي Eddie وهو معماري أمريكي Cowboy،عمل أكثر من ٢٥ سنة على فلل بالمكسيك وعشرات الفلل والمنازل الصغيرة حتى استطاع ان يفهم المجتمع والحرفية وعناصر العمارة الأسبانية "الأندلس" ويطور من عناصرها بشكل يميزه، ويكون واثق من انها تستحق ان تكون في موقع المكتب، اي تستحق ان نسميها عمارة
هنا فيديو المعماري Eddie Jones يشرح بعض العناصر في منزله الخاص على شواطئ شمال المكسيك قريب لحدود أريزونا.
تكملة للفيديو، لاحظ ان المعماري أعطى البنائين المحليين كيوبات زجاجية وطلب منهم ان يفاجؤوه بترتيب محلي،
لاحظ انه يستمتع بالدراما خلال عملية التنفيذ. هنالك تفاصيل لايمكن تصميمها بل يتم تنفيذها باليد مباشرة لتخرج بأجمل لحله واقوى معنى
في مدرسة المعماري الأمريكي الكبير
Frank Lloyd Wright
في صحراء أريزونا
برنامج ماجستير العمارة يعمل فيه الطالب تصميم و بناء ومبيت في مأوى او Shelter
هذه التجربة غنية جداً جداً للطلاب بحيث يعرف ماهي ابعاد تصميمه من خلال مرحلة التنفيذ و أداء المبنى اذا عاش فيه 👌🏻
هنا مقال يشرح البرنامج واهدافه
وكيف ان الطلاب ينامون في المبنى الصغير الي صمموه وبنوه بايديهم.
تجربة متكاملة
google.com
لاحظ ان هذا المبنى منزل المعماري الخاص، كان يستطيع عمله باي شكل يتقنه ولا يغامر، وش الحياة بدون تحدي جديد.
هذا ليس اختبار مهارات معمارية بقدر كونه اختبار مبادئ معمارية،
هذا استديو Eddie في منزله الي في المكسيك،
يهرب لهذا المنظر كل اسبوع ويروق على التصاميم النهائية الي يعمل عليها،
يعني تخيل ان تنتظر الويكند عشان تقدر تشتغل زين 😅،
طيب ياعبدالله وش نستفيد حنا من تفاصيل حياة هالمعماري؟
سؤال عبقري 😅؛ الغاية هي اننا نتعرف على طريقة ممارسة معماريين عُرف عنهم إتقانهم للعمارة. وفيه معماريين كثر في العالم ونحتاج احد يسلط الضوء عليهم بحيث يرتفع سقف ممارسة العمارة لدينا اذا رأينا الجدية والاحترام لمهنة العمارة
والحقيقة صعب انك تحصل معماري يعمل على Scales مختلفة من تصاميم لماستر بلان بمستوى Design Excellence مع الدولة الفدرالية الى تصميم طاولة الطعام لشقة سكنية 😅.
والعجيب انه عملهم كلهم على ورقة بمقاس 11x17، الماستر بلان و الطاولة 😃
بعد عودته من منزله في المكسيك وإطلالته الجميلة، هذه هي النتائج.
منظور يدوي عمله Eddie Jones لفيلا المكسيك.
الاجتماع الأسبوعي لكل الموظفين، ظروري كل فريق يشرح ايش يعملون عليه وآخر التطورات. وتتحدد المهمات الجديدة على اساسها للأسبوع الجديد.
المالكة جازت لها الفكرة المبدئية، وبدأنا بالتشبير و رفع الأبعاد للمبنى القائم للمحافظة عليه وتحويله الى حديقة سرية
وإضافة مباني له تلبي الاحتياج الوظيفي، جاز لي ان إيدي يحاول وبجدية المحافظة على المبنى القائمة واستغلاله بذكاء
Secret Garden
بدأت تستقر المعالم لفيلا المكسيك،
جالسين نحضر لمعرض بسيط،
بعض المناظير اليدوية الي عملها Eddie
كل ما قلت ل Eddie تصميمك يشبه تصاميم Frank Lloyd Wright
يقول لي وهو مبتسم
😊 It is Just a coincidence
لما تقارن أعمال Eddie Jones
و تأثرها الكبير والواضح بأعمال المعماري الشهير Frank Lloyd Wright
تلاحظ انه فيه منافسة خفيه بعيدة عن الأضواء في كيفية بناء المبنى من وحدة واحدة. واستخدام الوحدة البسيطة لتكوين مبنى أخآذ بتجربة معمارية رائعة
الحقيقة Eddie طور له لغة خاصة جميلة
Scorpion House, AZ | 2002 | by Jones Studio
اذا حاب تعيش التجربة، فيه جولة ثلاثية الأبعاد لهذا المنزل،
my.matterport.com
اليوم اكتملت ورشتنا،
مكينة قص و نحت بالليزر،
و طابعة 3D
وش تبي بعد 😍
اليوم الورشة في اي مكتب معماري أصبحت متطلب وفي متناول اليد،
المكتب استثمر 30 الف دولار في الورشة،
منزل
Logan Collection, Scottsdale, AZ.
جميل التعبير بال Texture في المجسم،
اليوم زرت مشروع
NAI Horizon Office
وهو المشروع الوحيد الي صممه
Eddie
لمطور عقاري، كمشروع استثماري. وحقق نتيجة جيدة بميزانية السوق المحدودة للمشاريع التجاري ولكن بلمسات معمارية جميلة.
جميلة البساطة في التكوين، والتعبير المعماري الجميل في معالجة الواجهة بكل اناقة وبساطة. لاحظ الجدار بلوك بدون اي تشطيب.
من أسبوع والعمل عن بعد في مكتب Jones Studio
بدأنا بالعمل على التصميم الداخلي للمنزل،
هذه المنزل فيه فكرة جميلة، وهي المحافظة على المبنى القديم و جعله حديقة شبه مغلقة وبناء منزل جديد في الساحة الخلفية

جاري تحميل الاقتراحات...